← North Somerset Council

Status

Registered House extension
Received
Last month
New homes
0

Full proposal

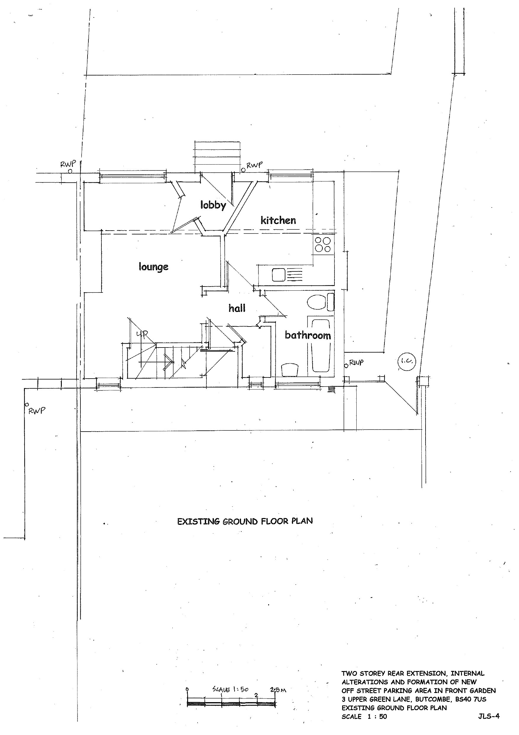
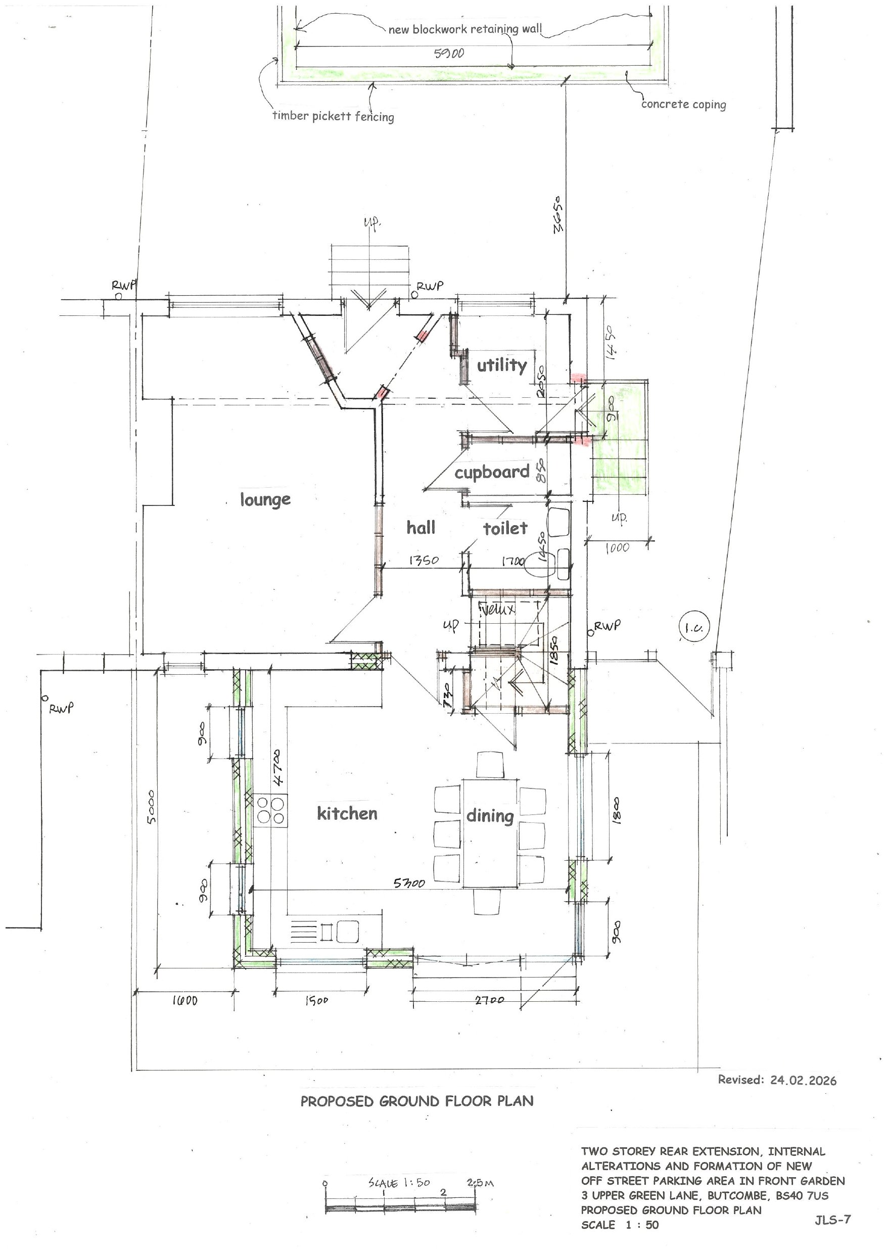
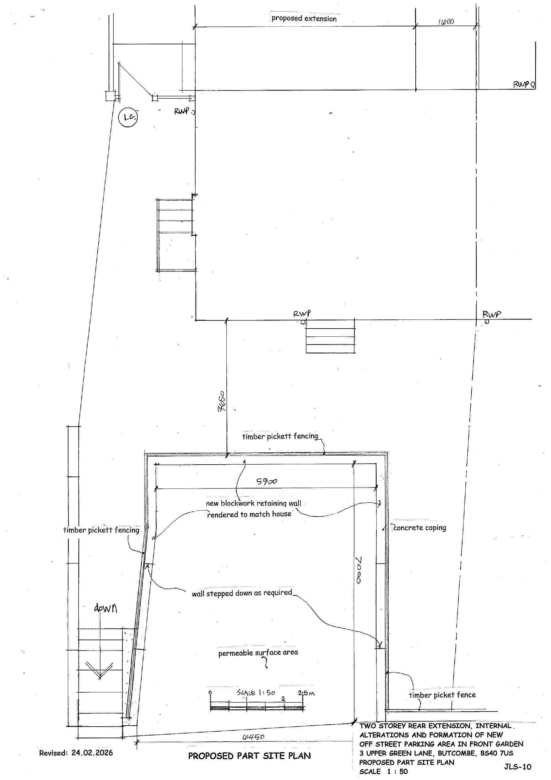
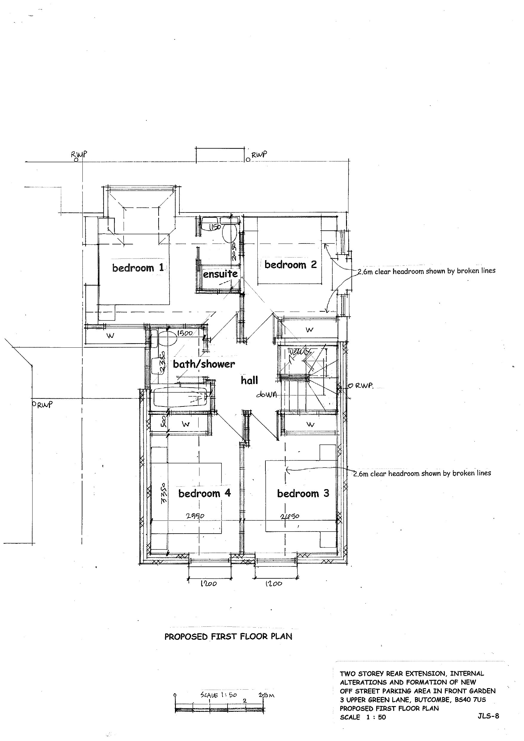
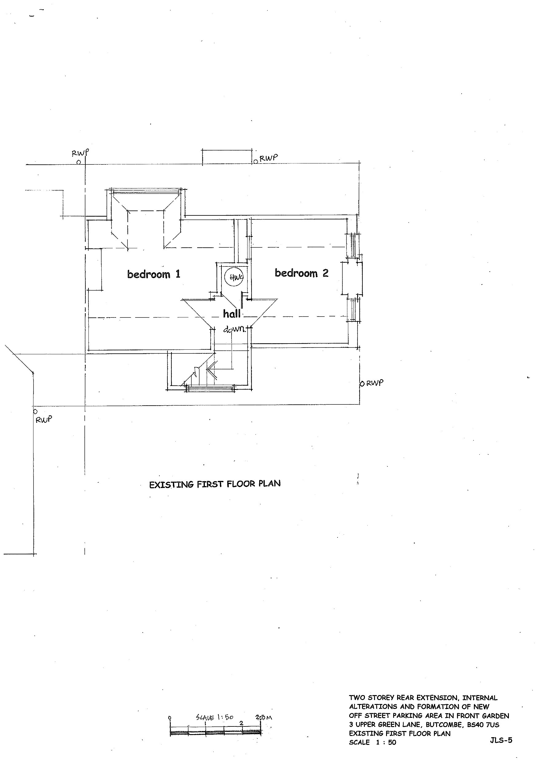
Proposed erection of a two-storey rear extension, side access stairway and formation of level off-road parking.

Have your say

Your comment matters. Councils must consider every representation that raises material planning considerations.

Write a comment