← North Somerset Council

Status

Registered House extension
Received
Last month
New homes
0

Full proposal

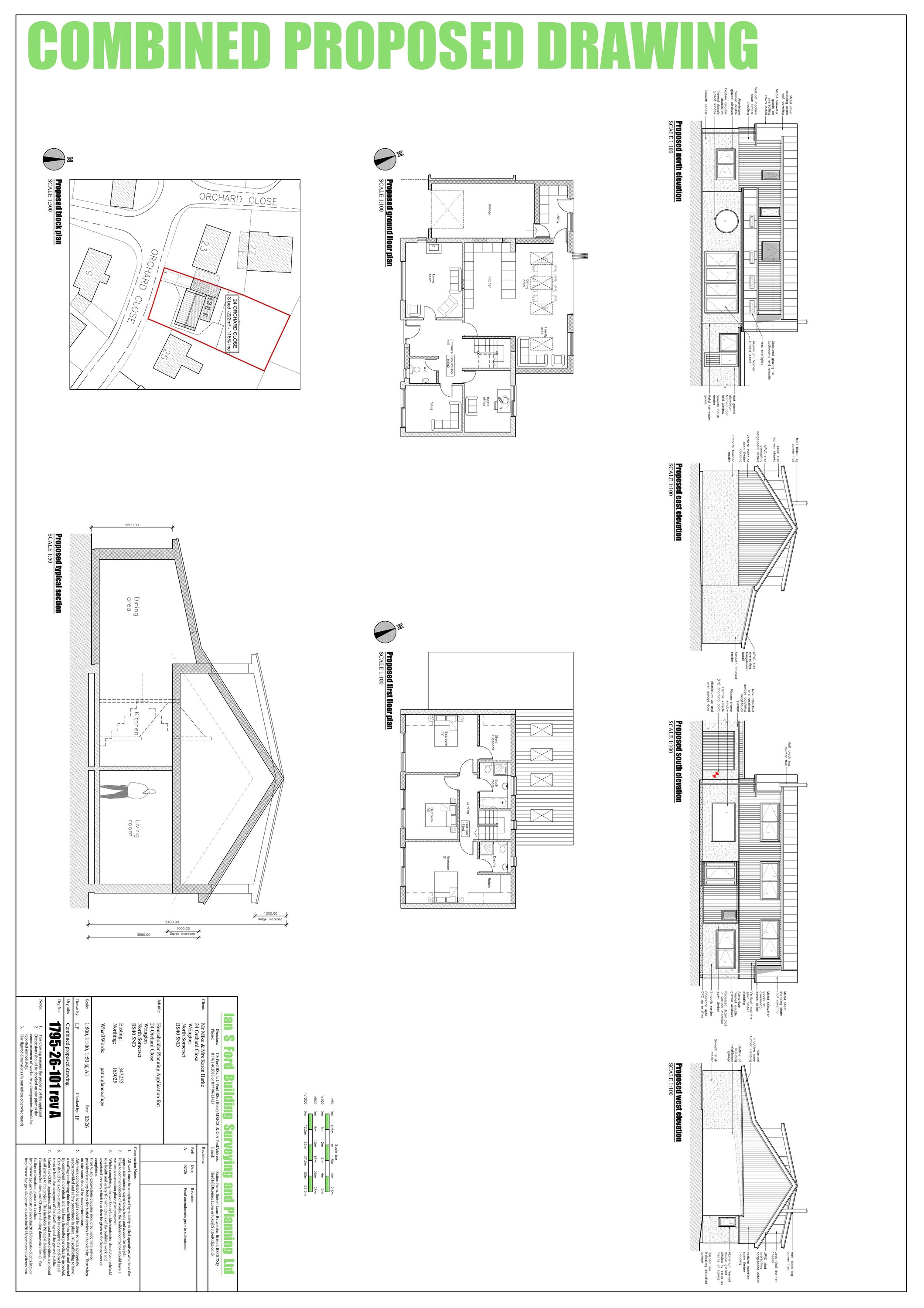
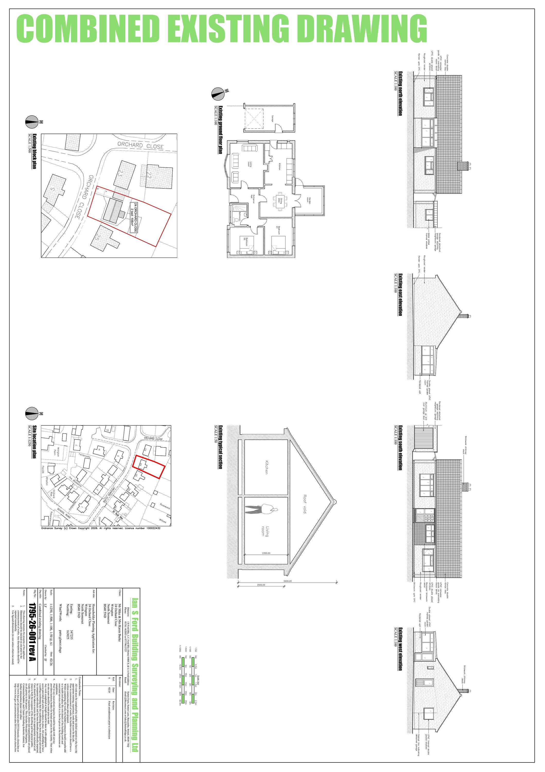
Proposed demolition of existing detached garage, rear extension and front bay-window. Erection of a single storey rear/side extension including new attached garage with fenestration alterations throughout. Creation of a first floor through the raising of ridge height and installation of front and rear dormers.

Documents

Application Form
Archived · Original link
Ecological report
Archived · Original link
CIL Notices
Archived · Original link
Application Letter
Archived · Original link
Design and access statement
Archived · Original link
Ecological report
Archived · Original link

Have your say

Your comment matters. Councils must consider every representation that raises material planning considerations.

Write a comment