← North Somerset Council

Status

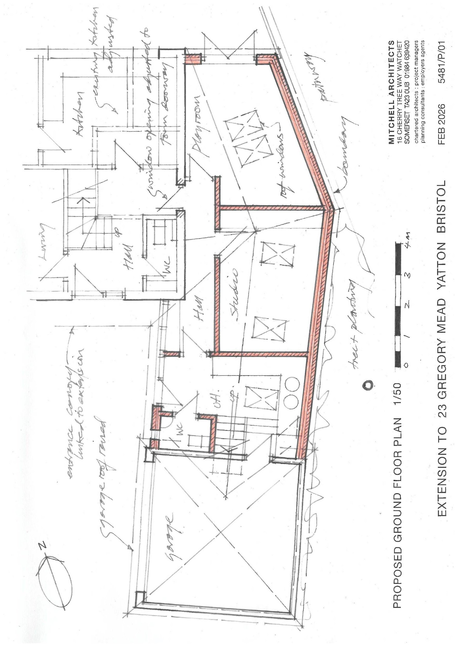
Registered House extension
Received
Last month
New homes
0

Full proposal

Proposed erection of a single storey side extension linking existing detached garage to the main dwelling. Raising of garage roof to facilitate creation of a first-floor studio.

Have your say

Your comment matters. Councils must consider every representation that raises material planning considerations.

Write a comment