← North Somerset Council

Status

Registered House extension
Received
Last month
New homes
0

Full proposal

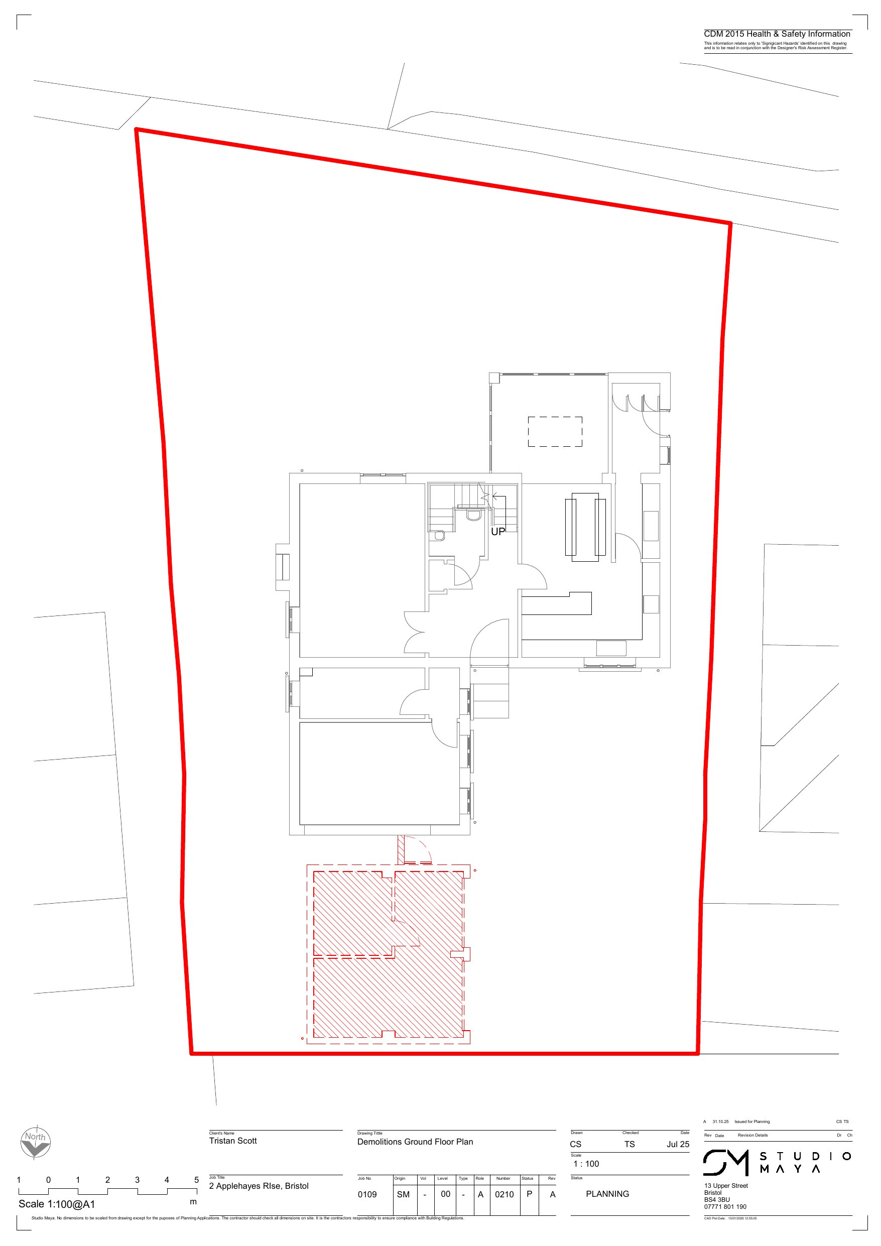
Proposed demolition of existing detached garage. Erection of a part-single, part-two storey extension to the North elevation with integral garage.

Have your say

Your comment matters. Councils must consider every representation that raises material planning considerations.

Write a comment