← North Somerset Council

Status

Registered House extension
Received
Last month
New homes
0

Full proposal

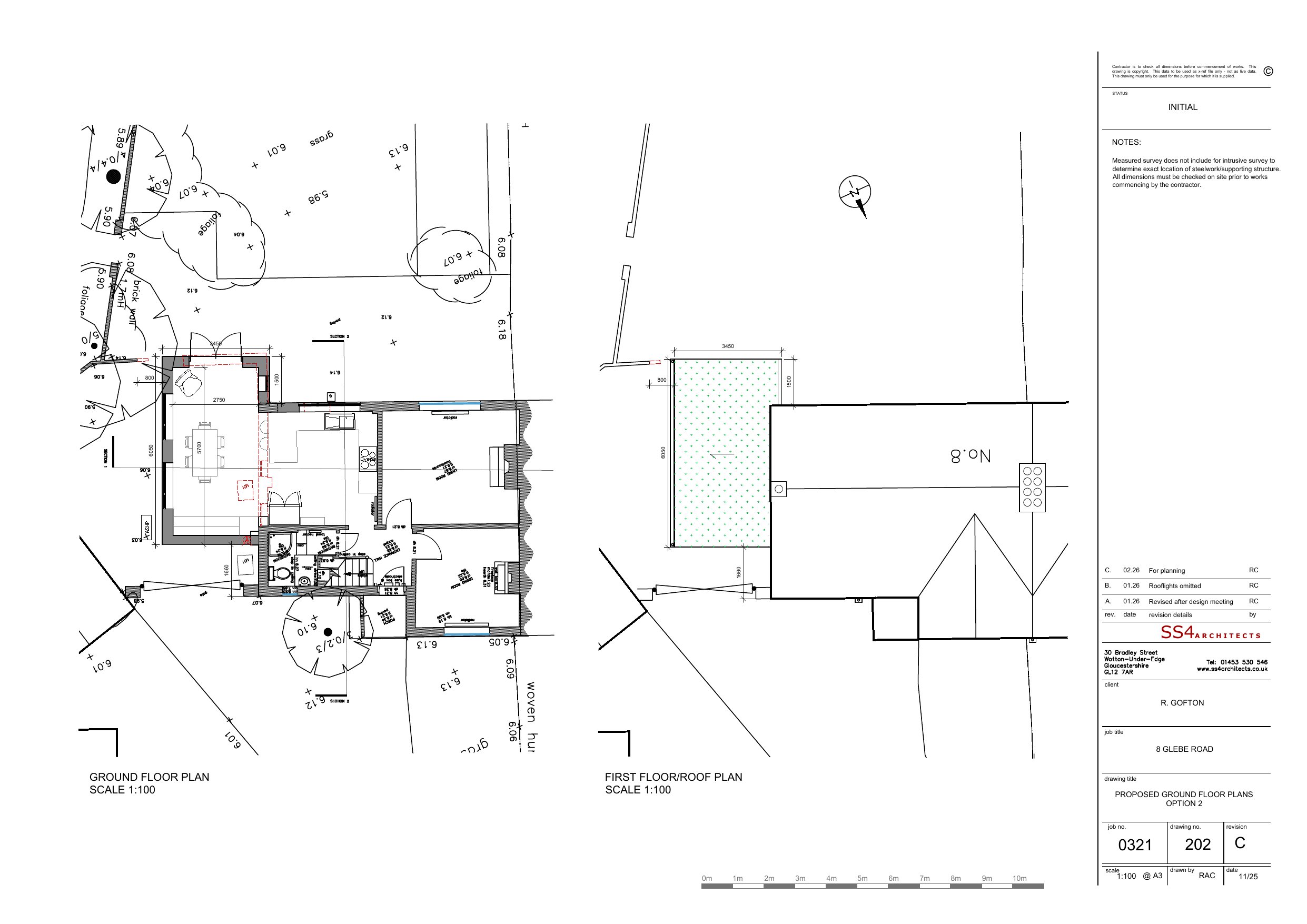
Proposed erection of a single-storey side extension to the South East-elevation.

Documents

Application Form
Archived · Original link
Plan
Archived · Original link
Design and access statement
Archived · Original link
Plan
Archived · Original link
Flood risk assessment
Archived · Original link
Plan
Archived · Original link
Plan
Archived · Original link
OS Extract
Archived · Original link

Have your say

Your comment matters. Councils must consider every representation that raises material planning considerations.

Write a comment