← North Somerset Council

Status

Registered House extension
Received
28 days ago
New homes
0

Full proposal

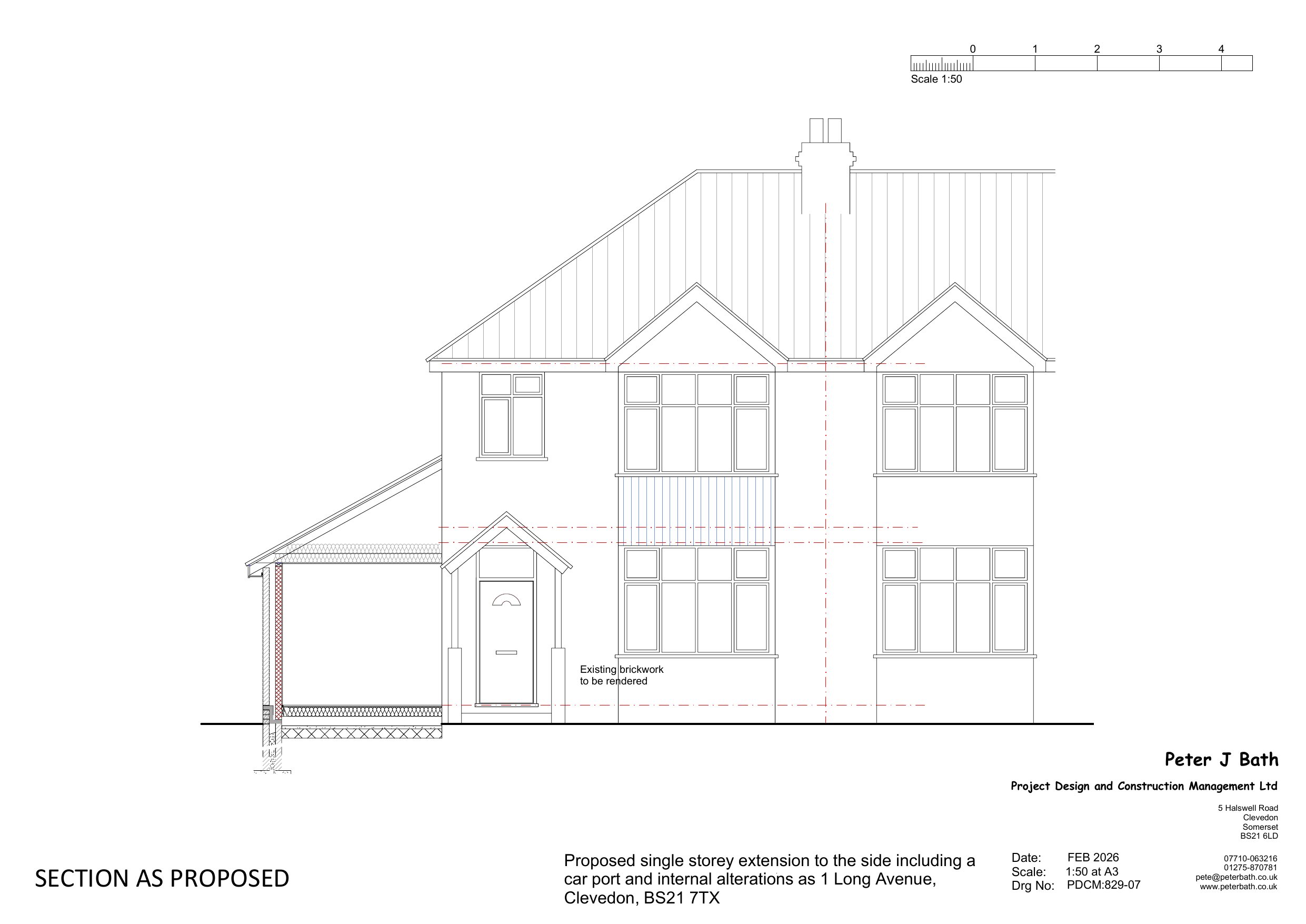
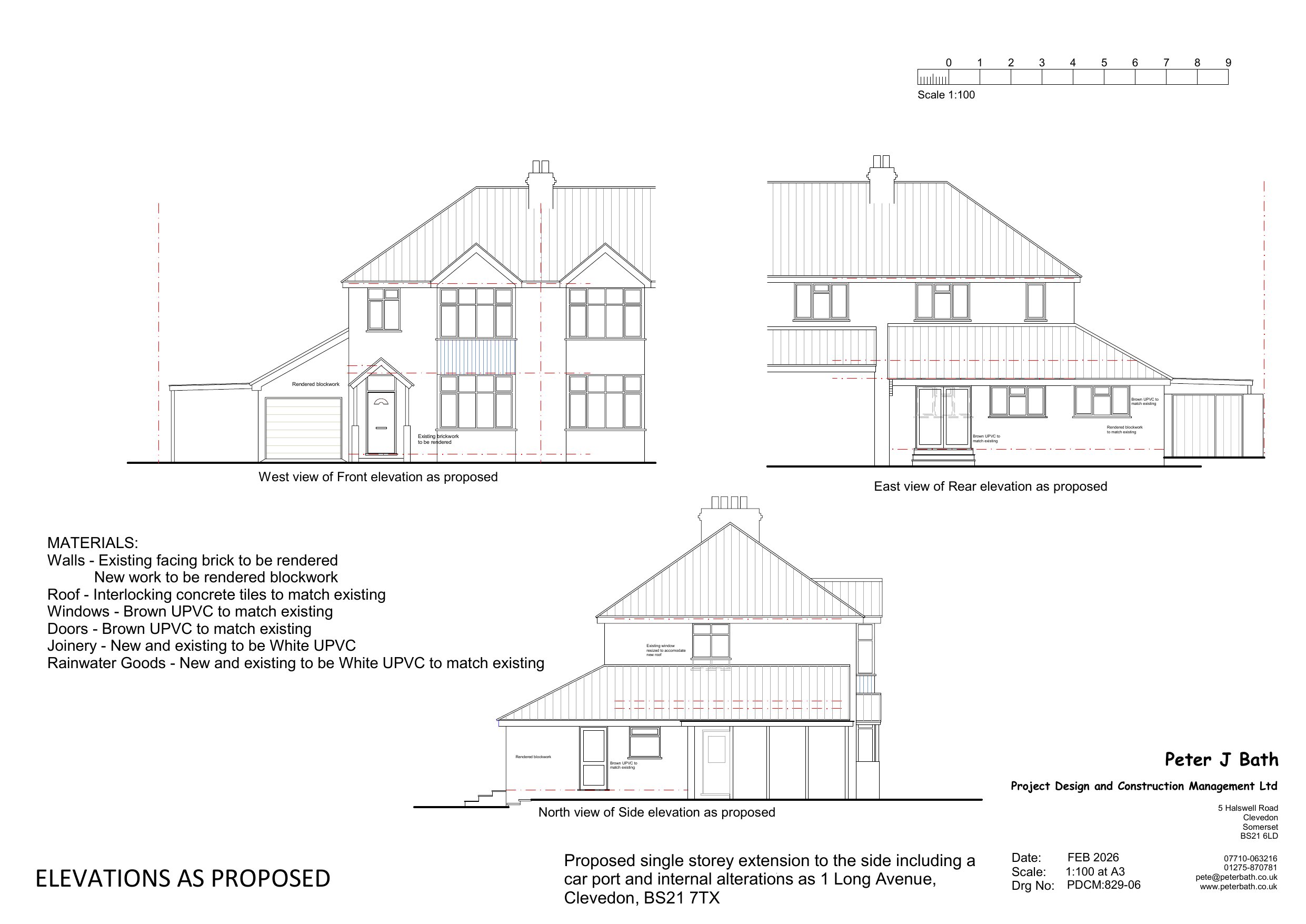
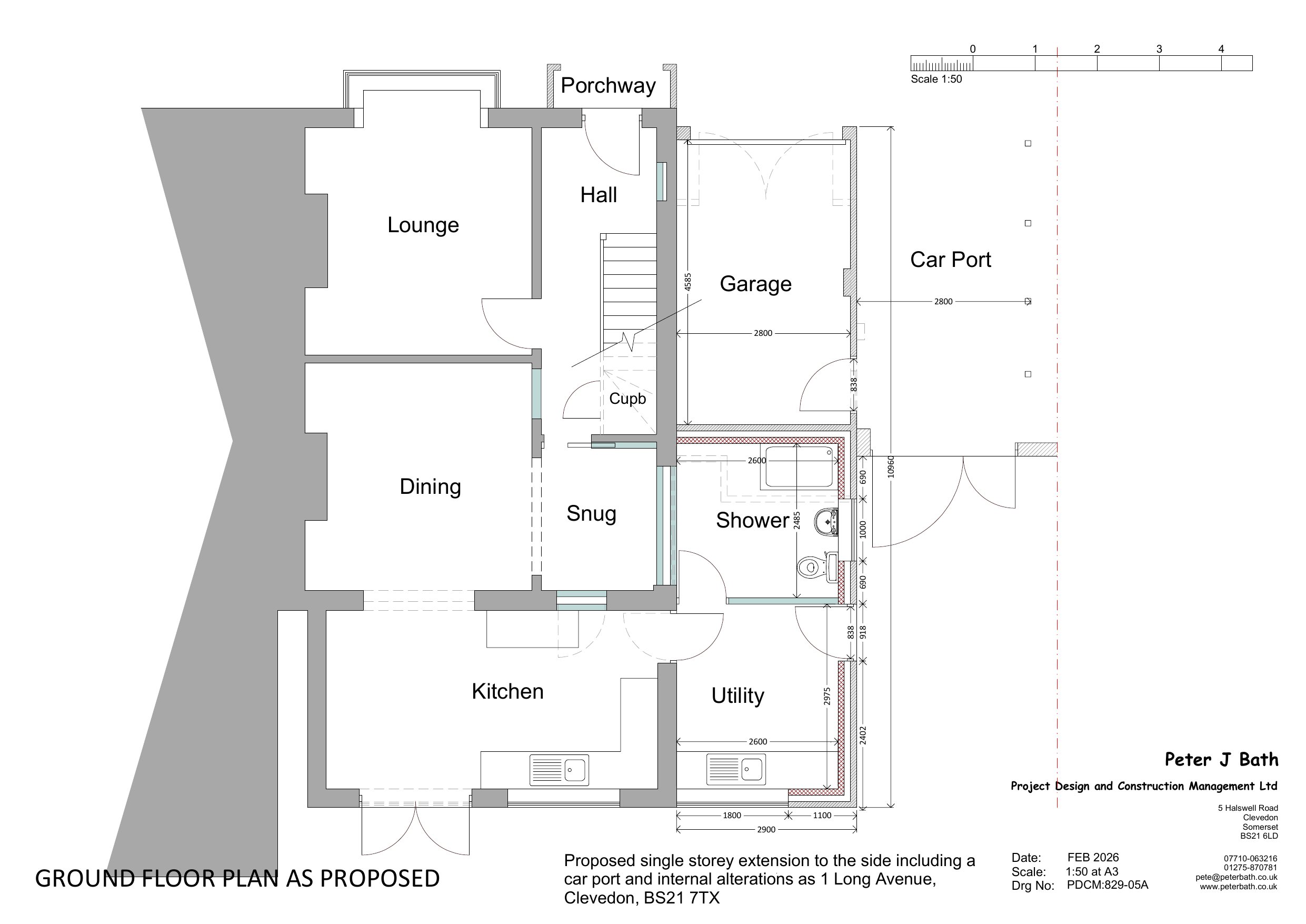
Proposed erection of a single storey side extension including a car port and internal alterations.

Have your say

Your comment matters. Councils must consider every representation that raises material planning considerations.

Write a comment