← North Tyneside Council

Status

Awaiting decision House extension
Received
02 Jan 2026
New homes
0

Full proposal

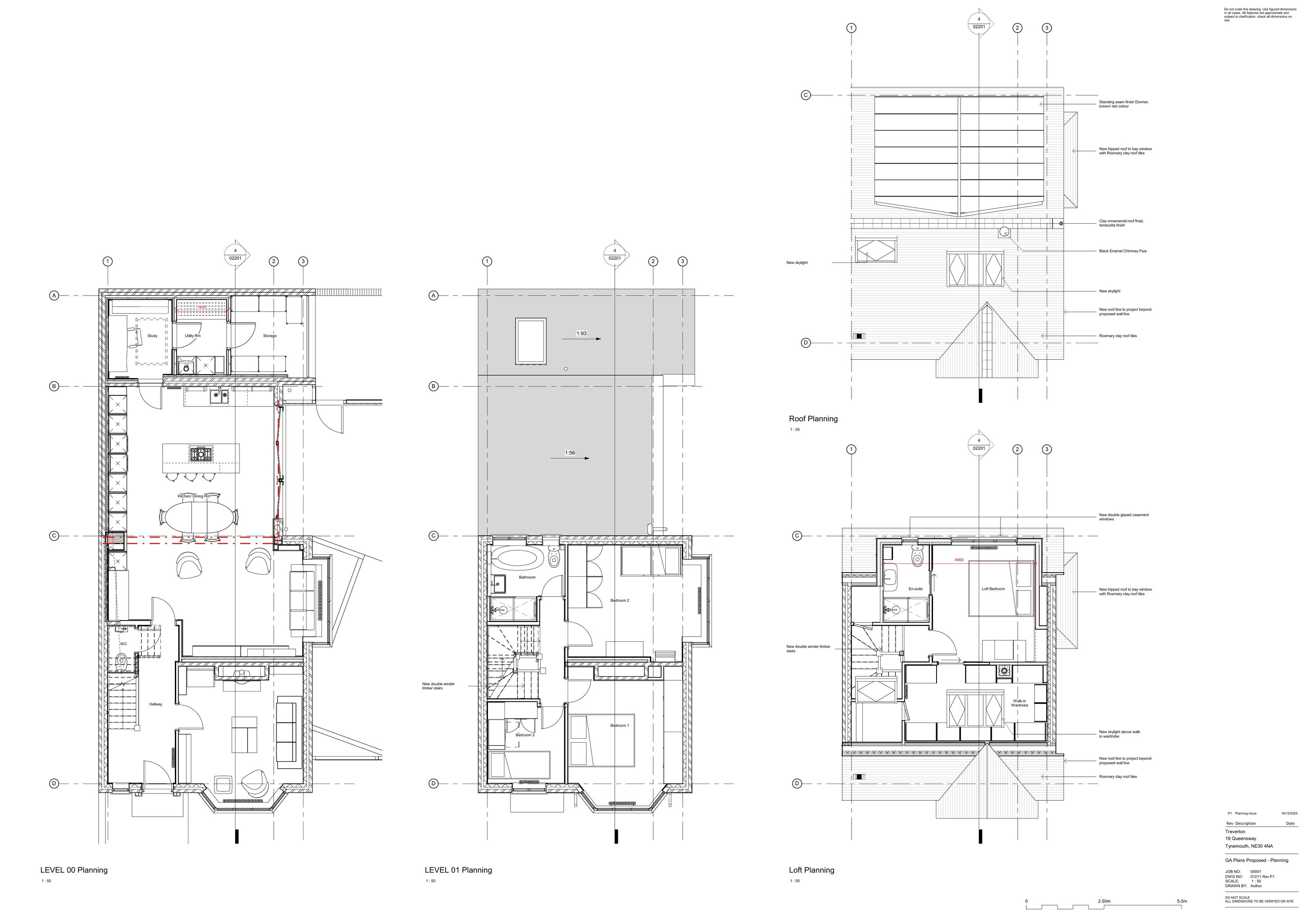
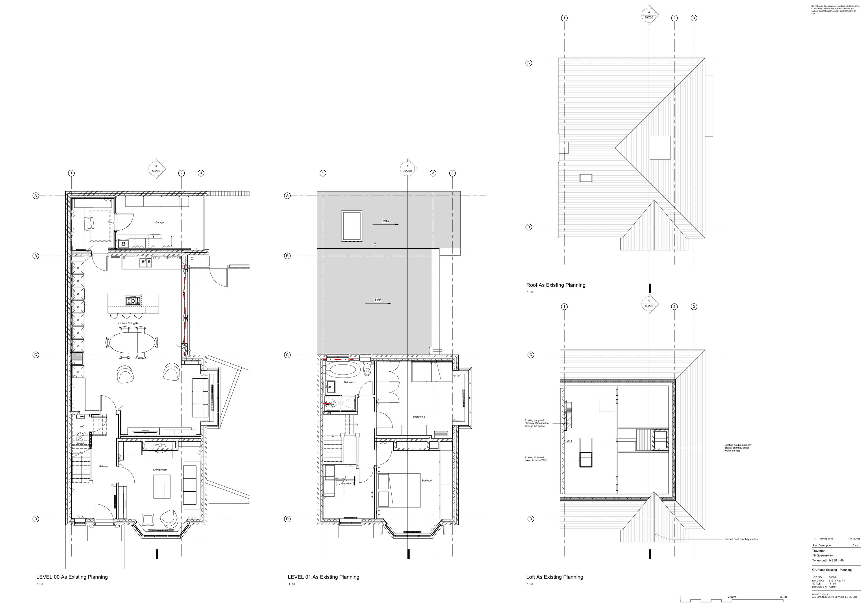
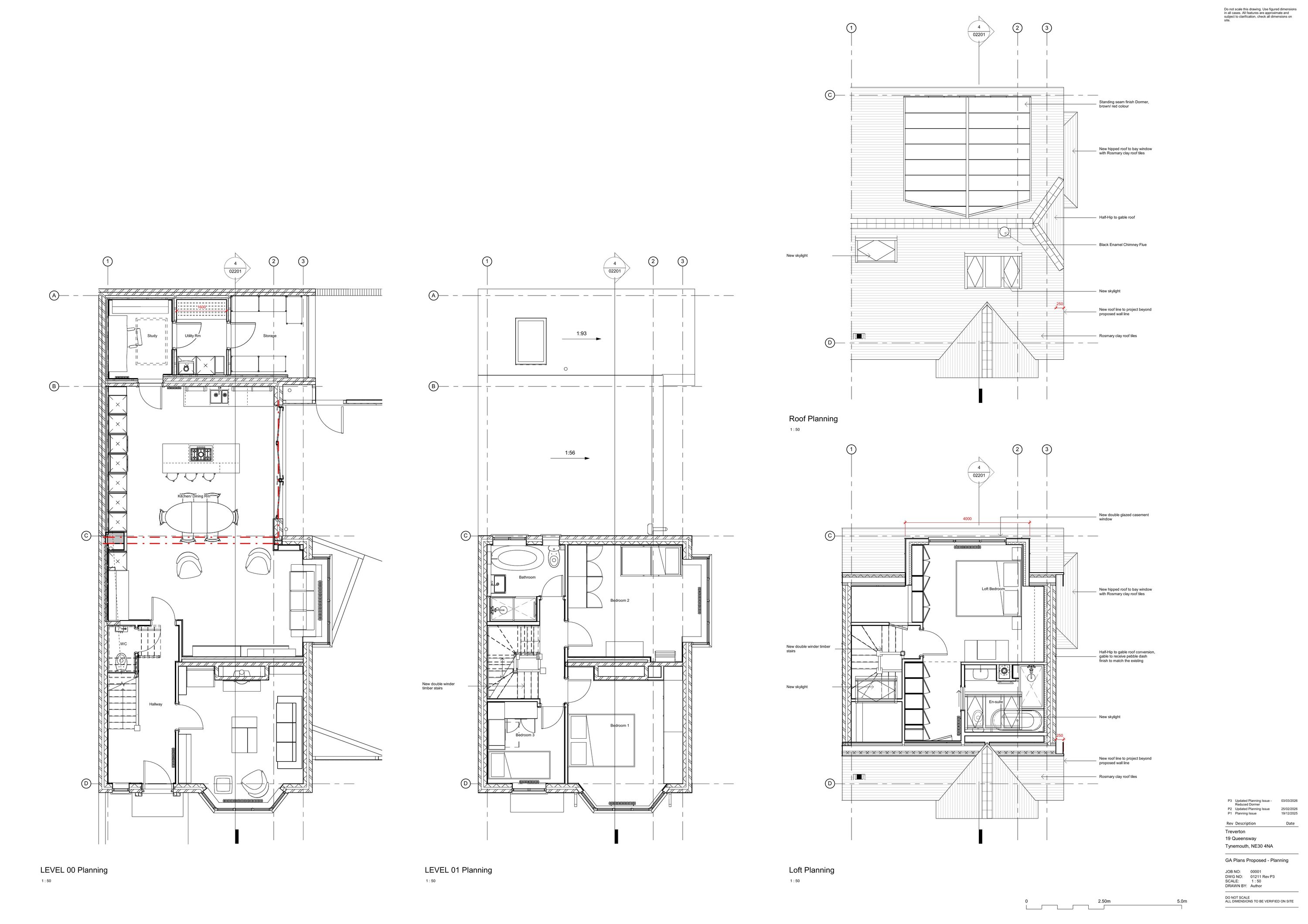
Loft conversion extension to the property including a new hip to gable roof with a pitched roof dormer to the rear of the property, 2no rooflights to the front and installation of chimney flue

Documents

Superseded Drawing
Archived · Original link
Drawing
Archived · Original link
Drawing
Archived · Original link
Superseded Drawing
Archived · Original link
Revised Drawing
Archived · Original link
Superseded Drawing
Archived · Original link
Revised Drawing
Archived · Original link
OS Extract
Archived · Original link

Have your say

Your comment matters. Councils must consider every representation that raises material planning considerations.

Write a comment