← North Tyneside Council

Status

Awaiting decision Change of use
Received
16 Jan 2026
New homes
0

Full proposal

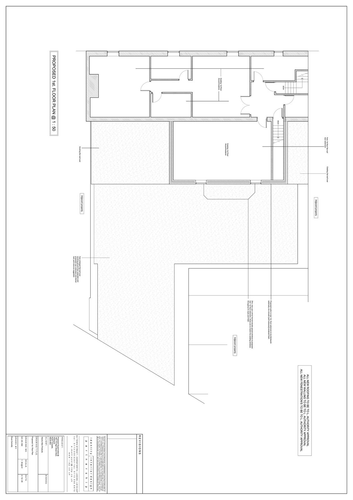
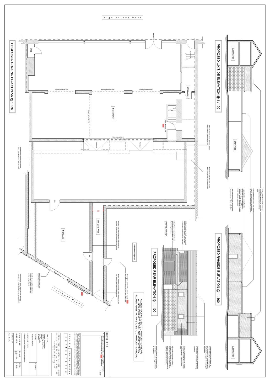
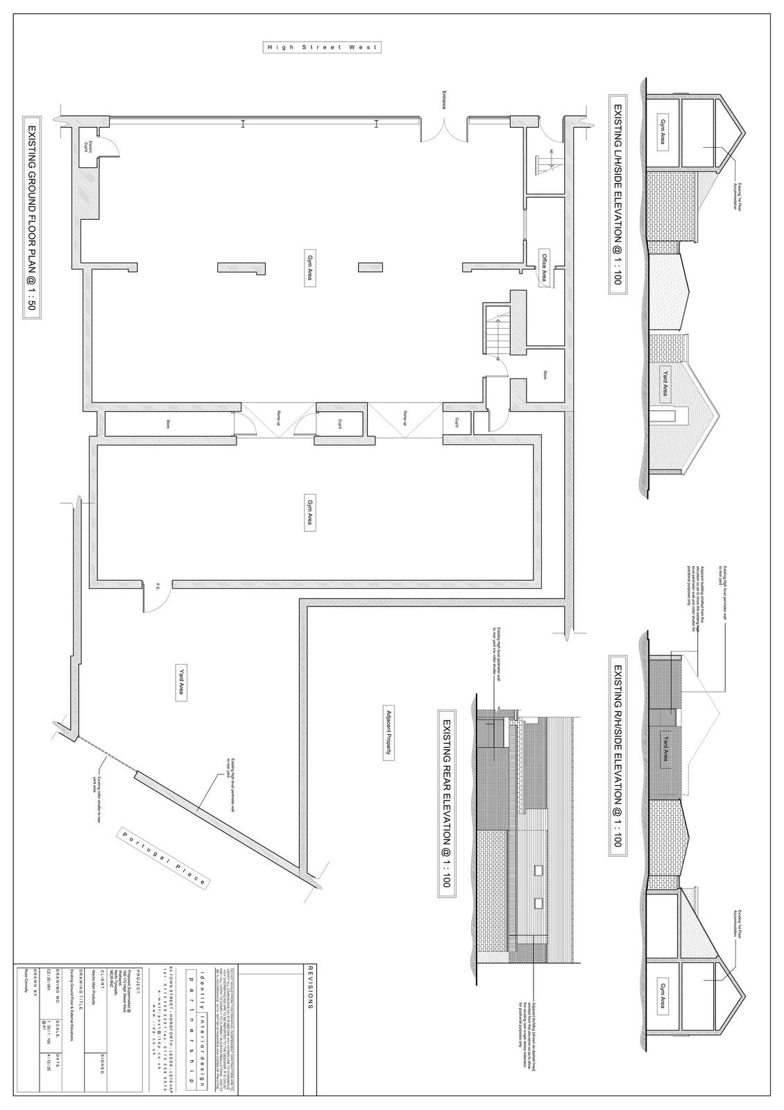
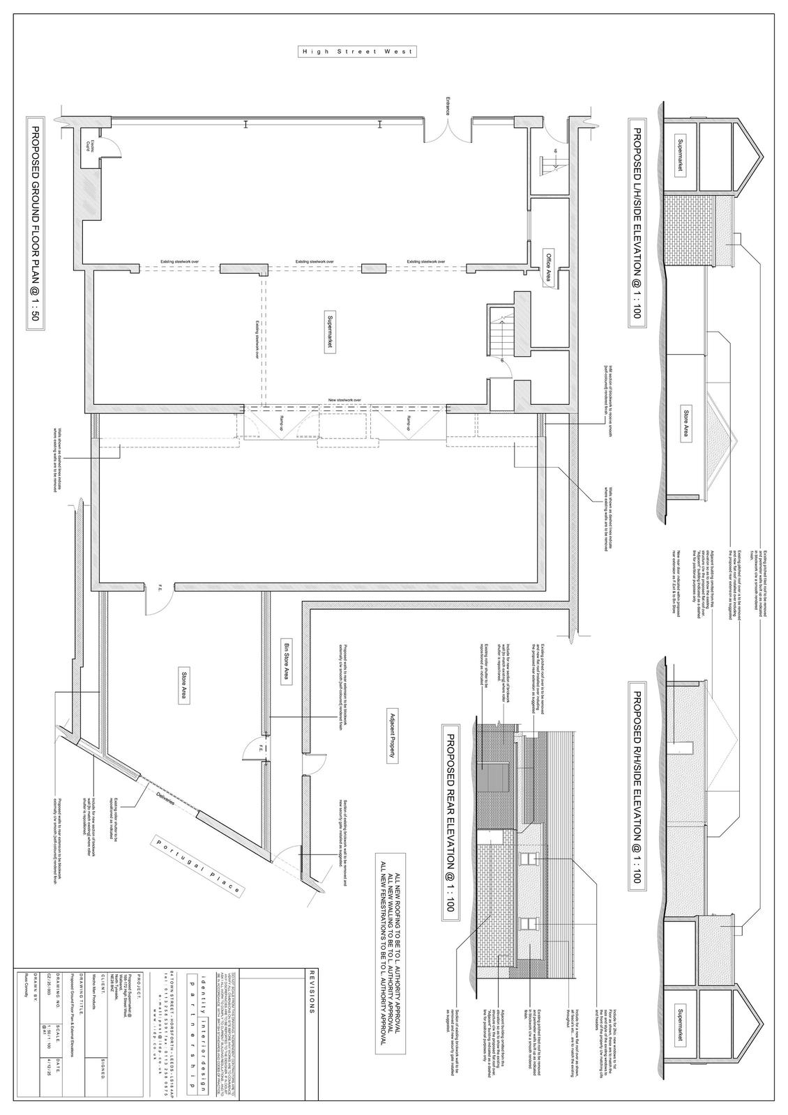
Internal alterations, single storey rear extension, replacement of existing rear roofs with flat roofs, first floor rear extension and installation of two rear first floor windows. Conversion from gym to supermarket (both within Class E)

Have your say

Your comment matters. Councils must consider every representation that raises material planning considerations.

Write a comment