← North Tyneside Council

Status

Awaiting decision House extension
Received
21 Jan 2026
New homes
0

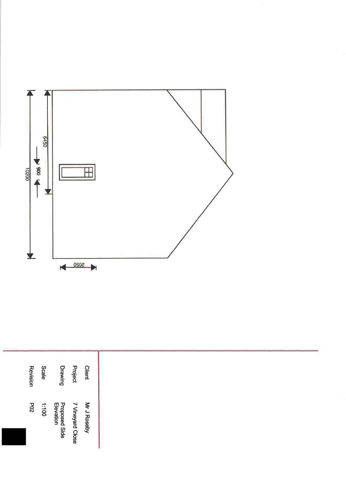
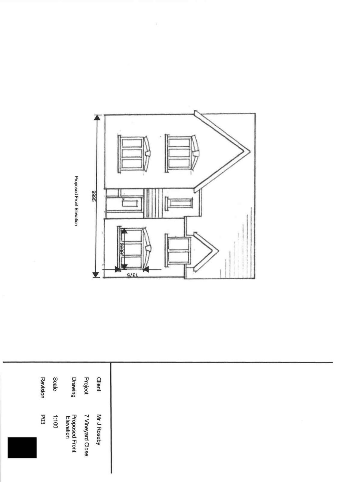
Full proposal

Conversion of the exisitng garage in to a habitable room and the extension of the existing driveway

Have your say

Your comment matters. Councils must consider every representation that raises material planning considerations.

Write a comment