← North Tyneside Council

Status

Awaiting decision House extension
Received
Last month
New homes
0

Full proposal

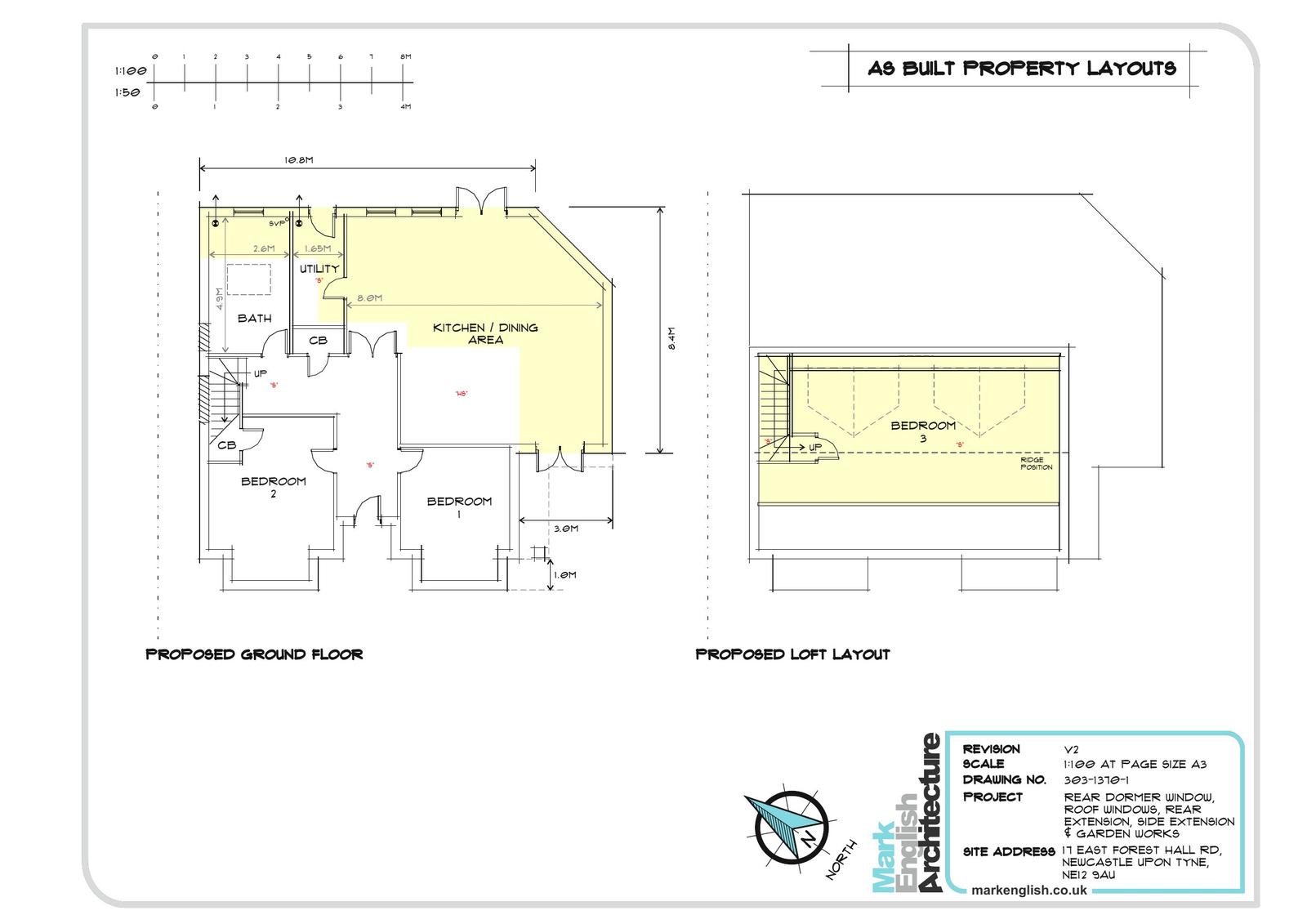
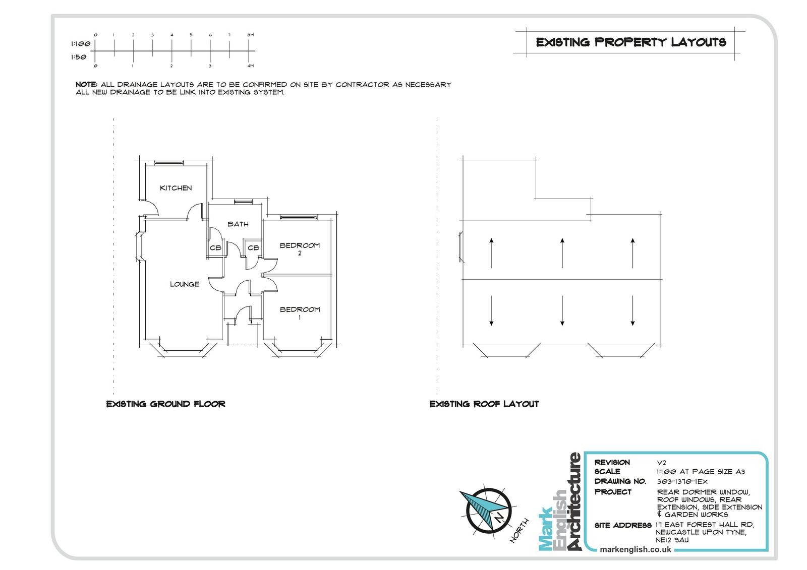
Retrospective single storey side and rear extension, 2no. square bay windows to front, 2no. dormers to rear, 5no roof windows to front and 2no. to rear, elevated patio area to rear, 1.8m rear boundary fence, 1.8m masonry pillar to rear and garden gates

Have your say

Your comment matters. Councils must consider every representation that raises material planning considerations.

Write a comment