← North Tyneside Council

Status

Awaiting decision Change of use
Received
Last month
New homes
0

Full proposal

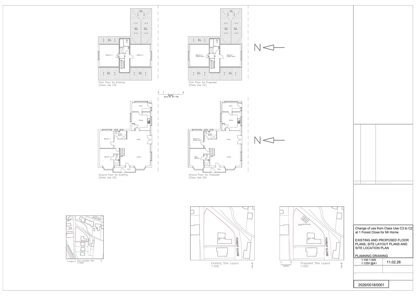
Proposed change of use from C3 dwelling house to C2 childrens residential home

Documents

Application Form
Archived · Original link
Consultee Comment
Archived · Original link
Consultee Comment
Archived · Original link
Consultee Comment
Archived · Original link
Objection Comment
Archived · Original link
Report
Archived · Original link

Have your say

Your comment matters. Councils must consider every representation that raises material planning considerations.

Write a comment