← North Tyneside Council

Status

Awaiting decision House extension
Received
Last month
New homes
0

Full proposal

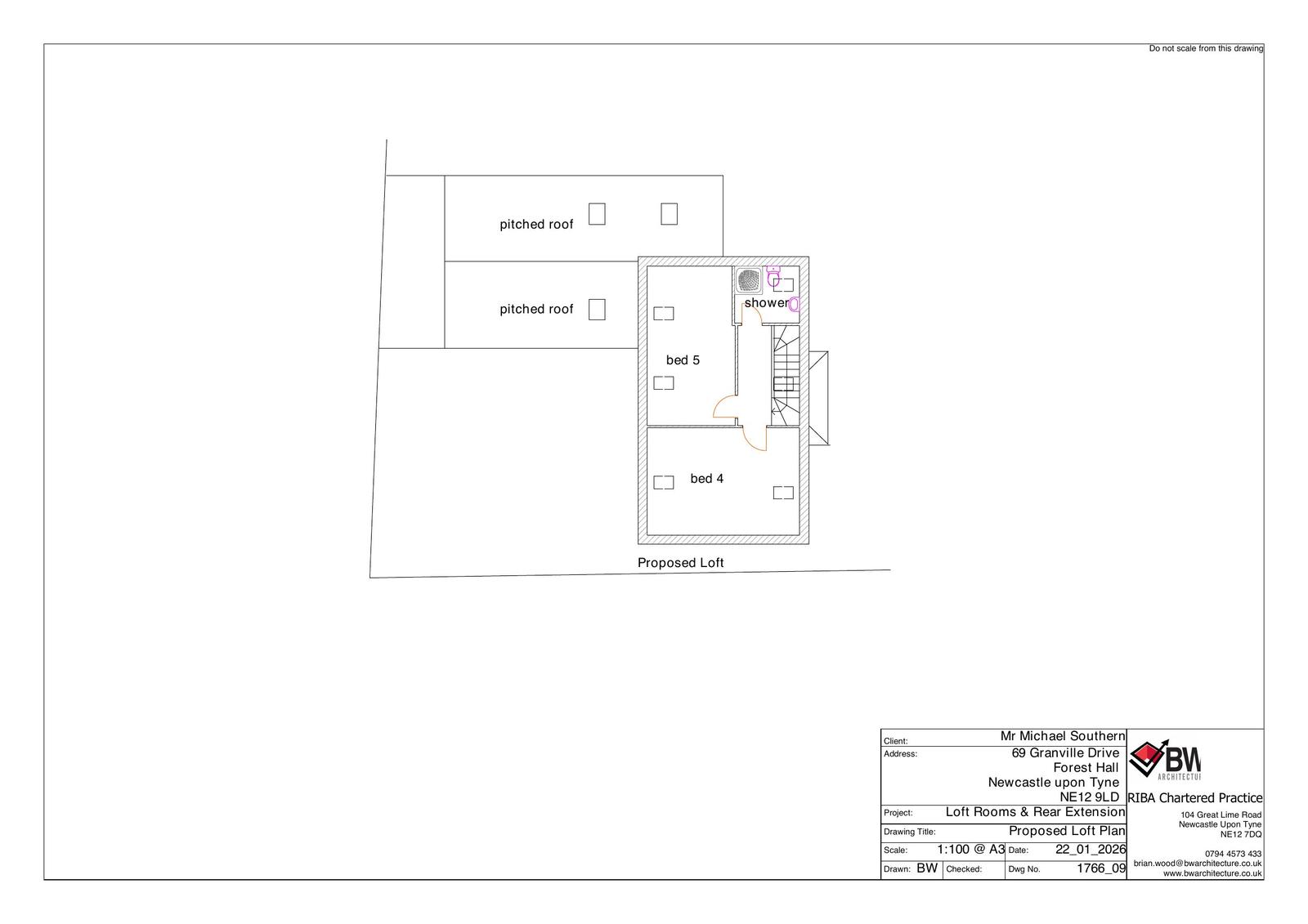
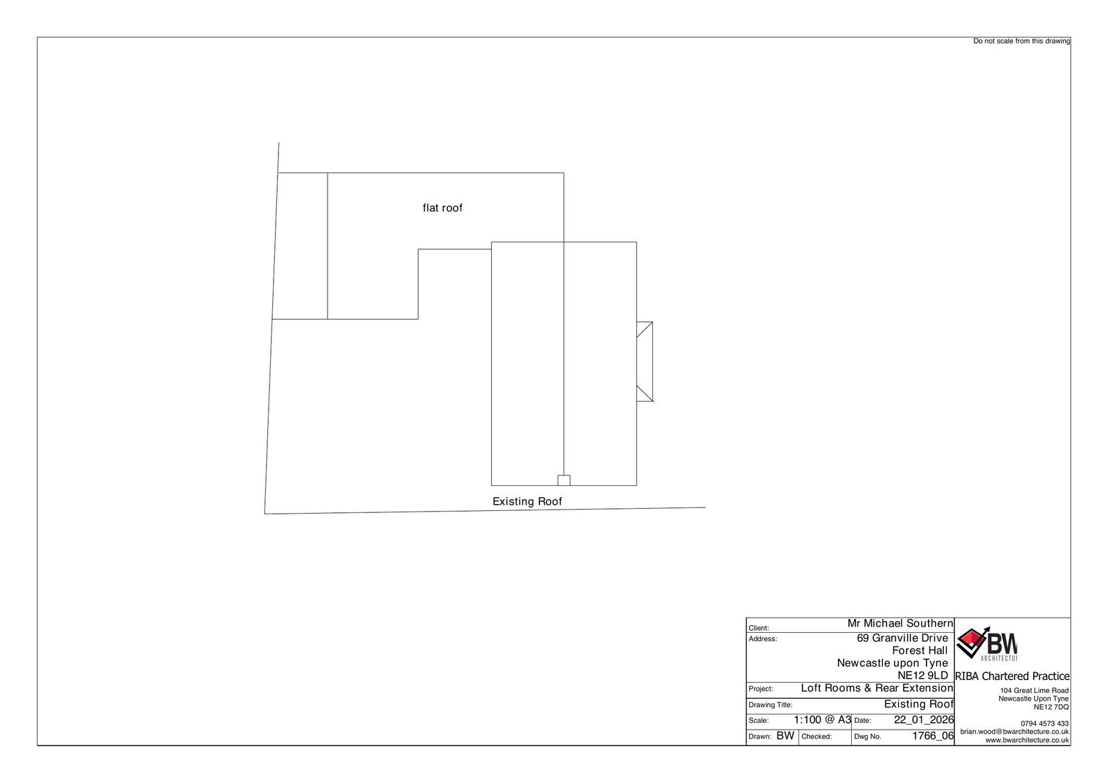
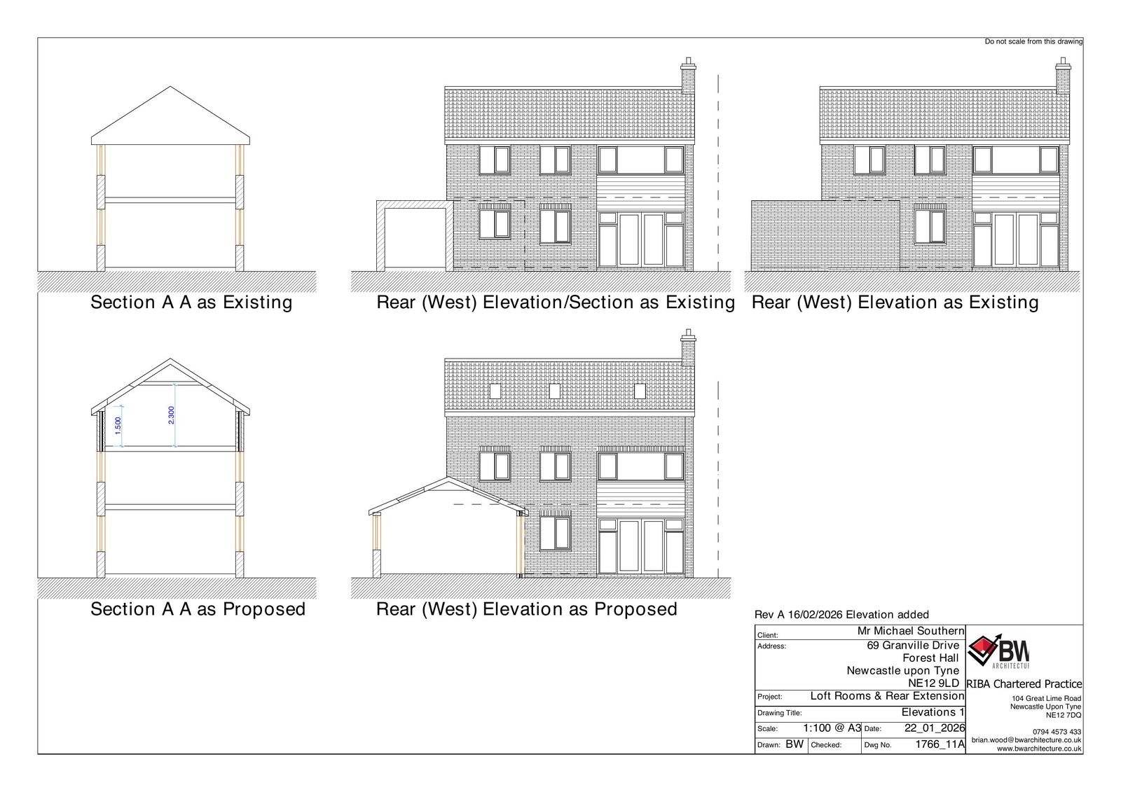
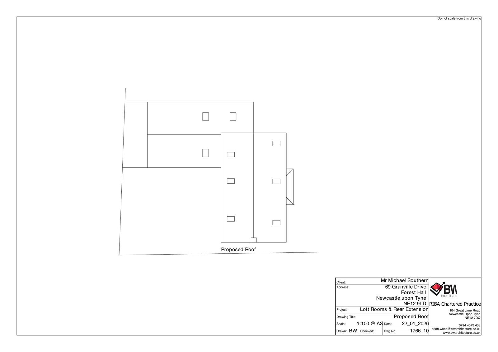
Loft conversion, including raising ridge height by 1.3m, with 3no. rooflights to front and 3no. rooflights to rear. Single storey infill rear extension to link to existing extension and change existing flat roof to pitched roof with 3no. rooflights [amended description 02.03.2026]

Have your say

Your comment matters. Councils must consider every representation that raises material planning considerations.

Write a comment