← North Tyneside Council

Status

Awaiting decision House extension
Received
Last month
New homes
0

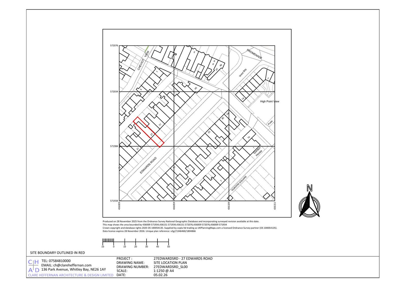
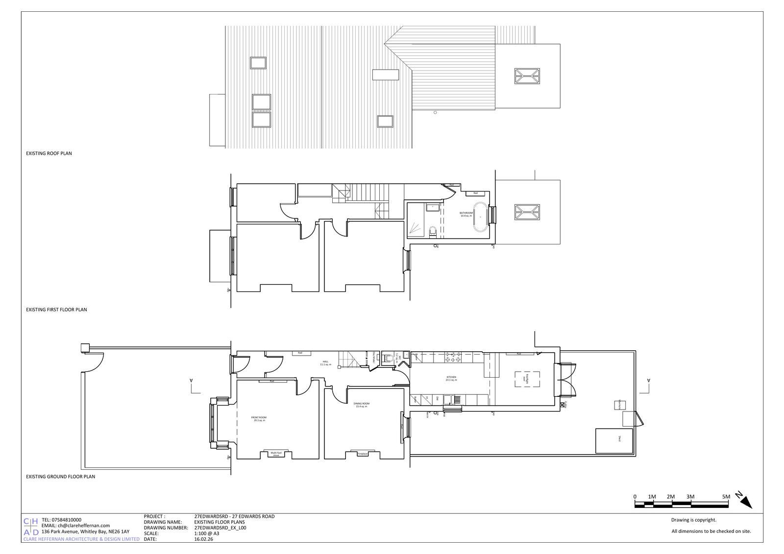
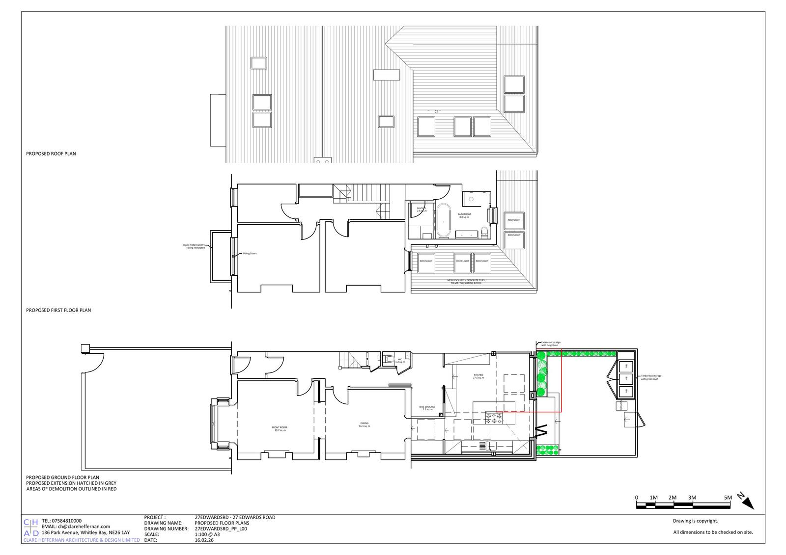
Full proposal

Demolition of existing rear extension, replace with new rear wraparound extension. Balcony railing above the front bay window with sliding doors opening onto the bay window roof, new windows to front elevation. Increased rear boundary wall height by 300mm

Have your say

Your comment matters. Councils must consider every representation that raises material planning considerations.

Write a comment