← North Tyneside Council

Status

Awaiting decision House extension
Received
Last month
New homes
0

Full proposal

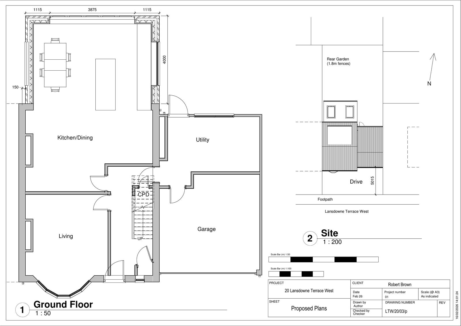
Single storey 4m rear extension with flat roof, materials to match existing, no change of use proposed. Height to eaves 3m, maximum height above ground level 3.2m, total projection from rear wall of original house 4m

Documents

Application Form
Archived · Original link
Drawing
Archived · Original link
Drawing
Archived · Original link
OS Extract
Archived · Original link
Drawing
Archived · Original link
Drawing
Archived · Original link

Have your say

Your comment matters. Councils must consider every representation that raises material planning considerations.

Write a comment