← North Tyneside Council

Status

Awaiting decision House extension
Received
Last month
New homes
0

Full proposal

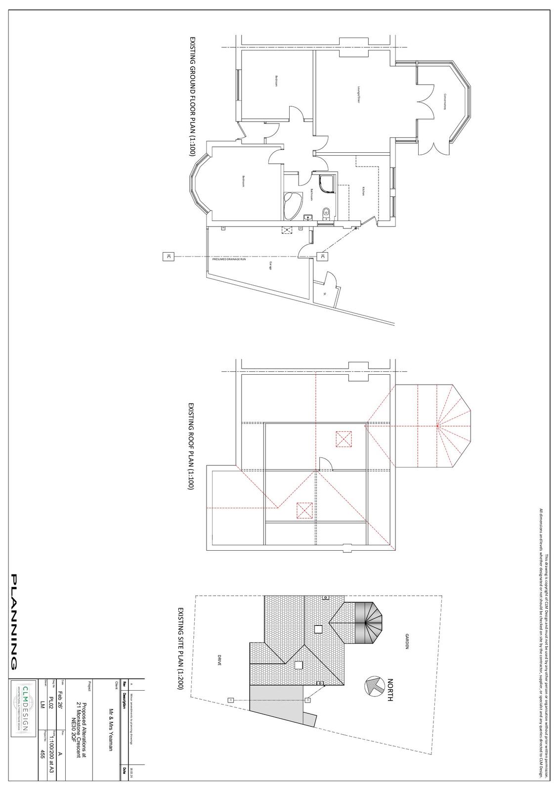
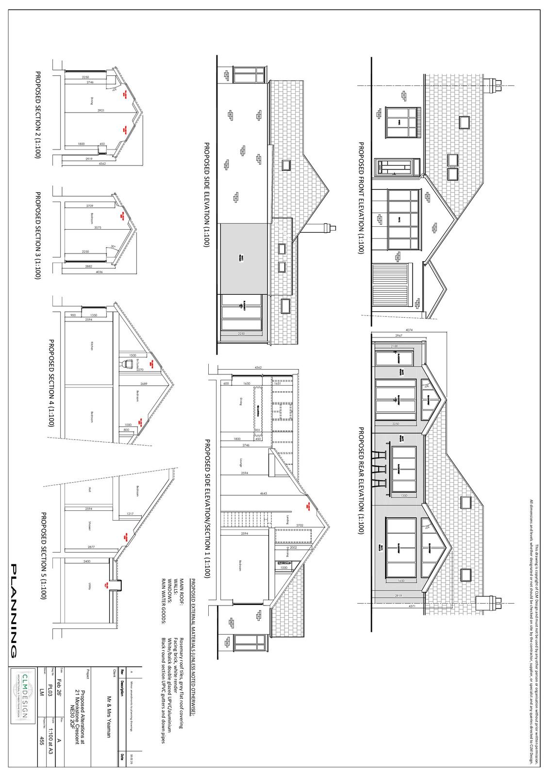
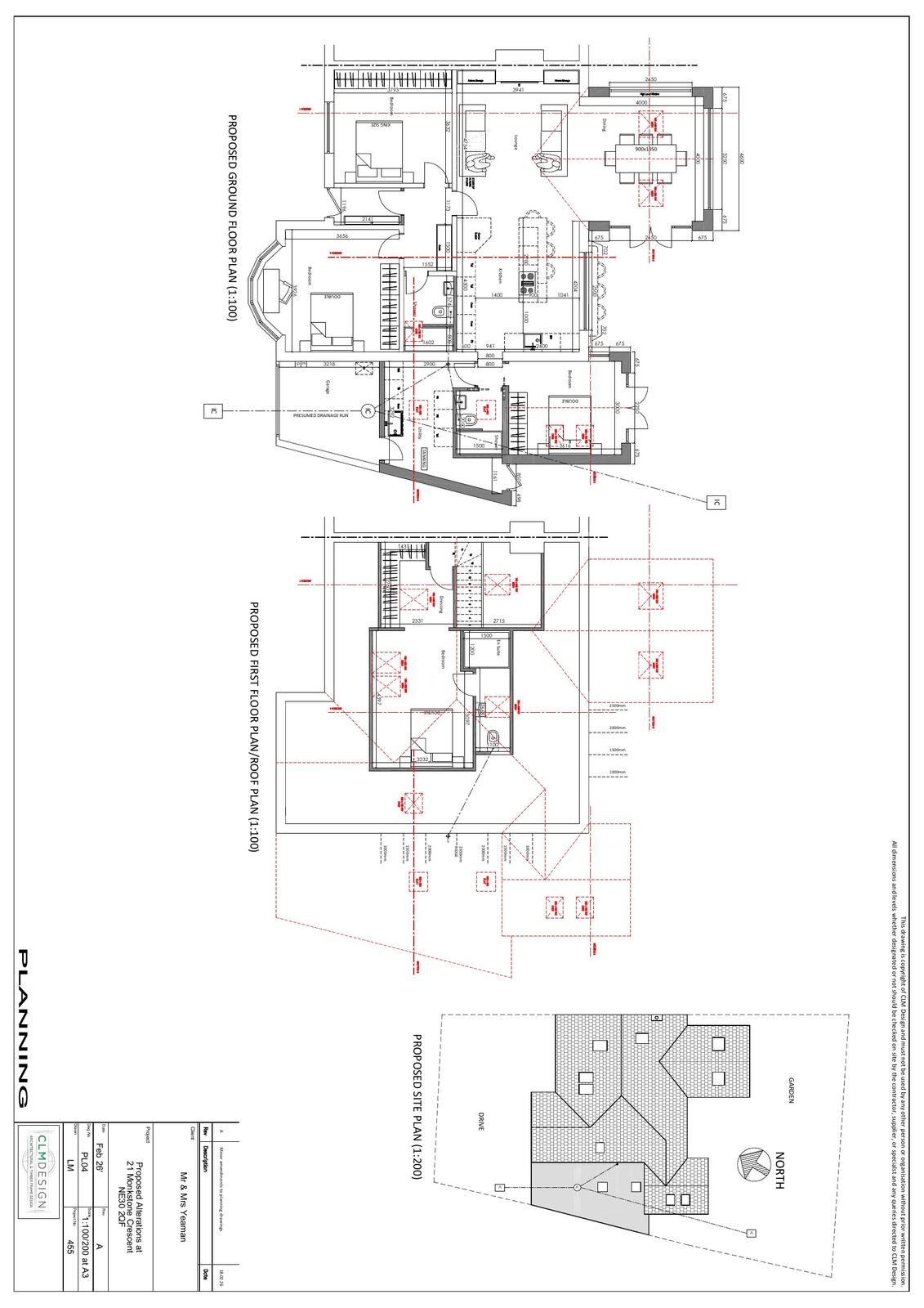
Single storey rear extension and single storey rear/side extension with flat and pitched roofs with 7.No roof windows to the ground floor, loft conversion with 4 No. roof windows

Documents

Application Form
Archived · Original link
Drawing
Archived · Original link
OS Extract
Archived · Original link

Have your say

Your comment matters. Councils must consider every representation that raises material planning considerations.

Write a comment