← North Tyneside Council

Status

Awaiting decision Commercial
Received
Last month
New homes
0

Full proposal

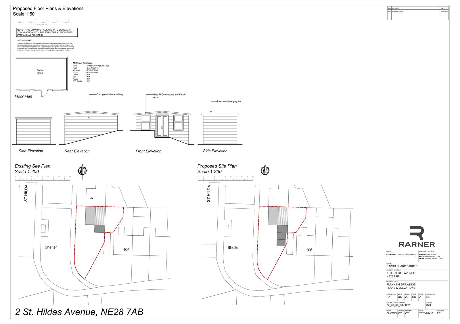
Retrospective construction of single storey timber shed to side of property to run a barber shop business (Use Class E) which is to be ran from C3 dwelling

Have your say

Your comment matters. Councils must consider every representation that raises material planning considerations.

Write a comment