← North Tyneside Council

Status

Awaiting decision House extension
Received
Last month
New homes
0

Full proposal

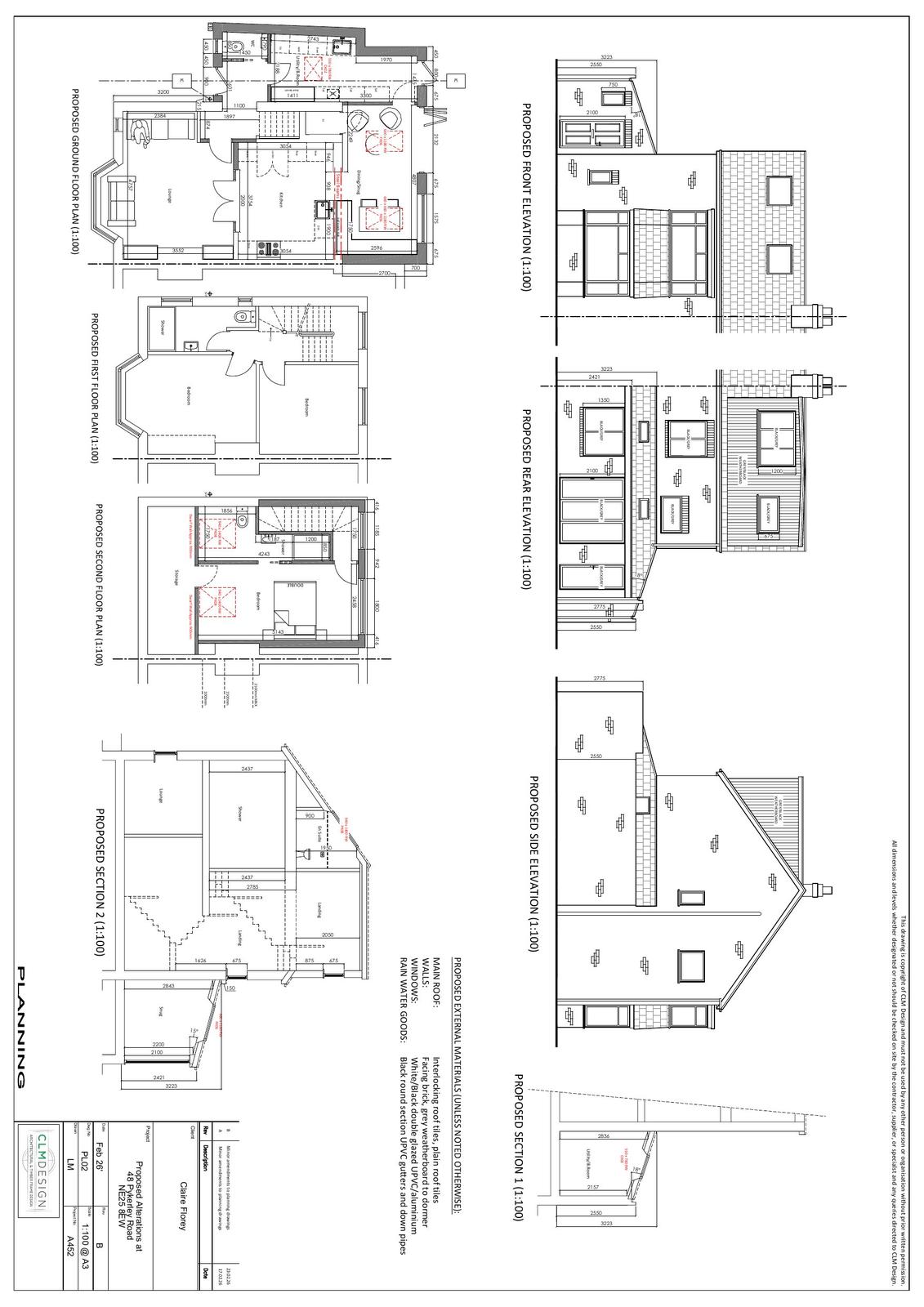
Single storey side/rear extension with lean to roof and 3No. roof windows, loft conversion with rear dormer and 2No. roof windows

Documents

Application Form
Archived · Original link
OS Extract
Archived · Original link

Have your say

Your comment matters. Councils must consider every representation that raises material planning considerations.

Write a comment