← North Tyneside Council

Status

Awaiting decision House extension
Received
Last month
New homes
0

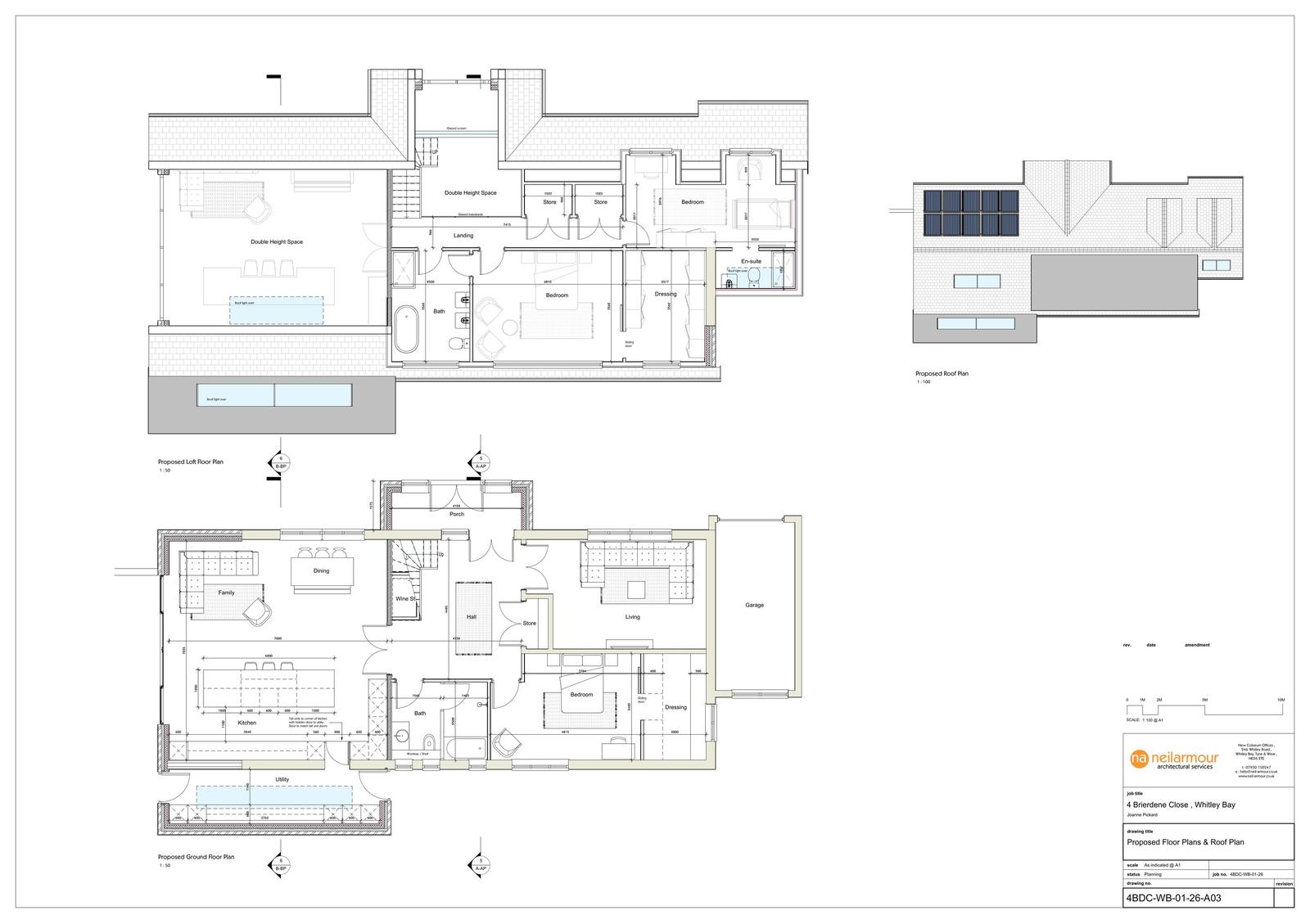
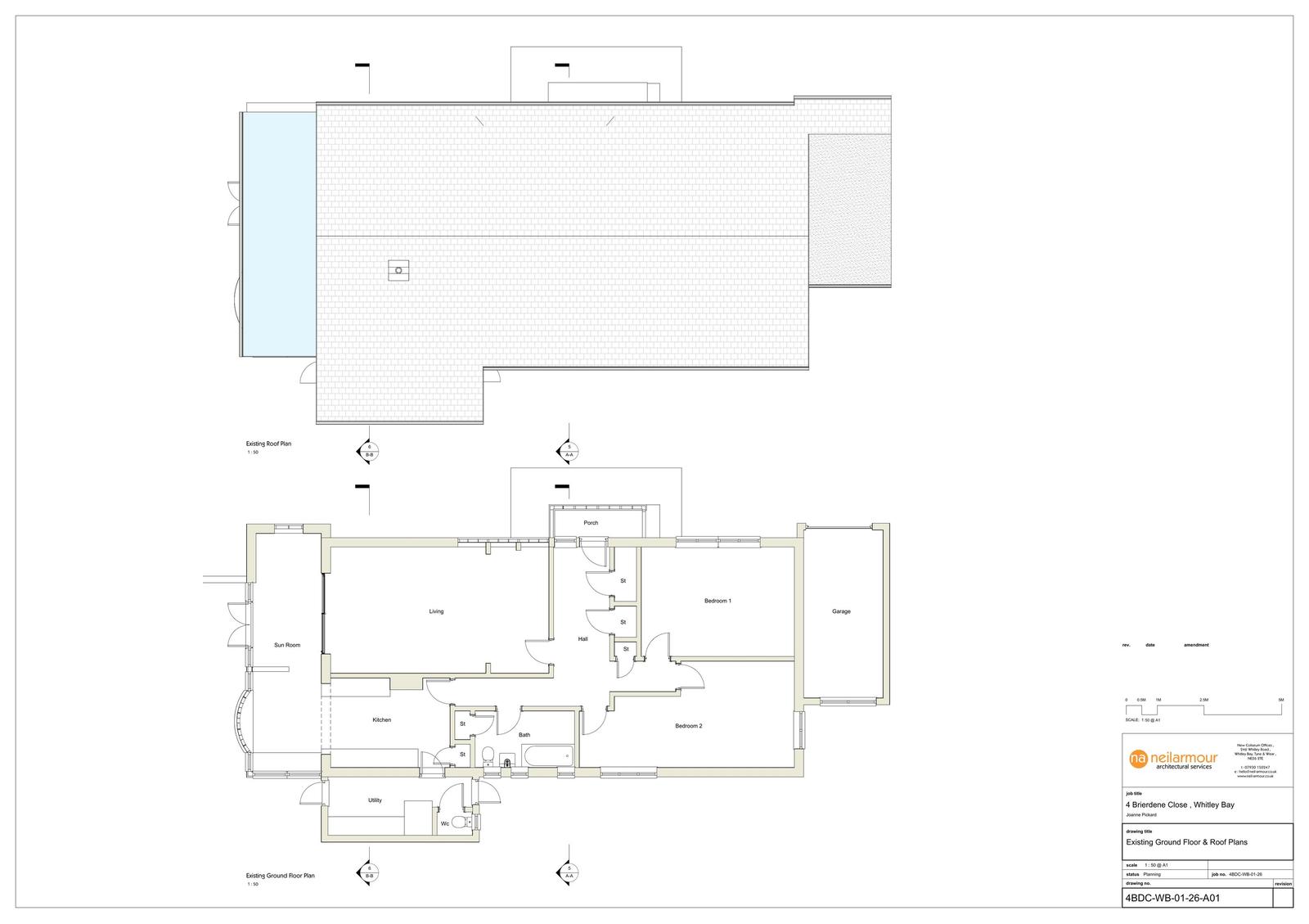
Full proposal

Side and rear extensions including a glazed gable to the northern elevation; loft conversion comprising two pitched roof dormers to the front (one integrated within the roof of the proposed first floor side extension over the existing garage), together with one flat roof dormer to the rear and two rooflights; external alterations including render or cladding to elevations; and installation of 10 solar panels to the front roof slope

Have your say

Your comment matters. Councils must consider every representation that raises material planning considerations.

Write a comment