← North Tyneside Council

Status

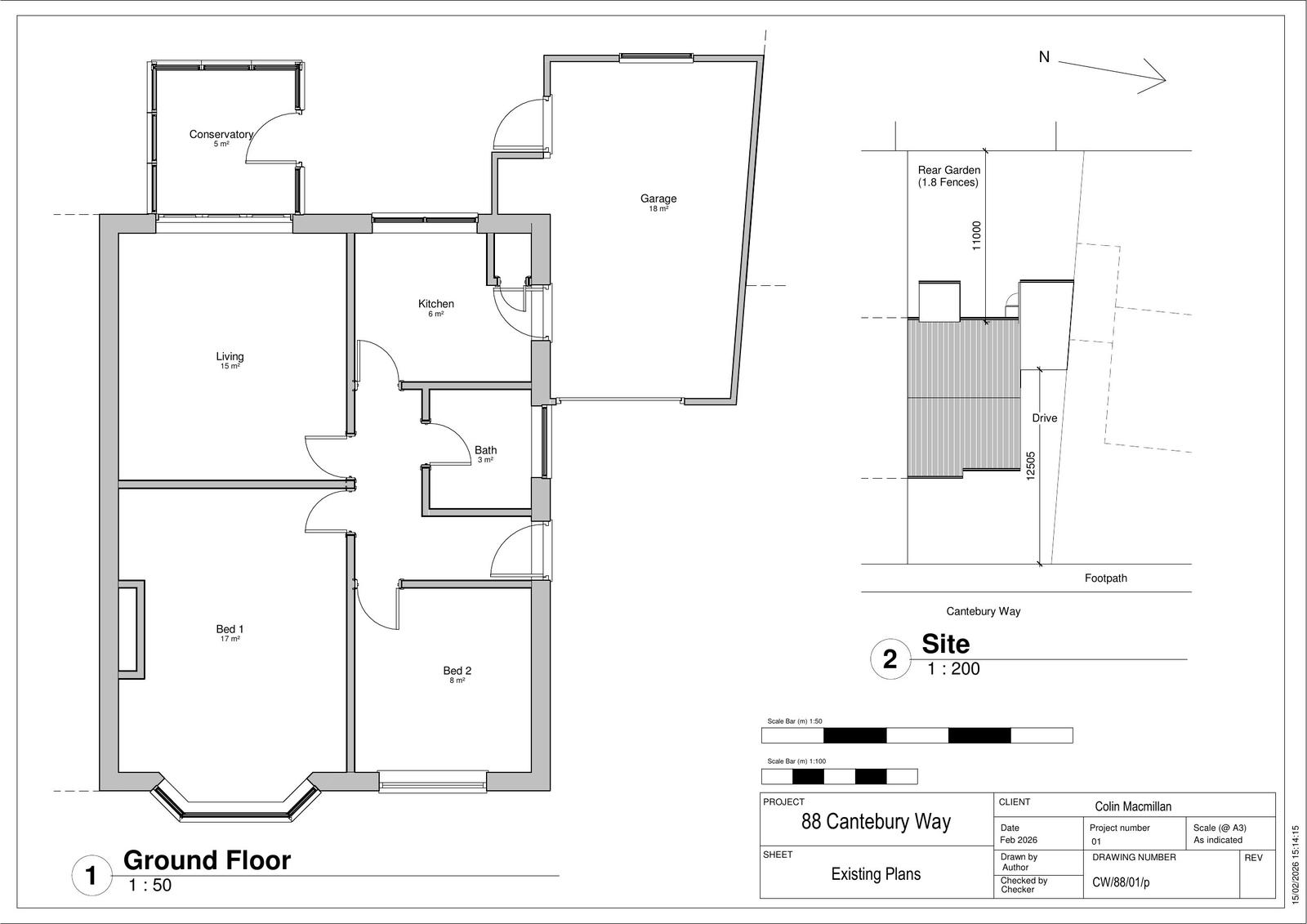
Awaiting decision House extension
Received
Last month
New homes
0

Full proposal

Single storey rear extension and garage conversion

Have your say

Your comment matters. Councils must consider every representation that raises material planning considerations.

Write a comment