← North Tyneside Council

Status

Awaiting decision House extension
Received
Last month
New homes
0

Full proposal

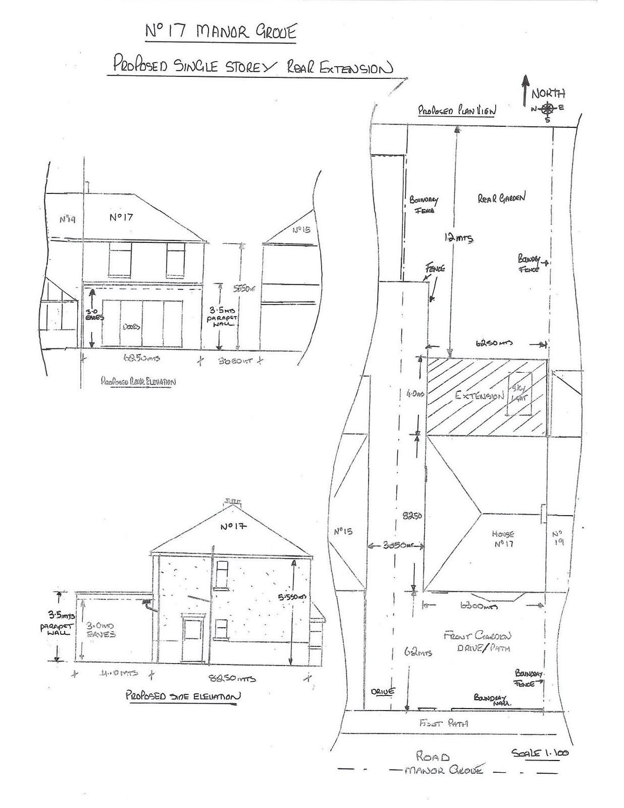
Rear extension open plan kitchen / diner / utility room and downstairs toilet with flat roof / sky light / parapet wall / brick work to match existing / windows and doors to match existing. Height to eaves 3.00m, maximum height above ground level 3.50m, total projection from rear wall of original house 4m

Documents

Application Form
Archived · Original link
Drawing
Archived · Original link
OS Extract
Archived · Original link

Have your say

Your comment matters. Councils must consider every representation that raises material planning considerations.

Write a comment