← North Yorkshire Council

Status

Awaiting decision New housing
Received
24 Apr 2025
New homes
1

Summary

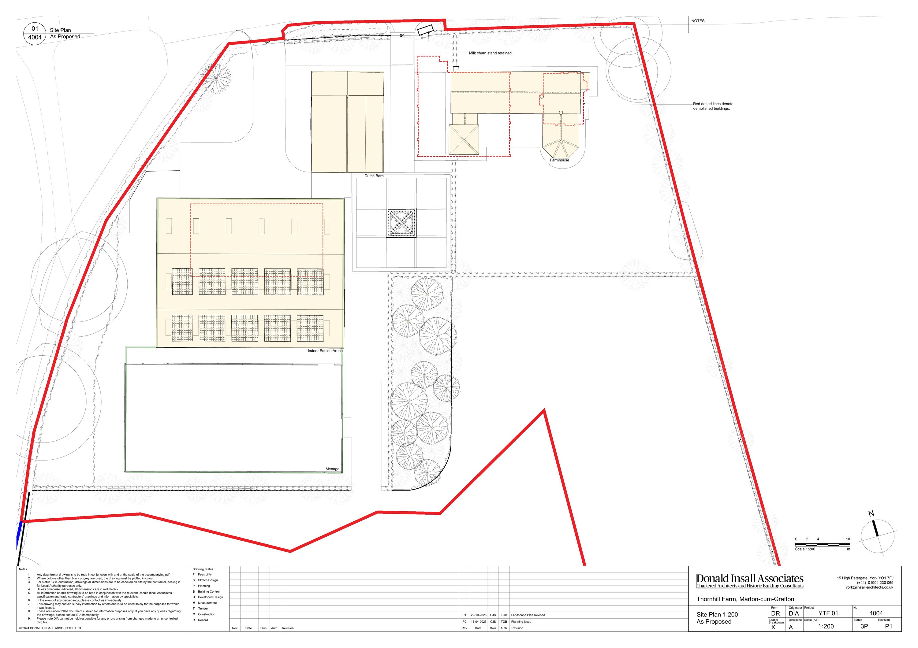
Replacement dwelling and ancillary private equestrian facility following demolition of barns and landscaping.

Full proposal

Erection of 1 no. replacement dwelling and ancillary private equestrian facility, following demolition of timber and steel-framed barns, along with associated landscaping and infrastructure

Documents

2250-LEDA-V1-XX-DR-ME-150 - ME SITE SERVICES
Plan
Not yet archived · Original link
2250-LEDA-XX-RP-MEP-0001 - THORNHILL FARM - MEP LEDA STAGE 2 REPORT
Supporting Information
Not yet archived · Original link
2250-LEDA-XX-RP-MEP-0002 -THORNHILL FARM - SUSTAINABILITY STATEMENT
Supporting Information
Not yet archived · Original link
23014-Y-DR-200-P2 - PROPOSED DRAINAGE GA
Supporting Information
Not yet archived · Original link
23014-Y-RP-001-R0 - DRAINAGE ASSESSMENT REPORT - WITH APPENDIX
Supporting Information
Not yet archived · Original link
APPLICATIONFORMREDACTED
Application Form
Not yet archived · Original link
ARBORICULTURAL IMPACT ASSESSMENT AND METHOD STATEMENT
Supporting Information
Not yet archived · Original link
ARBORICULTURAL OFFICER
Consultee Comment
Not yet archived · Original link
BARN OWL REPORT_2025
Amended Details
Not yet archived · Original link
BAT AND PRELIMINARY ECOLOGICAL APPRAISAL REPORT 2025
Supporting Information
Not yet archived · Original link
BIODIVERSITY GAIN PLAN
Supporting Information
Not yet archived · Original link
BIODIVERSITY_METRIC_CALCULATION
Amended Details
Not yet archived · Original link
CONTAGT - 1 PHONE CALL WITH AGT/APP
Case Notes
Not yet archived · Original link
DRAINAGE REPORT.
Amended Details
Not yet archived · Original link
EHO CONTAMINATED LAND
Consultee Comment
Not yet archived · Original link
ENVIRONMENTAL HEALTH
Consultee Comment
Not yet archived · Original link
EQUESTRIAN FACILITY PLANS
Plan
Not yet archived · Original link
EXAMPLE WILDLIFE ENHANCEMENT PLAN
Amended Details
Not yet archived · Original link
EXISTING UK HABITAT CLASSIFICATION MAP V3
Supporting Information
Not yet archived · Original link
FORM_1_CIL_ADDITIONAL_INFORMATION
Supporting Information
Not yet archived · Original link
GLY0148 LP 01 LANDSCAPE PROPOSALS
Plan
Not yet archived · Original link
GLY0148 LVA - ISSUE 2 11-04-2025_COMPRESSED
Supporting Information
Not yet archived · Original link
LAND CONTAMINATION REPORT PART 1
Supporting Information
Not yet archived · Original link
LAND CONTAMINATION REPORT PART 2
Supporting Information
Not yet archived · Original link
LANDSCAPE OFFICER
Consultee Comment
Not yet archived · Original link
LANDSCAPE PROPOSALS
Amended Details
Not yet archived · Original link
M-145215 - THORNHILL FARM - DEMOLITION
Supporting Information
Not yet archived · Original link
NHC001 PLANNING_REV4
Plan
Not yet archived · Original link
NYC HIGHWAYS
Consultee Comment
Not yet archived · Original link
PLANNING LETTER (UPDATED)
Amended Details
Not yet archived · Original link
PLANNING STATEMENT_THORNHILL FARM_2025 04 23
Supporting Information
Not yet archived · Original link
PRINCIPAL ECOLOGIST
Consultee Comment
Not yet archived · Original link
PRINCIPAL ECOLOGIST
Consultee Comment
Not yet archived · Original link
PROPOSED FLOORPLANS
Plan
Not yet archived · Original link
PROPOSED NORTH AND EAST ELEVATIONS
Plan
Not yet archived · Original link
PROPOSED SECTION AA
Plan
Not yet archived · Original link
PROPOSED SITE ELEVATIONS
Plan
Not yet archived · Original link
Superseded
Archived · Original link
PROPOSED SOUTH AND WEST ELEVATIONS
Plan
Not yet archived · Original link
SHATTOCK P
Public Comment
Not yet archived · Original link
SITE NOTICE
Site Notice
Not yet archived · Original link
THE_STATUTORY_BIODIVERSITY_METRIC_CALCULATION - V2
Supporting Information
Not yet archived · Original link
TOPODWG-SC200
Plan
Not yet archived · Original link
TRANSPORT NOTE REV B
Supporting Information
Not yet archived · Original link
YORKSHIRE WATER
Consultee Comment
Not yet archived · Original link
YORKSHIRE WATER
Consultee Comment
Not yet archived · Original link
YTF01-DIA-3P-X-DR-A-1000-P0_FARMHOUSEPLANS_EXISTING
Plan
Not yet archived · Original link
YTF01-DIA-3P-X-DR-A-1001-P0_DUTCHBARNPLANS_EXISTING
Plan
Not yet archived · Original link
YTF01-DIA-3P-X-DR-A-1002-P0_TIMBERBARNPLANS_EXISTING
Plan
Not yet archived · Original link
YTF01-DIA-3P-X-DR-A-1003-P0_TIMBERBARNROOFPLAN_EXISTING
Plan
Not yet archived · Original link
YTF01-DIA-3P-X-DR-A-1004-P0_STEELBARNPLANS_EXISTING
Plan
Not yet archived · Original link
YTF01-DIA-3P-X-DR-A-1005-P0_STEELBARNROOFPLANS_EXISTING
Plan
Not yet archived · Original link
YTF01-DIA-3P-X-DR-A-1200-P0_FARMHOUSEELEVATIONS_EXISTING
Plan
Not yet archived · Original link
YTF01-DIA-3P-X-DR-A-1201-P0_STEELBARNELEVATIONS_EXISTING
Plan
Not yet archived · Original link
YTF01-DIA-3P-X-DR-A-1202-P0_TIMBERBARNNORTHANDEASTELEVATIONS_EXISTING
Plan
Not yet archived · Original link
YTF01-DIA-3P-X-DR-A-1203-P0_TIMBERBARNSOUTHANDWESTELEVATIONS_EXISTING
Plan
Not yet archived · Original link
YTF01-DIA-3P-X-DR-A-1204-P0_DUTCHBARNNORTHHANDEASTELEVATIONS_EXISTING
Plan
Not yet archived · Original link
YTF01-DIA-3P-X-DR-A-1205-P0_DUTCHBARNSOUTHANDWESTELEVATIONS_EXISTING
Plan
Not yet archived · Original link
YTF01-DIA-3P-X-DR-A-2000-P0_FARMHOUSEFLOORPLANS_PROPOSED
Superseded
Not yet archived · Original link
YTF01-DIA-3P-X-DR-A-2001-P0_DUTCHBARNPLANS_PROPOSED
Plan
Not yet archived · Original link
YTF01-DIA-3P-X-DR-A-2200-P0_FARMHOUSESOUTHANDWESTELEVATIONS_PROPOSED
Superseded
Not yet archived · Original link
YTF01-DIA-3P-X-DR-A-2201-P0_FARMHOUSENORTHANDEASTELEVATIONS_PROPOSED
Superseded
Not yet archived · Original link
YTF01-DIA-3P-X-DR-A-2202-P0_SITEELEVATIONS_PROPOSED
Superseded
Not yet archived · Original link
YTF01-DIA-3P-X-DR-A-2203-P0_SECTIONAA_PROPOSED
Superseded
Not yet archived · Original link
YTF01-DIA-3P-X-DR-A-2204-P0_DUTCHBARNNORTHANDEASTELEVATIONS_PROPOSED
Plan
Not yet archived · Original link
YTF01-DIA-3P-X-DR-A-2205-P0_DUTCHBARNSOUTHANDWESTELEVATIONS_PROPOSED
Plan
Not yet archived · Original link
YTF01-DIA-3P-X-DR-A-4000-P1_LOCATIONPLAN_EXISTING
Location Plan
Not yet archived · Original link
YTF01-DIA-3P-X-DR-A-4001-P0_SITEPLAN_EXISTING
Site/Block Plan - Existing
Not yet archived · Original link
YTF01-DIA-3P-X-DR-A-4002-P0_SITEPLAN1TO200_EXISTING
Site/Block Plan - Existing
Not yet archived · Original link
YTF01-DIA-3P-X-DR-A-4003-P0_SITEPLANANDCURTILAGE_PROPOSED
Superseded
Not yet archived · Original link
YTF01-DIA-3P-X-DR-A-4004-P0_SITEPLAN1TO200_PROPOSED
Superseded
Not yet archived · Original link
YTH01_DESIGN AND ACCESS STATEMENT
Supporting Information
Not yet archived · Original link

Have your say

Your comment matters. Councils must consider every representation that raises material planning considerations.

Write a comment