← Back to North Yorkshire Council
Application
25/01668/FUL
North Yorkshire Council · IDOX
Status
Awaiting decision
New housing
Received
19 May 2025
New dwellings
1
What you can do
Take Action
Make your voice heard. Authorities need to hear from people who support new homes.
Summary
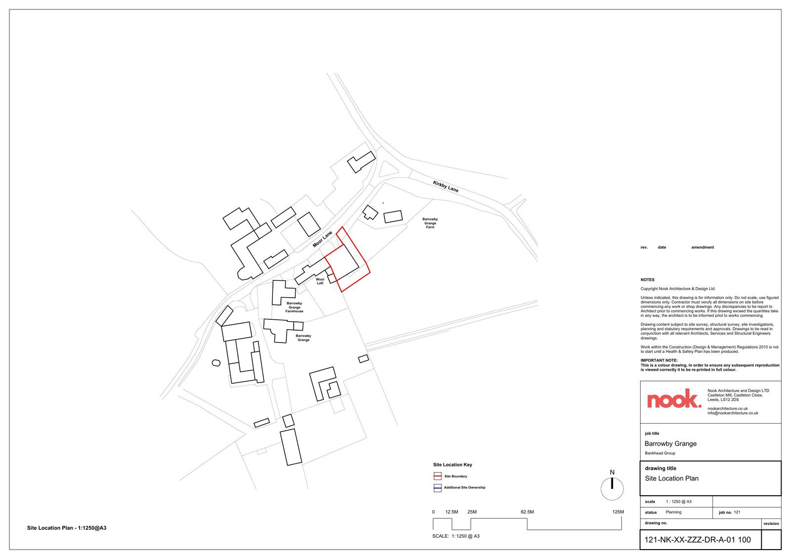
Demolition of storage building and erection of one dwelling with associated works.
Full Proposal
Demolition of storage building and erection of dwelling, with associated works
Detail pages
- View live detail on council site
- No archived detail page available.
Documents
121-NOOK-XX-ZZZ-DR-A- 01 101
Site/Block Plan - Existing
Not downloaded
· Council link
121-NOOK-XX-ZZZ-DR-A- 01 102
Layout Plan - Proposed
Not downloaded
· Council link
121-NOOK-XX-ZZZ-DR-A- 03 100
Location Plan
Not downloaded
· Council link
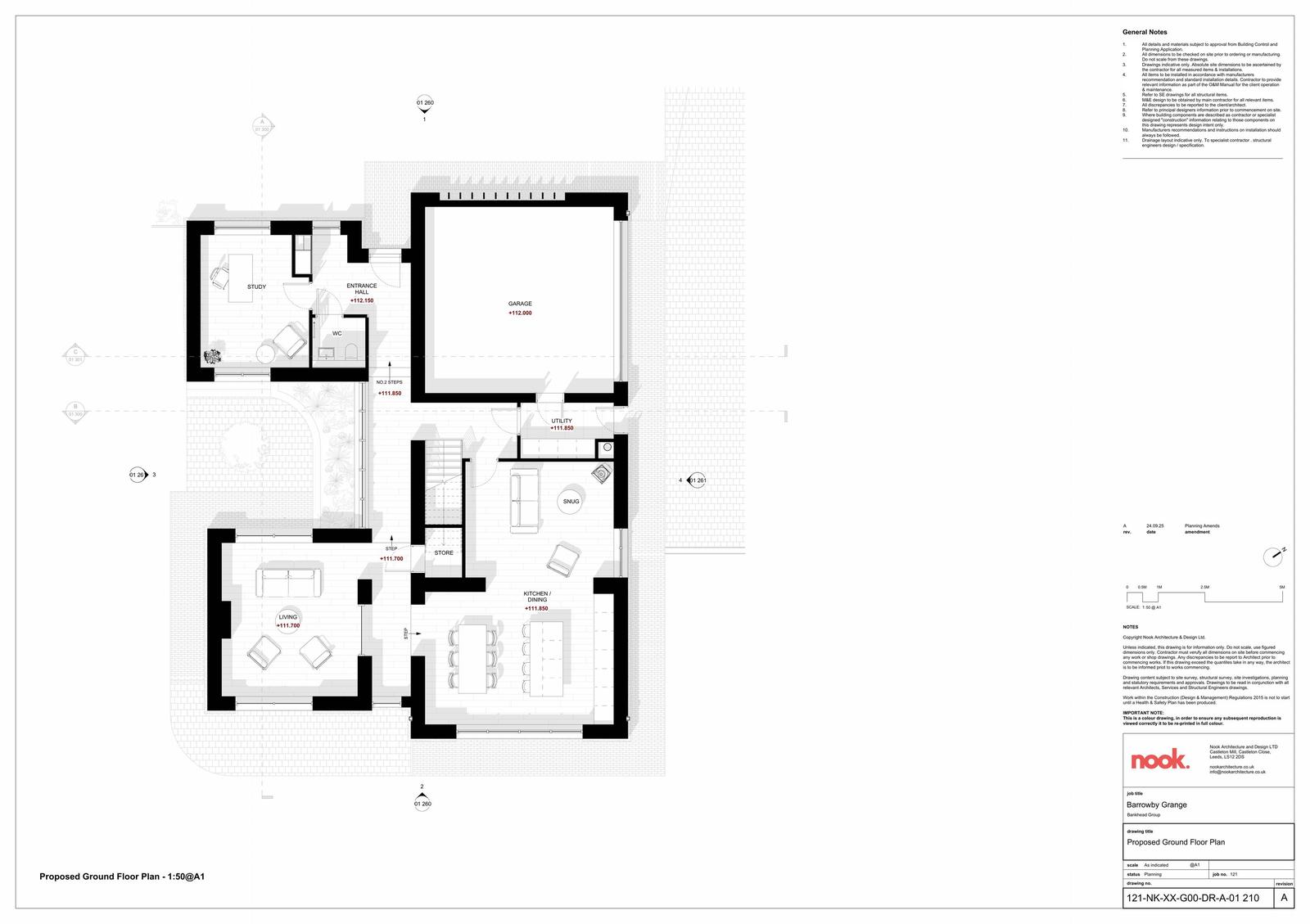
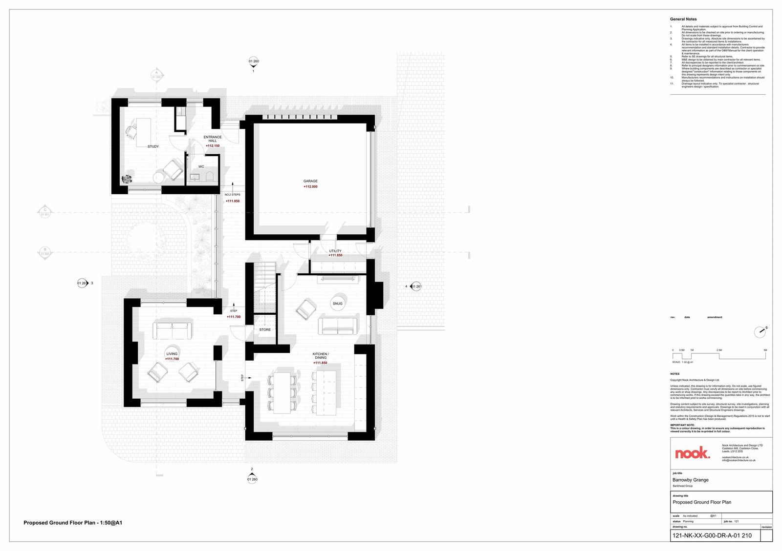
210 PROPOSED GROUND FLOOR PLAN
Plan
Not downloaded
· Council link
211 PROPOSED FIRST FLOOR PLAN
Plan
Not downloaded
· Council link
212 PROPOSED ROOF PLAN
Roof Plan - Proposed
Not downloaded
· Council link
260 PROPOSED EELVATIONS 1 AND 2
Elevation (Rear) - Existing
Not downloaded
· Council link
261 PROPOSED EELEVATION 3 AND 4
Elevation (Front) - Proposed
Not downloaded
· Council link
APPLICATIONFORMREDACTED
Application Form
Not downloaded
· Council link
BIODIVERSITY CHECKLIST
Supporting Information
Not downloaded
· Council link
BNG BASELINE ASSESSMENT
Supporting Information
Not downloaded
· Council link
BNG METRIC
Supporting Information
Not downloaded
· Council link
CASE OFFICER SITE VISIT NOTES
Case Notes
Not downloaded
· Council link
DESIGN AND ACCESS STATEMENT
Supporting Information
Not downloaded
· Council link
ECOLOGY
Consultee Comment
Not downloaded
· Council link
ENVIRONMENTAL HEALTH
Consultee Comment
Not downloaded
· Council link
EXISTING ELEVATIONS 1 AND 2
Elevation (Front) - Existing
Not downloaded
· Council link
EXISTING ELEVATIONS 3 AND 4
Elevation (Rear) - Existing
Not downloaded
· Council link
FORM_1_CIL_ADDITIONAL_INFORMATION
Supporting Information
Not downloaded
· Council link
HARRISON, N
Public Comment
Not downloaded
· Council link
HIGHWAYS
Consultee Comment
Not downloaded
· Council link
PA AFFECT LB SITE NOTICE
Site Notice
Not downloaded
· Council link
PHASE 1 DESK STUDY REPORT
Supporting Information
Not downloaded
· Council link
PLANNING STATEMENT AND APPENDICES
Supporting Information
Not downloaded
· Council link
PRELIMINARY ECOLOGICAL APPRAISAL REPORT
Supporting Information
Not downloaded
· Council link
PRINCIPAL ECOLOGIST
Consultee Comment
Not downloaded
· Council link
PROPOSED FIRST FLOOR PLAN
Amended Details
Not downloaded
· Council link
PROPOSED GA ELEVATIONS
Amended Details
Not downloaded
· Council link
PROPOSED GA ELEVATIONS
Amended Details
Not downloaded
· Council link
PROPOSED GROUND FLOOR PLAN
Amended Details
Not downloaded
· Council link
PROPOSED ROOF PLAN
Amended Details
Not downloaded
· Council link
PROPOSED SECTION AA & BB
Amended Details
Not downloaded
· Council link
PROPOSED SECTIONS
Section - Proposed
Not downloaded
· Council link
PROPOSED SITE PLAN
Amended Details
Archived copy
· Council link
SITE PHOTO 1
Supporting Information
Not downloaded
· Council link
SITE PHOTO 2
Supporting Information
Not downloaded
· Council link
SITE PHOTO 3
Supporting Information
Not downloaded
· Council link
SWEPT PATH ANALYSIS
Plan
Not downloaded
· Council link