← Back to North Yorkshire Council

Status

Registered New housing
Received 23 May 2025
New dwellings 216

What you can do

Take Action

Make your voice heard. Authorities need to hear from people who support new homes.

Summary

Reserved matters for access, appearance, landscaping, layout and scale for 216 dwellings.

Full Proposal

Reserved Matters Application for access, appearance, landscaping, layout and scale for 216 dwellings. RECONSULTATION.

Detail pages

Documents

AFFORDABLE HOUSING UNITS
Amended Details
Not downloaded · Council link
AFFORDABLE HOUSING UNITS (OLD LAYOUT).
Amended Details
Not downloaded · Council link
AFFORDABLE HOUSING UNITS-A1
Amended Details
Not downloaded · Council link
ALDERSON, G
Public Comment
Not downloaded · Council link
ANCILLARY PLAN
Amended Details
Not downloaded · Council link
APPENDICES LIST
Supporting Information
Not downloaded · Council link
APPLICATION FORM REDACTED
Application Form
Not downloaded · Council link
ARBORICULTURAL METHOD STATEMENT
Supporting Information
Not downloaded · Council link
BANKS HOMES HOUSE TYPES - HILL TOP CHARACTER AREA
Mixed/Combined Plans
Not downloaded · Council link
BIODIVERSITY METRIC
Supporting Information
Not downloaded · Council link
BLUNDEN, S
Public Comment
Not downloaded · Council link
BOUNDARY TREATMENT - 0.7M TIMBER RAILING
Detail Drawing
Not downloaded · Council link
BOUNDARY TREATMENT - 1.2M HOOPED METAL RAILING
Detail Drawing
Not downloaded · Council link
BOUNDARY TREATMENT - 1.8M PIER AND PANEL WALL
Detail Drawing
Not downloaded · Council link
BOUNDARY TREATMENT - 1.8M TIMBER FENCE
Detail Drawing
Not downloaded · Council link
BOUNDARY TREATMENT PLAN
Plan
Not downloaded · Council link
BOUNDARY TREATMENT PLAN.
Amended Details
Not downloaded · Council link
CASE OFFICER SITE VISIT NOTES
Case Notes
Not downloaded · Council link
CASE OFFICER SITE VISIT NOTES
Case Notes
Not downloaded · Council link
CONSERVATION OFFICER
Consultee Comment
Not downloaded · Council link
CONSTRUCTION ECOLOGICAL MANAGEMENT PLAN
Supporting Information
Not downloaded · Council link
CONTAMINATED LAND
Consultee Comment
Not downloaded · Council link
CULVERT SECTION
Section - Proposed
Not downloaded · Council link
CUSTOM & SELF-BUILD MARKETING STRATEGY
Amended Details
Not downloaded · Council link
DESIGN AND ACCESS STUDY
Supporting Information
Not downloaded · Council link
DETAILED PLANTING PLAN (DRAWING 1 OF 9)
Amended Details
Not downloaded · Council link
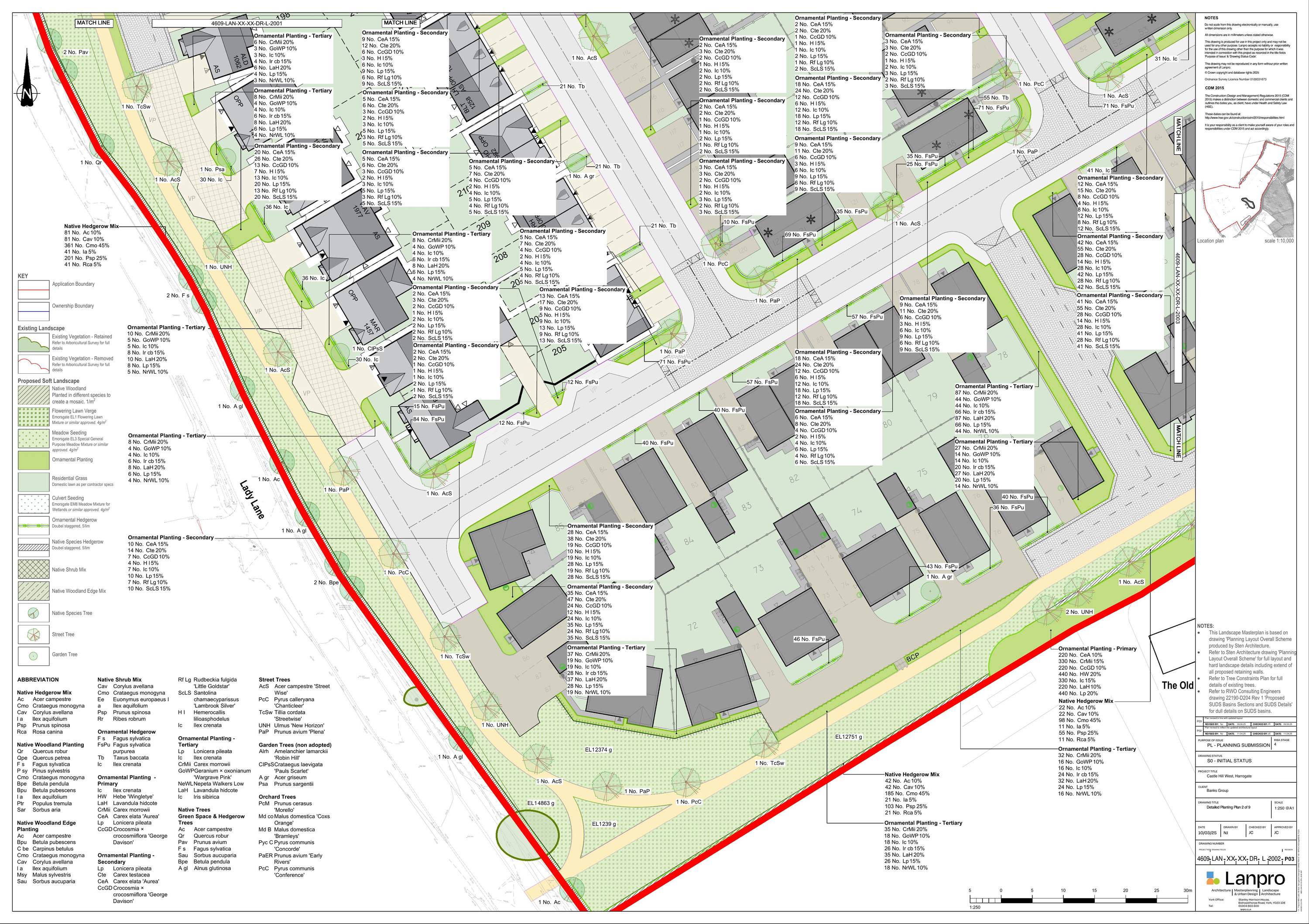
DETAILED PLANTING PLAN (DRAWING 2 OF 9)
Amended Details
Not downloaded · Council link
DETAILED PLANTING PLAN (DRAWING 3 OF 9)
Amended Details
Not downloaded · Council link
DETAILED PLANTING PLAN (DRAWING 4 OF 9)
Amended Details
Not downloaded · Council link
DETAILED PLANTING PLAN (DRAWING 5 OF 9)
Amended Details
Not downloaded · Council link
DETAILED PLANTING PLAN (DRAWING 6 OF 9)
Amended Details
Not downloaded · Council link
DETAILED PLANTING PLAN (DRAWING 7 OF 9)
Amended Details
Not downloaded · Council link
DETAILED PLANTING PLAN (DRAWING 8 OF 9)
Amended Details
Not downloaded · Council link
DETAILED PLANTING PLAN (DRAWING 9 OF 9)
Amended Details
Not downloaded · Council link
DIRECT COMPARSION CUT AND FILL
Plan
Not downloaded · Council link
DIRECT COMPARSION CUT AND FILL
Amended Details
Not downloaded · Council link
DOUBLE GARAGE
Mixed/Combined Plans
Not downloaded · Council link
DRAINAGE AREAS
Amended Details
Not downloaded · Council link
DRAINAGE CALCULATIONS
Supporting Information
Not downloaded · Council link
ECONOMIC DEVELOPMENT
Consultee Comment
Not downloaded · Council link
ENGINEERING LAYOUT OVERALL
Layout Plan - Proposed
Not downloaded · Council link
ENGINEERING LAYOUT SHEETS
Layout Plan - Proposed
Not downloaded · Council link
ENVIRONMENT AGENCY
Consultee Comment
Not downloaded · Council link
ENVIRONMENT AGENCY
Consultee Comment
Not downloaded · Council link
ENVIRONMENTAL HEALTH
Consultee Comment
Not downloaded · Council link
ENVIRONMENTAL HEALTH
Consultee Comment
Not downloaded · Council link
FEASABILITY LAYOUT
Amended Details
Not downloaded · Council link
FIRE ENGINE TRACKING SHEET 1
Plan
Not downloaded · Council link
FIRE ENGINE TRACKING SHEET 2
Plan
Not downloaded · Council link
FLOOD AUTHORITY
Consultee Comment
Not downloaded · Council link
FLOOD ROUTE PLAN
Plan
Not downloaded · Council link
FLOOD ROUTE PLAN
Amended Details
Not downloaded · Council link
FLOOR & ELEVATION PLANS
Amended Details
Not downloaded · Council link
FLOOR & ELEVATION PLANS
Amended Details
Not downloaded · Council link
FLOOR & ELEVATION PLANS
Amended Details
Not downloaded · Council link
GARDEN SIZE SCHEDULE
Amended Details
Not downloaded · Council link
GARDEN SIZES PLAN
Amended Details
Not downloaded · Council link
GARDNER, S
Public Comment
Not downloaded · Council link
HEDGES, A
Public Comment
Not downloaded · Council link
HIGHWAYS
Consultee Comment
Not downloaded · Council link
HIGHWAYS TECHNICAL NOTE
Supporting Information
Not downloaded · Council link
HILL TOP HOUSE STYLE
Amended Details
Not downloaded · Council link
HOUSE STYLE - WHINNEY LANE EDGE
Amended Details
Not downloaded · Council link
HOUSE TYPES - INNER STREETS
Supporting Information
Not downloaded · Council link
HOUSE TYPES PORTFOLIO
Mixed/Combined Plans
Not downloaded · Council link
HOUSING
Consultee Comment
Not downloaded · Council link
HOUSING DEPARTMENT
Consultee Comment
Not downloaded · Council link
INNER STREETS HOUSE STYLE
Amended Details
Not downloaded · Council link
KIERNAN, J
Public Comment
Not downloaded · Council link
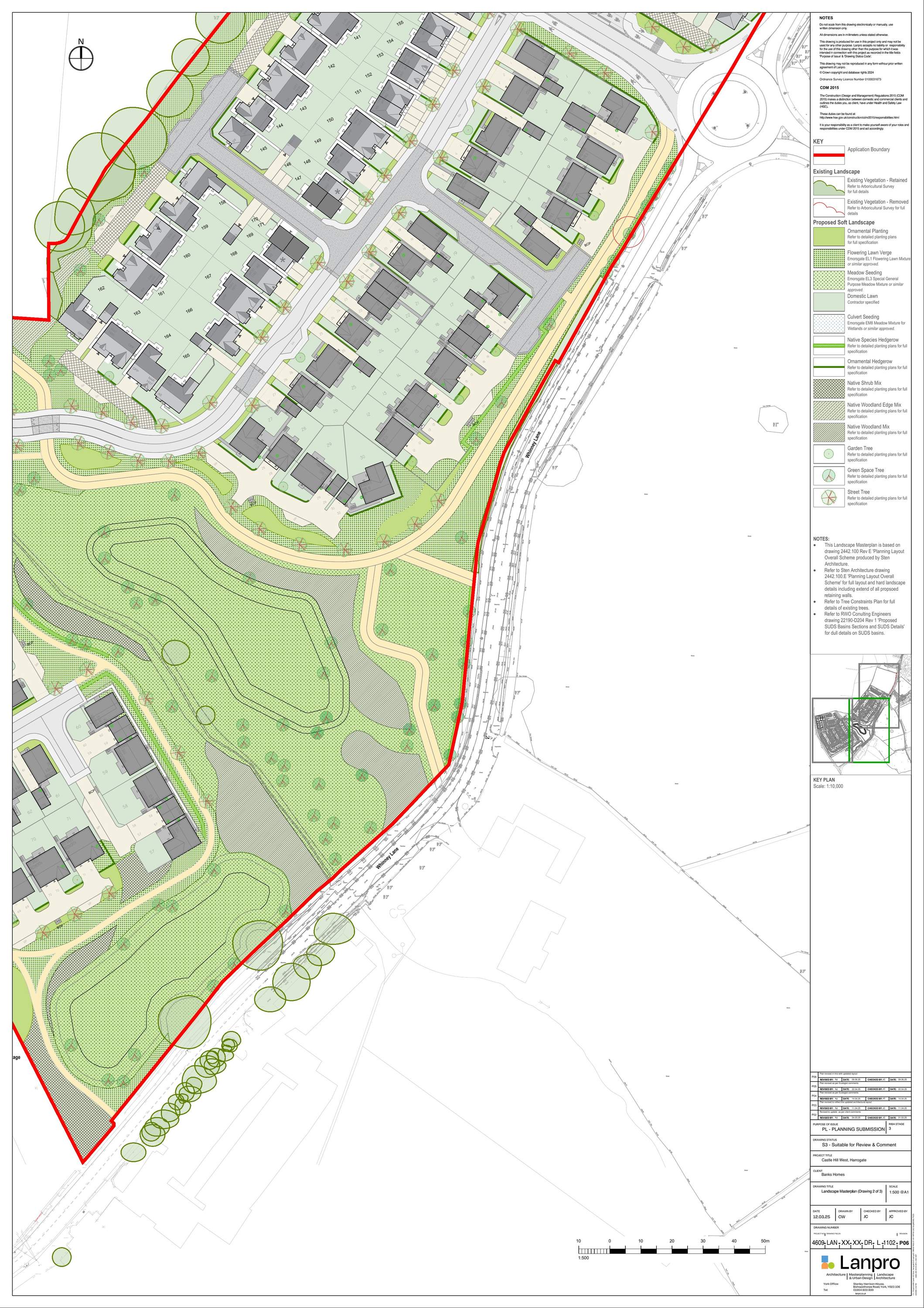
LANDSCAPE MASTERPLAN (DRAWING 2 OF 3)
Amended Details
Not downloaded · Council link
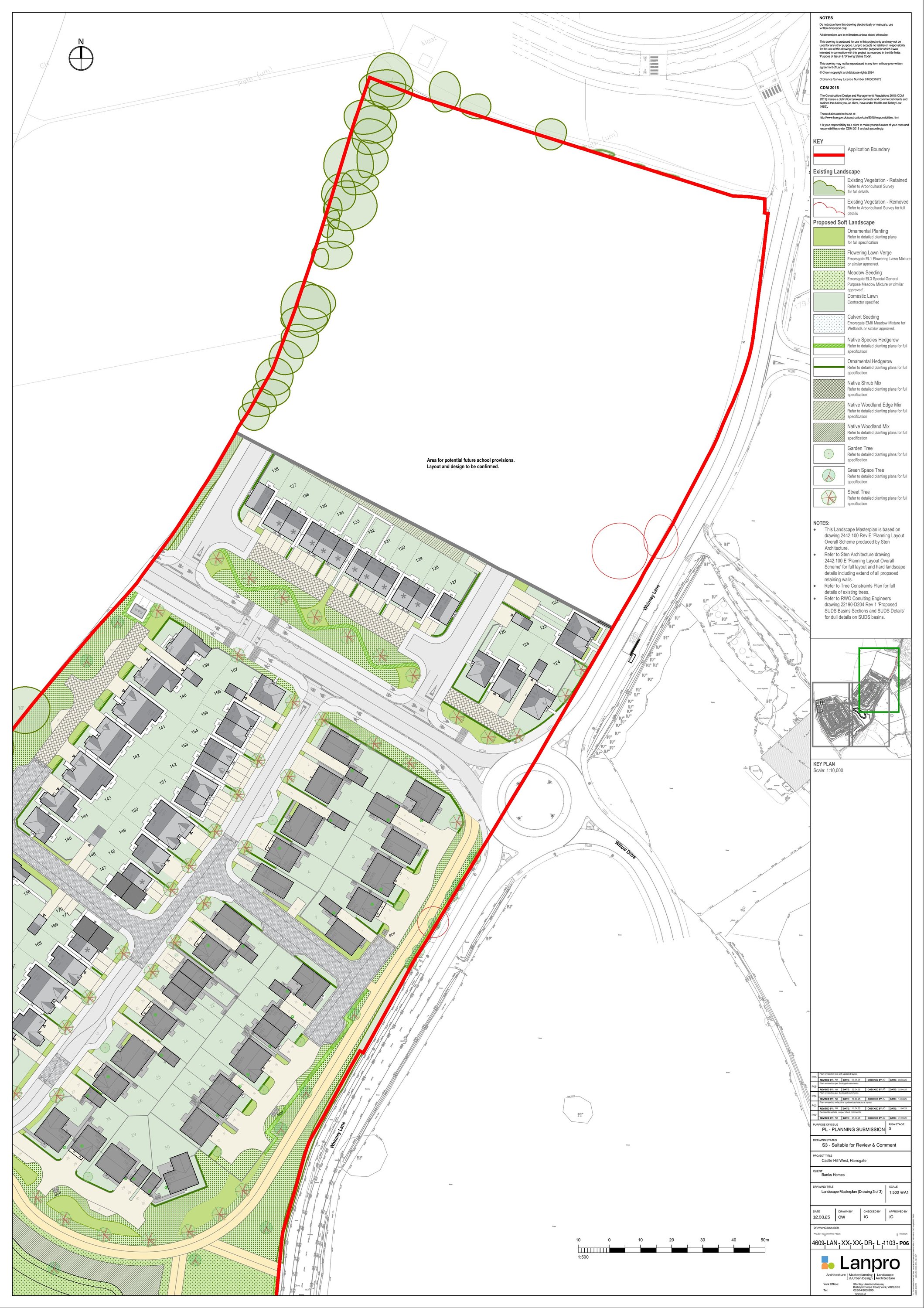
LANDSCAPE MASTERPLAN (DRAWING 3 OF 3)
Amended Details
Not downloaded · Council link
LANDSCAPING MASTERPLAN PART 1
Plan
Not downloaded · Council link
LEAD LOCAL FLOOD AUTHORITY
Consultee Comment
Not downloaded · Council link
LOCAL HIGHWAYS
Consultee Comment
Not downloaded · Council link
MAJOR DEVELOPMENT SITE NOTICE
Site Notice
Not downloaded · Council link
MAJOR DEVELOPMENT SITE NOTICE
Site Notice
Not downloaded · Council link
MANAGED AREAS PLAN
Amended Details
Not downloaded · Council link
MANAGED AREAS PLAN
Amended Details
Not downloaded · Council link
MATERIALS LAYOUT
Amended Details
Not downloaded · Council link
MATERIALS LAYOUT
Plan
Not downloaded · Council link
MATERIALS LAYOUT (OLD LAYOUT).
Amended Details
Not downloaded · Council link
NATURAL ENGLAND
Consultee Comment
Not downloaded · Council link
NATURAL ENGLAND
Consultee Comment
Not downloaded · Council link
ORMSHAW, S
Public Comment
Not downloaded · Council link
OVERALL PLANNING LAYOUT
Amended Details
Not downloaded · Council link
OVERALL PLANNING LAYOUT
Layout Plan - Proposed
Not downloaded · Council link
OVERALL PLANNING LAYOUT.
Amended Details
Not downloaded · Council link
PARISH COUNCIL
Consultee Comment
Not downloaded · Council link
PARISH COUNCIL
Consultee Comment
Not downloaded · Council link
PEDESTRIAN CYCLE POINTS OF ACCESS
Amended Details
Not downloaded · Council link
PHOTO IMAGE
Amended Details
Not downloaded · Council link
PHOTO IMAGE
Amended Details
Not downloaded · Council link
PLANNING COMPLIANCE STATEMENT
Supporting Information
Not downloaded · Council link
PLANNING DRAWINGS CA1 T10
Mixed/Combined Plans
Not downloaded · Council link
PLANNING DRAWINGS CA2 T1A T1B
Mixed/Combined Plans
Not downloaded · Council link
PLANNING LAYOUT OVERALL SCHEME
Amended Details
Not downloaded · Council link
PLANS & DRAWINGS LIST V2
Amended Details
Not downloaded · Council link
PLANS & DRAWINGS LIST V2 COLOUR CODED
Amended Details
Not downloaded · Council link
POS-A1
Amended Details
Not downloaded · Council link
POST DEVELOPMENT HABITAT PLAN
Plan
Not downloaded · Council link
PRE DEVELOPMENT HABITAT PLAN
Plan
Not downloaded · Council link
PRINCIPAL ECOLOGIST
Consultee Comment
Not downloaded · Council link
PROPOSED ENGINEERING LAYOUT
Amended Details
Not downloaded · Council link
PROPOSED ENGINEERING LAYOUT OVERALL
Amended Details
Not downloaded · Council link
PROPOSED SUDS BASIN SECTIONS DETAILS
Amended Details
Not downloaded · Council link
PUBLIC OPEN SPACE PLAN
Plan
Not downloaded · Council link
REFUSE TRACKING SHEET 1
Plan
Not downloaded · Council link
REFUSE TRACKING SHEET 2
Plan
Not downloaded · Council link
RESERVED MATTERS APPLICATION BOUNDARY
Location Plan
Not downloaded · Council link
ROAD LONGSECTIONS SHEETS
Section - Proposed
Not downloaded · Council link
SINGLE GARAGE
Mixed/Combined Plans
Not downloaded · Council link
SPINE ROAD LONG SECTION
Plan
Not downloaded · Council link
STREET SCENES
Street Scene/Context Plan - Proposed
Not downloaded · Council link
STREET VISUAL 1
Street Scene/Context Plan - Proposed
Not downloaded · Council link
SUDS BASIN SECTIONS DETAILS
Detail Drawing
Not downloaded · Council link
SUDS IDENTIFICATION PLAN
Amended Details
Not downloaded · Council link
SUDS IDENTIFICATION PLAN
Detail Drawing
Not downloaded · Council link
SUPPLEMENTARY STATEMENT
Amended Details
Not downloaded · Council link
SURFACING PLAN
Amended Details
Not downloaded · Council link
SURFACING PLAN OVERALL
Amended Details
Not downloaded · Council link
SURFACING PLAN OVERALL
Plan
Not downloaded · Council link
SURFACING PLAN SHEETS
Plan
Not downloaded · Council link
SUSTSAINABILITY STATEMENT
Amended Details
Not downloaded · Council link
TEMPORARY CONSTRUCTION ACCESS FROM LADY LANE
Plan
Not downloaded · Council link
TWIN GARAGE
Mixed/Combined Plans
Not downloaded · Council link
TWIN GARAGE
Mixed/Combined Plans
Not downloaded · Council link
URBAN DESIGN
Consultee Comment
Not downloaded · Council link
URBAN DESIGN
Consultee Comment
Not downloaded · Council link
YORKSHIRE WATER
Consultee Comment
Not downloaded · Council link
YORKSHIRE WATER
Consultee Comment
Not downloaded · Council link