← North Yorkshire Council

Status

Registered New housing
Received
25 Jun 2025
New homes
2

Summary

Retain pub and build two three-bedroom dwellings, reconfigure car park, relocate access, landscaping.

Full proposal

Retention of the existing public house (sui generis) and erection of two three-bedroom dwellings (Use Class C3) on land to the rear of the site, reconfiguring the public house car park and relocating the existing access off Coppice Gate, with associate parking, hard and soft landscaping.

Documents

Application Form
Application Form
Not yet archived · Original link
Application Form
Application Form
Not yet archived · Original link
APPLICATION FORM REDACTED
Application Form
Not yet archived · Original link
BLACKER, M
Public Comment
Not yet archived · Original link
BLOCK PLAN, LOCATION PLAN
Location Plan
Not yet archived · Original link
CASE OFFICER SITE VISIT NOTES
Case Notes
Not yet archived · Original link
CIL FORM
Supporting Information
Not yet archived · Original link
CONTAMINATED LAND
Consultee Comment
Not yet archived · Original link
COVERING LETTER
Supporting Information
Not yet archived · Original link
DAS
Supporting Information
Not yet archived · Original link
DESIGN AND ACCESS STATEMENT
Supporting Information
Not yet archived · Original link
ENVIRONMENTAL HEALTH
Consultee Comment
Not yet archived · Original link
ESTATES RESPONSE
Consultee Comment
Not yet archived · Original link
EXISTING ELEVATIONS AND STREET SCENE
Plan
Not yet archived · Original link
FLOOD RISK ASSESSMENT AND DRAINAGE STRATEGY
Amended Details
Not yet archived · Original link
HIGHWAYS
Consultee Comment
Not yet archived · Original link
LOCATION AND SITE BLOCK PLAN
Amended Details
Not yet archived · Original link
Location Plan
Location Plan
Not yet archived · Original link
NOISE IMPACT ASSESSMENT
Supporting Information
Not yet archived · Original link
PARISH COUNCIL
Consultee Comment
Not yet archived · Original link
PLANNING STATEMENT
Supporting Information
Not yet archived · Original link
PROPOSED ELEVATIONS
Plan
Not yet archived · Original link
PROPOSED ELEVATIONS
Plan
Not yet archived · Original link
PROPOSED ELEVATIONS
Amended Details
Not yet archived · Original link
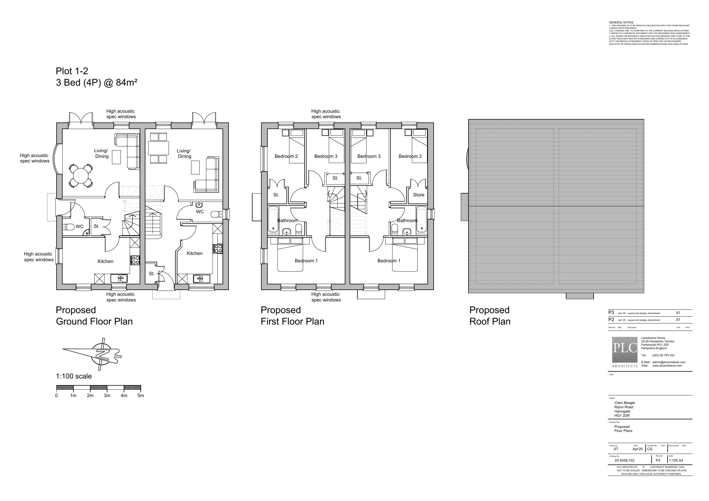
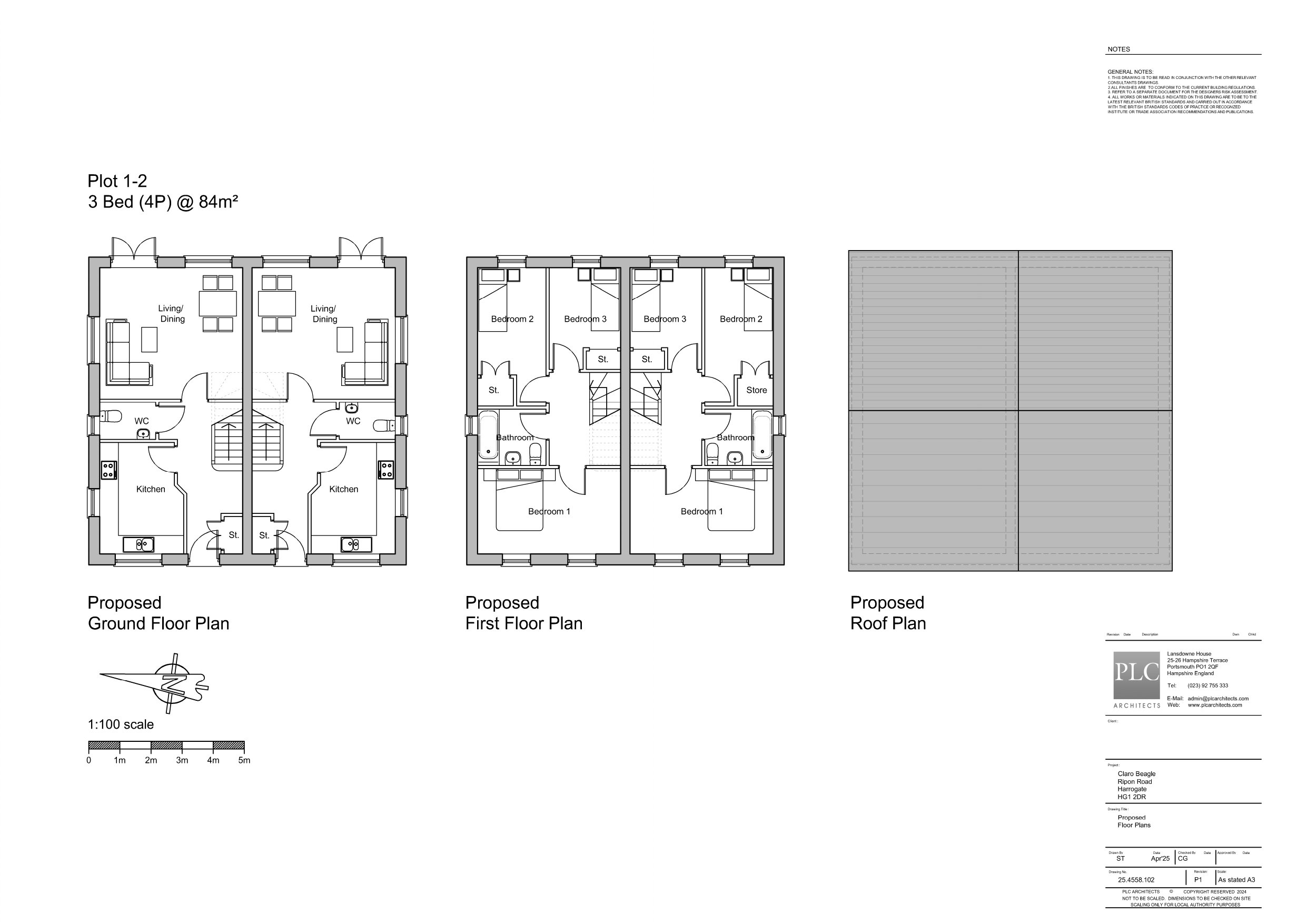
PROPOSED FLOOR PLANS
Plan
Not yet archived · Original link
Amended Details
Archived · Original link
PROPOSED INDICATIVE STREET SCENE
Plan
Not yet archived · Original link
PROPOSED INDICATIVE STREET SCENE
Plan
Not yet archived · Original link
PROPOSED INDICATIVE STREET SCENE AMENDED
Plan
Not yet archived · Original link
PROPOSED INDICATIVE STREET VIEW
Amended Details
Not yet archived · Original link
PROPOSED SITE LAYOUT
Amended Details
Not yet archived · Original link
PROPOSED SITE LAYOUT AMENDED
Plan
Not yet archived · Original link
PROPOSED SITE PLAN
Plan
Not yet archived · Original link
REVISED APPLICATION FORM
Application Form
Not yet archived · Original link
SITE NOTICE
Site Notice
Not yet archived · Original link
SITE NOTICE
Site Notice
Not yet archived · Original link
YORKSHIRE WATER
Consultee Comment
Not yet archived · Original link
YORKSHIRE WATER
Consultee Comment
Not yet archived · Original link

Have your say

Your comment matters. Councils must consider every representation that raises material planning considerations.

Write a comment