← Back to North Yorkshire Council
Application
25/02274/FUL
North Yorkshire Council · IDOX
Status
Registered
New housing
Received
03 Jul 2025
New dwellings
1
What you can do
Take Action
Make your voice heard. Authorities need to hear from people who support new homes.
Summary
Erection of single self-build dwelling with associated parking and landscaping.
Full Proposal
Erection of single self-build dwelling (Use Class C3) with associated parking and landscaping.
Detail pages
- View live detail on council site
- No archived detail page available.
Documents
APPLICATION FORM
Application Form
Not downloaded
· Council link
APPLICATIONFORMREDACTED
Superseded
Not downloaded
· Council link
BIODIVERSITY CHECKLIST
Supporting Information
Not downloaded
· Council link
BISHOP, P
Public Comment
Not downloaded
· Council link
CASE OFFICER SITE VISIT NOTES
Case Notes
Not downloaded
· Council link
CASE OFFICER SITE VISIT NOTES
Case Notes
Not downloaded
· Council link
CIL FORM
Supporting Information
Not downloaded
· Council link
CIL FORM
Supporting Information
Not downloaded
· Council link
COOKE, A
Public Comment
Not downloaded
· Council link
DESIGN AND ACCESS STATEMENT
Supporting Information
Not downloaded
· Council link
DRAFT HEAD OF TERMS
Supporting Information
Not downloaded
· Council link
ECOLOGY
Consultee Comment
Not downloaded
· Council link
ENVIRONMENTAL HEALTH
Consultee Comment
Not downloaded
· Council link
ENVIRONMENTAL HEALTH
Consultee Comment
Not downloaded
· Council link
ESTATES RESPONSE
Consultee Comment
Not downloaded
· Council link
EXISTING SITE PLAN
Plan
Archived copy
· Council link
HARROGATE CIVIC SOCIETY
Consultee Comment
Not downloaded
· Council link
HUTCHISON, R
Public Comment
Not downloaded
· Council link
LOCATION PLAN
Location Plan
Not downloaded
· Council link
MACLAVERTY, K
Public Comment
Not downloaded
· Council link
NYC HIGHWAYS
Consultee Comment
Not downloaded
· Council link
PA AFFECTING CA SITE NOTICE
Site Notice
Not downloaded
· Council link
PARISH COUNCIL
Consultee Comment
Not downloaded
· Council link
PLAN VIEW EXISTING
Supporting Information
Not downloaded
· Council link
PLAN VIEW PROPOSED
Supporting Information
Not downloaded
· Council link
PROPOSED ELEVATIONS
Plan
Not downloaded
· Council link
PROPOSED FLOOR PLAN
Plan
Not downloaded
· Council link
PROPOSED SECTIONS
Plan
Not downloaded
· Council link
SCREENING ASSESSMENT FORM
Supporting Information
Not downloaded
· Council link
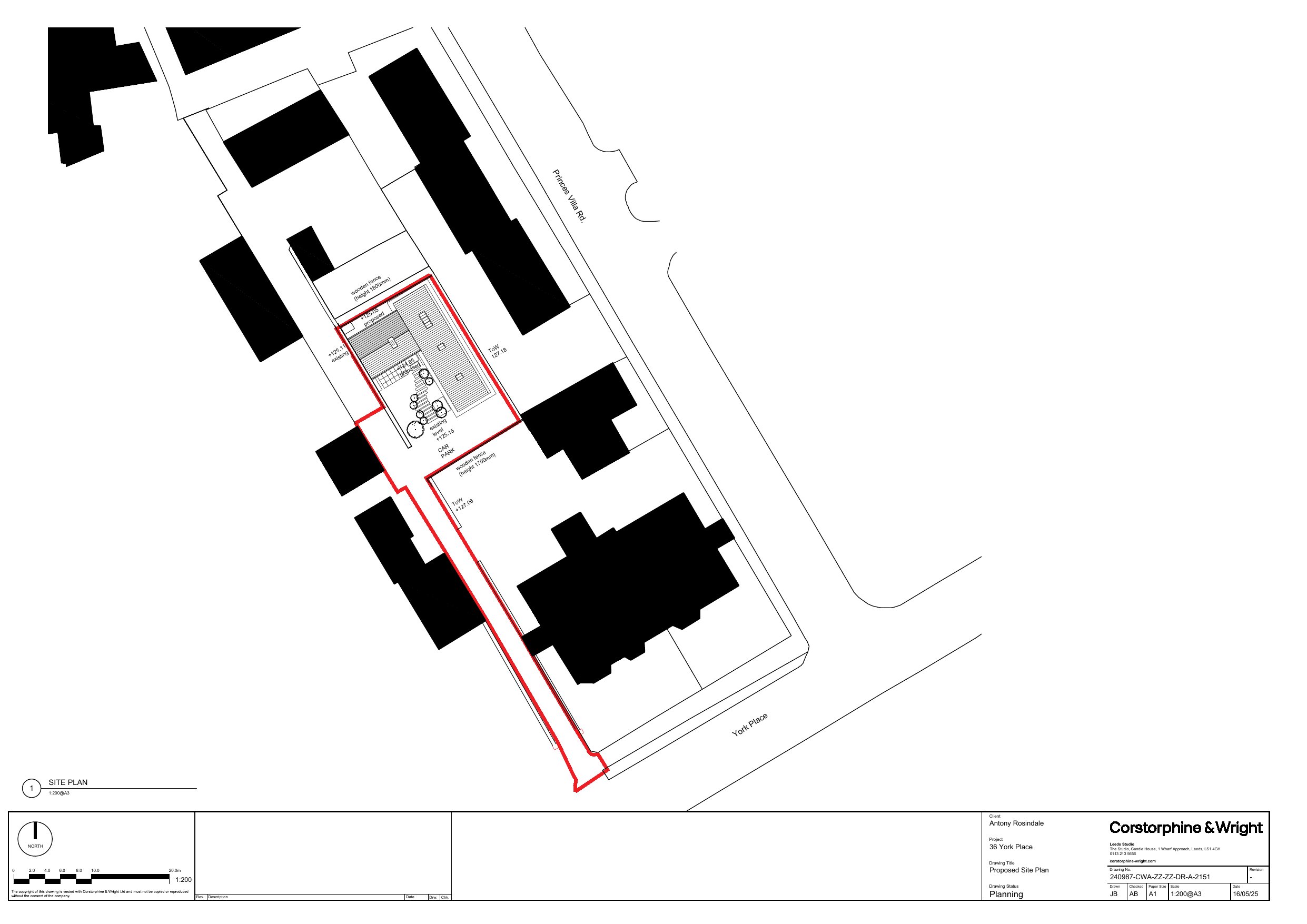
SITE PLAN
Plan
Archived copy
· Council link
SUPPORTING PLANNING STATEMENT
Supporting Information
Not downloaded
· Council link
YORK PLACE VISUAL
Plan
Not downloaded
· Council link