← Back to North Yorkshire Council

Status

Awaiting decision New housing
Received 14 Jul 2025
New dwellings 1

What you can do

Take Action

Make your voice heard. Authorities need to hear from people who support new homes.

Summary

Conversion of barns into one dwelling, including partial demolition.

Full Proposal

Conversion of barns to form 1 No. dwelling, including partial demolition

Detail pages

Documents

AMENDED EXTERNAL MATERIALS
Application Form
Not downloaded · Council link
AMENDED FLOOD RISK ASSESSMENT
Supporting Information
Not downloaded · Council link
AMENDED FLOOD RISK ASSESSMENT
Supporting Information
Not downloaded · Council link
AMENDED FLOOD RISK ASSESSMENT
Superseded
Not downloaded · Council link
APPLICATIONFORMREDACTED
Application Form
Not downloaded · Council link
BAT AND BIRD SURVEY
Supporting Information
Not downloaded · Council link
BAT DUSK SURVEY
Supporting Information
Not downloaded · Council link
Case Notes
Case Notes
Not downloaded · Council link
CASE OFFICER SITE VISIT NOTES
Case Notes
Not downloaded · Council link
CERT B NOTICE FORM
Supporting Information
Not downloaded · Council link
CIL FORM 1
Supporting Information
Not downloaded · Council link
CONSERVATION OFFICER
Consultee Comment
Not downloaded · Council link
CONTAMINATED LAND
Consultee Comment
Not downloaded · Council link
DEMOLITION
Plan
Not downloaded · Council link
DESIGN AND ACCESS STATEMENT
Supporting Information
Not downloaded · Council link
DRAFT HEADS OF TERMS
Supporting Information
Not downloaded · Council link
ECOLOGY
Consultee Comment
Not downloaded · Council link
ELEVATIONS
Plan
Not downloaded · Council link
ENVIRONMENT AGENCY
Consultee Comment
Not downloaded · Council link
ENVIRONMENT AGENCY
Consultee Comment
Not downloaded · Council link
ENVIRONMENT AGENCY
Consultee Comment
Not downloaded · Council link
EXISTING GARAGE
Plan
Not downloaded · Council link
EXISTING PHOTOS OF BUILDINGS
Supporting Information
Not downloaded · Council link
EXISTING SITE PLAN V2
Plan
Archived copy · Council link
EXISTING SITE PLAN V3
Plan
Archived copy · Council link
EXTERNAL PHOTOGRAPH LOCATIONS FOR STRUCTURAL REPORT
Supporting Information
Not downloaded · Council link
FIRST FLOOR PLAN
Plan
Not downloaded · Council link
FLOOD AUTHORITY
Consultee Comment
Not downloaded · Council link
FLOOD RISK ASSESSMENT
Superseded
Not downloaded · Council link
GROUND FLOOR PLAN
Plan
Not downloaded · Council link
HERITAGE ASSESSMENT
Supporting Information
Not downloaded · Council link
INTERNAL PHOTOGRAPH LOCATIONS FOR STRUCTURAL REPORT
Supporting Information
Not downloaded · Council link
LOCATION PLAN
Location Plan
Not downloaded · Council link
MOD SAFEGUARDING
Consultee Comment
Not downloaded · Council link
NYC HIGHWAYS
Consultee Comment
Not downloaded · Council link
OUTLINE BAT METHOD STATEMENT
Supporting Information
Not downloaded · Council link
PA AFFECT LB SITE NOTICE
Site Notice
Not downloaded · Council link
PROPOSED ELEVATIONS AND SITE PLAN
Amended Details
Archived copy · Council link
PROPOSED ELEVATIONS AND SITE PLAN
Superseded
Archived copy · Council link
PROPOSED ELEVATIONS AND SITE PLAN
Superseded
Archived copy · Council link
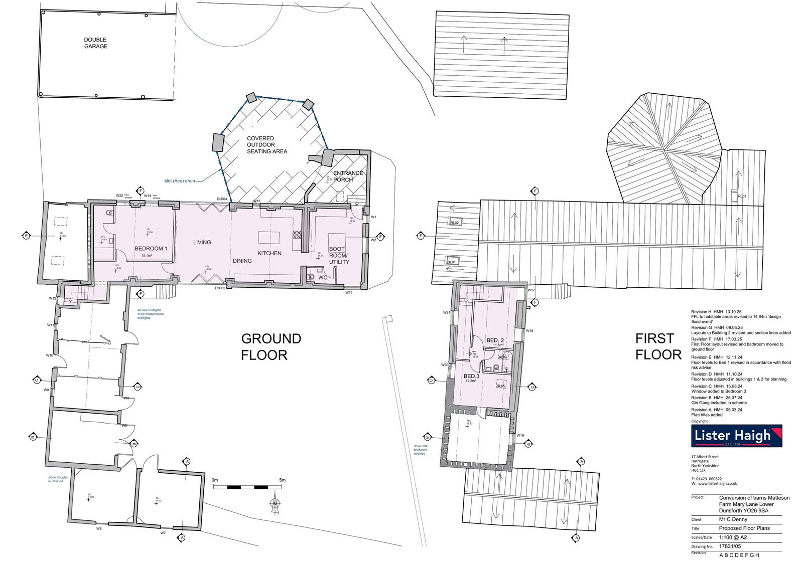
PROPOSED FLOOR PLANS
Amended Details
Archived copy · Council link
PROPOSED FLOOR PLANS
Plan
Archived copy · Council link
PROPOSED GARAGE
Plan
Not downloaded · Council link
PROPOSED SITE PLAN
Plan
Archived copy · Council link
PROPOSED SITE PLAN
Plan
Archived copy · Council link
PROPOSED SITE PLAN V3
Plan
Archived copy · Council link
PROPOSED WALL AND GATE ELEVATIONS
Plan
Not downloaded · Council link
PROTECTED SPECIES FORM
Supporting Information
Not downloaded · Council link
SCREENING ASSESSMENT
Supporting Information
Not downloaded · Council link
SECTIONS THROUGH BUILDING 2
Superseded
Not downloaded · Council link
SECTIONS THROUGH BUILDING 2
Amended Details
Not downloaded · Council link
SECTIONS THROUGH BUILDINGS 1 AND 3
Amended Details
Not downloaded · Council link
SECTIONS THROUGH BUILDINGS 1 TO 3
Superseded
Not downloaded · Council link
SITE LOCATION PLAN
Supporting Information
Archived copy · Council link
SITE PLAN
Plan
Archived copy · Council link
STRUCTURAL REPORT
Supporting Information
Not downloaded · Council link
WINDOW AND DOOR SCHEDULE
Amended Details
Not downloaded · Council link
WINDOW AND DOOR SCHEDULE
Superseded
Not downloaded · Council link
WINDOW DETAILS W20
Plan
Not downloaded · Council link
WINDOW DETAILS W8
Plan
Not downloaded · Council link
YORKSHIRE WATER
Consultee Comment
Not downloaded · Council link