← Back to North Yorkshire Council

Status

Awaiting decision
Received 21 Jul 2025
New dwellings n/a

What you can do

Take Action

Make your voice heard. Authorities need to hear from people who support new homes.

Full Proposal

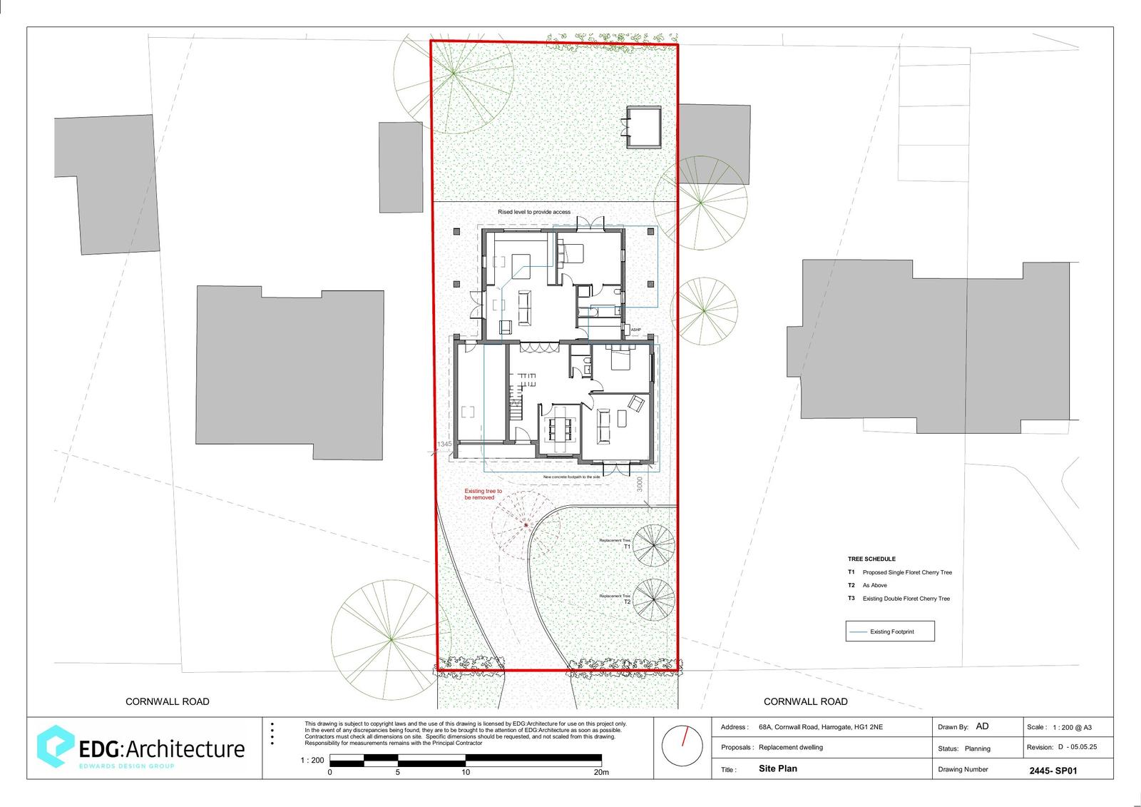
Demolition of existing dwelling and erection of 1no. replacement self-build dwelling. Felling of 1no. Cherry Tree. Associated external works.

Detail pages

Documents

3D IMAGES
Plan
Not downloaded · Council link
APPLICATIONFORMREDACTED
Application Form
Not downloaded · Council link
ARBOR RESPONSE
Consultee Comment
Not downloaded · Council link
BAT SURVEY EXEMPTION REQUEST
Supporting Information
Not downloaded · Council link
BLOODWORTH, M
Public Comment
Not downloaded · Council link
Case Notes
Case Notes
Not downloaded · Council link
COMMUNITY INFRASTRUCTURE LEVY (CIL) - FORM 1
Supporting Information
Not downloaded · Council link
COMMUNITY INFRASTRUCTURE LEVY - EXEMPTION CLAIM
Supporting Information
Not downloaded · Council link
CONTAMINATED LAND
Consultee Comment
Not downloaded · Council link
DESIGN AND ACCESS STATEMENT
Supporting Information
Not downloaded · Council link
DETAILED PROPOSED SITE PLAN
Superseded
Archived copy · Council link
DETAILED PROPOSED SITE PLAN
Amended Details
Archived copy · Council link
ECOLOGY
Consultee Comment
Not downloaded · Council link
ENVIRONMENTAL HEALTH
Consultee Comment
Not downloaded · Council link
ENVIROSEARCH - CONTAMINATED LAND REPORT
Supporting Information
Not downloaded · Council link
EXISTING 3D VIEWS
Plan
Not downloaded · Council link
EXISTING ELEVATIONS - SHEET 01
Plan
Not downloaded · Council link
EXISTING ELEVATIONS - SHEET 01
Plan
Not downloaded · Council link
EXISTING ELEVATIONS - SHEET 02
Plan
Not downloaded · Council link
EXISTING ELEVATIONS - SHEET 02
Plan
Not downloaded · Council link
EXISTING FIRST FLOOR PLAN
Plan
Not downloaded · Council link
EXISTING GROUND FLOOR PLAN
Plan
Not downloaded · Council link
EXISTING ROOF PLAN
Plan
Not downloaded · Council link
EXISTING SITE PLAN
Plan
Archived copy · Council link
EXISTING SITE PLAN
Plan
Archived copy · Council link
EXISTING SITE PLAN
Superseded
Archived copy · Council link
GODBER, K
Public Comment
Not downloaded · Council link
GREEN, C
Public Comment
Not downloaded · Council link
GREEN, J
Public Comment
Not downloaded · Council link
HARROGATE CIVIC SOCIETY
Consultee Comment
Not downloaded · Council link
HEWITT, S
Public Comment
Not downloaded · Council link
HIGHWAYS
Consultee Comment
Not downloaded · Council link
LOCATION PLAN
Location Plan
Not downloaded · Council link
LOCATION PLAN
Location Plan
Not downloaded · Council link
PARISH COUNCIL
Consultee Comment
Not downloaded · Council link
POPEK SMITH, G
Public Comment
Not downloaded · Council link
PRIVATE HOUSING STANDARDS
Consultee Comment
Not downloaded · Council link
PROPOSED 3D VIEWS
Superseded
Not downloaded · Council link
PROPOSED ELEVATIONS - SHEET 1
Superseded
Not downloaded · Council link
PROPOSED ELEVATIONS - SHEET 1
Amended Details
Not downloaded · Council link
PROPOSED ELEVATIONS - SHEET 1
Superseded
Not downloaded · Council link
PROPOSED ELEVATIONS - SHEET 2
Amended Details
Not downloaded · Council link
PROPOSED ELEVATIONS - SHEET 2
Superseded
Not downloaded · Council link
PROPOSED ELEVATIONS - SHEET 2
Superseded
Not downloaded · Council link
PROPOSED FIRST FLOOR PLAN
Superseded
Not downloaded · Council link
PROPOSED FIRST FLOOR PLAN
Superseded
Not downloaded · Council link
PROPOSED FIRST FLOOR PLAN
Plan
Not downloaded · Council link
PROPOSED FRONT AND SIDE ELEVATION
Superseded
Not downloaded · Council link
PROPOSED GROUND FLOOR PLAN
Amended Details
Not downloaded · Council link
PROPOSED GROUND FLOOR PLAN
Superseded
Not downloaded · Council link
PROPOSED GROUND FLOOR PLAN
Superseded
Not downloaded · Council link
PROPOSED REAR AND SIDE ELEVATION
Superseded
Not downloaded · Council link
PROPOSED ROOF PLAN
Superseded
Not downloaded · Council link
PROPOSED ROOF PLAN
Plan
Not downloaded · Council link
PROPOSED SITE PLAN
Superseded
Archived copy · Council link
PROPOSED SITE PLAN
Superseded
Archived copy · Council link
PROPOSED SITE PLAN
Amended Details
Archived copy · Council link
PROPOSED SITE PLAN
Superseded
Archived copy · Council link
PROPOSED SITE PLAN
Amended Details
Archived copy · Council link
PROTECTED SPECIES FORM
Supporting Information
Not downloaded · Council link
ROCK, C
Public Comment
Not downloaded · Council link
ROCK, P
Public Comment
Not downloaded · Council link
SCREENING ASSESSMENT FORM
Supporting Information
Not downloaded · Council link
SCREENING ASSESSMENT PHOTOGRAPHS
Supporting Information
Not downloaded · Council link
Site Notice
Site Notice
Not downloaded · Council link
SWAINE, M & V
Public Comment
Not downloaded · Council link