← North Yorkshire Council

Status

Registered Commercial
Received
07 Nov 2025
New homes
0

Full proposal

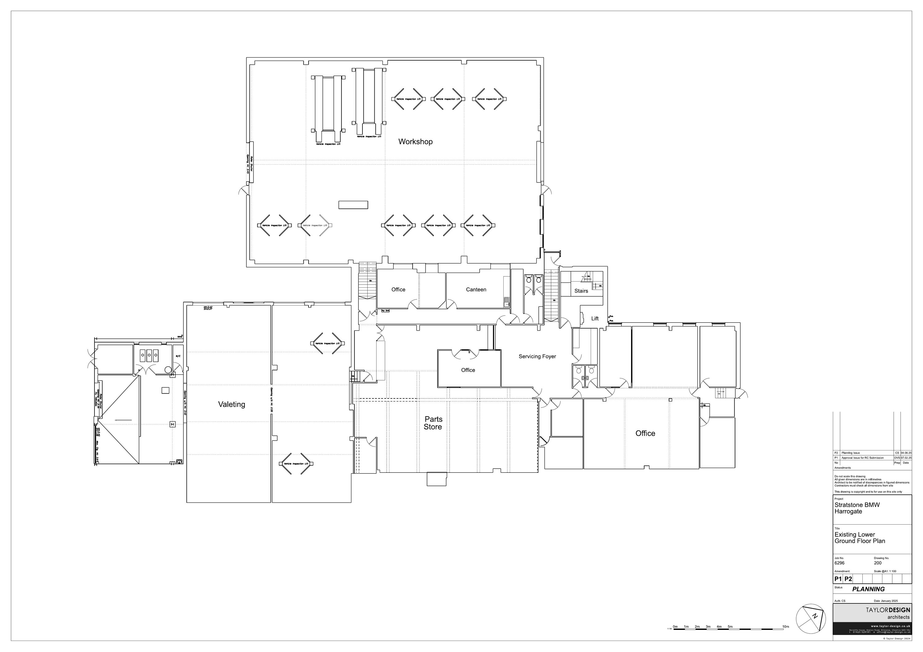
Proposed redevelopment works to include new valeting building, new smart repair building, new tools store building, new substation, extension to overnight deliveries building, canopy over walkway and external alterations to existing buildings

Have your say

Your comment matters. Councils must consider every representation that raises material planning considerations.

Write a comment