← North Yorkshire Council

Status

Registered House extension
Received
04 Dec 2025
New homes
0

Full proposal

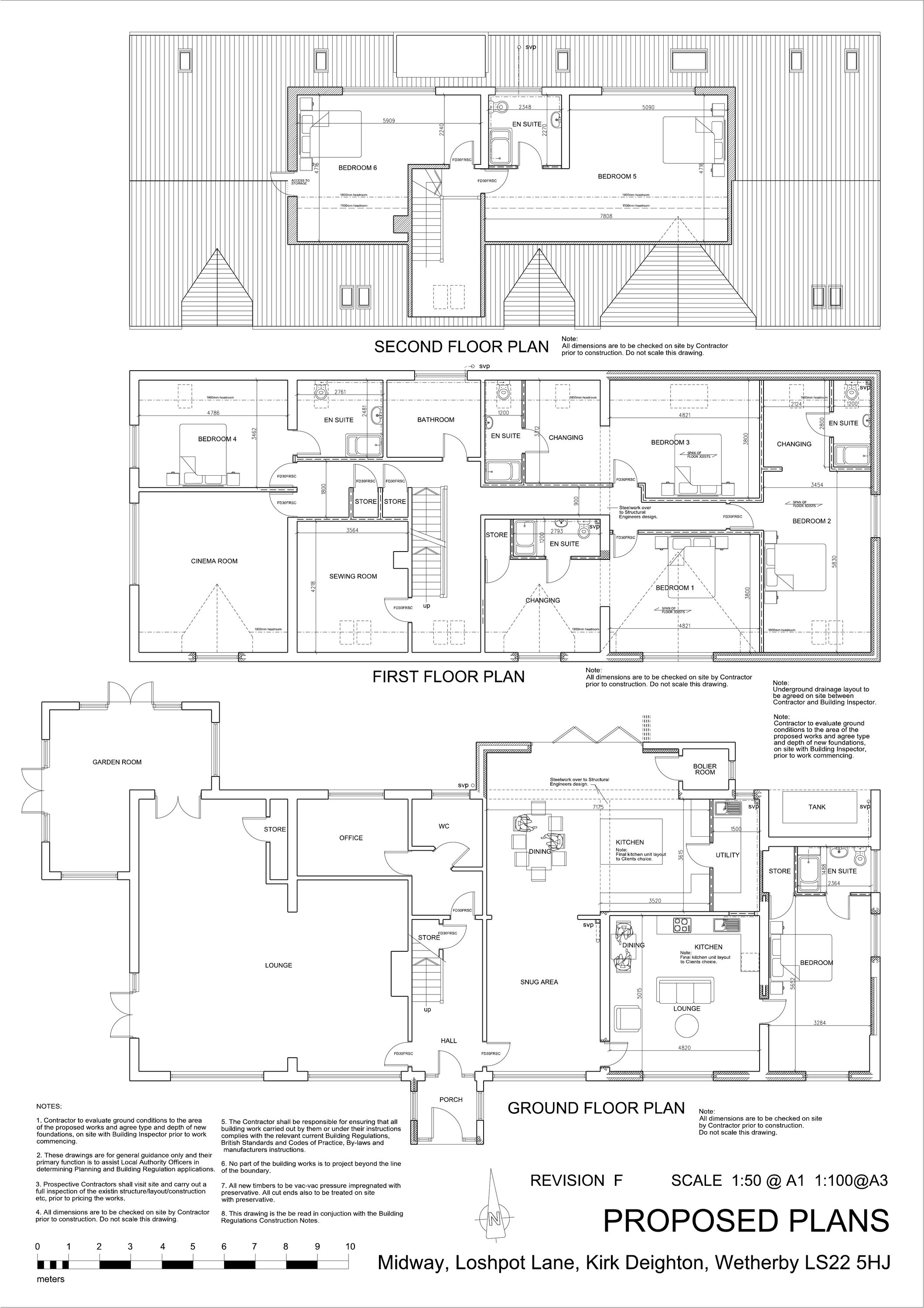
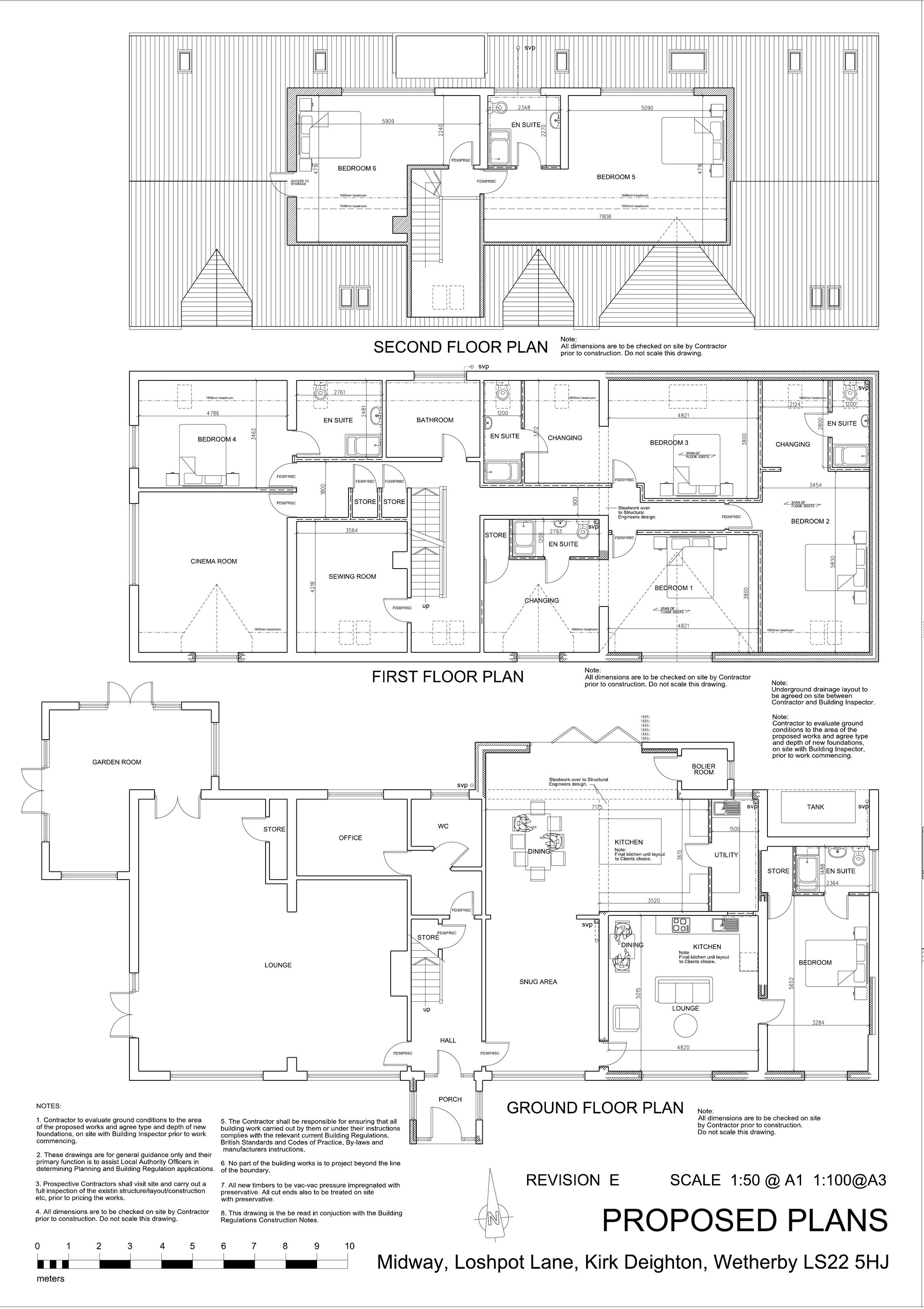
Two storey side extension, single storey rear extension, alteratiosn to existing front porch, loft conversion with roof lights and dormers to front and rear and erection of detached garage/carport with room in roof.

Have your say

Your comment matters. Councils must consider every representation that raises material planning considerations.

Write a comment