← North Yorkshire Council

Status

Registered House extension
Received
18 Dec 2025
New homes
0

Full proposal

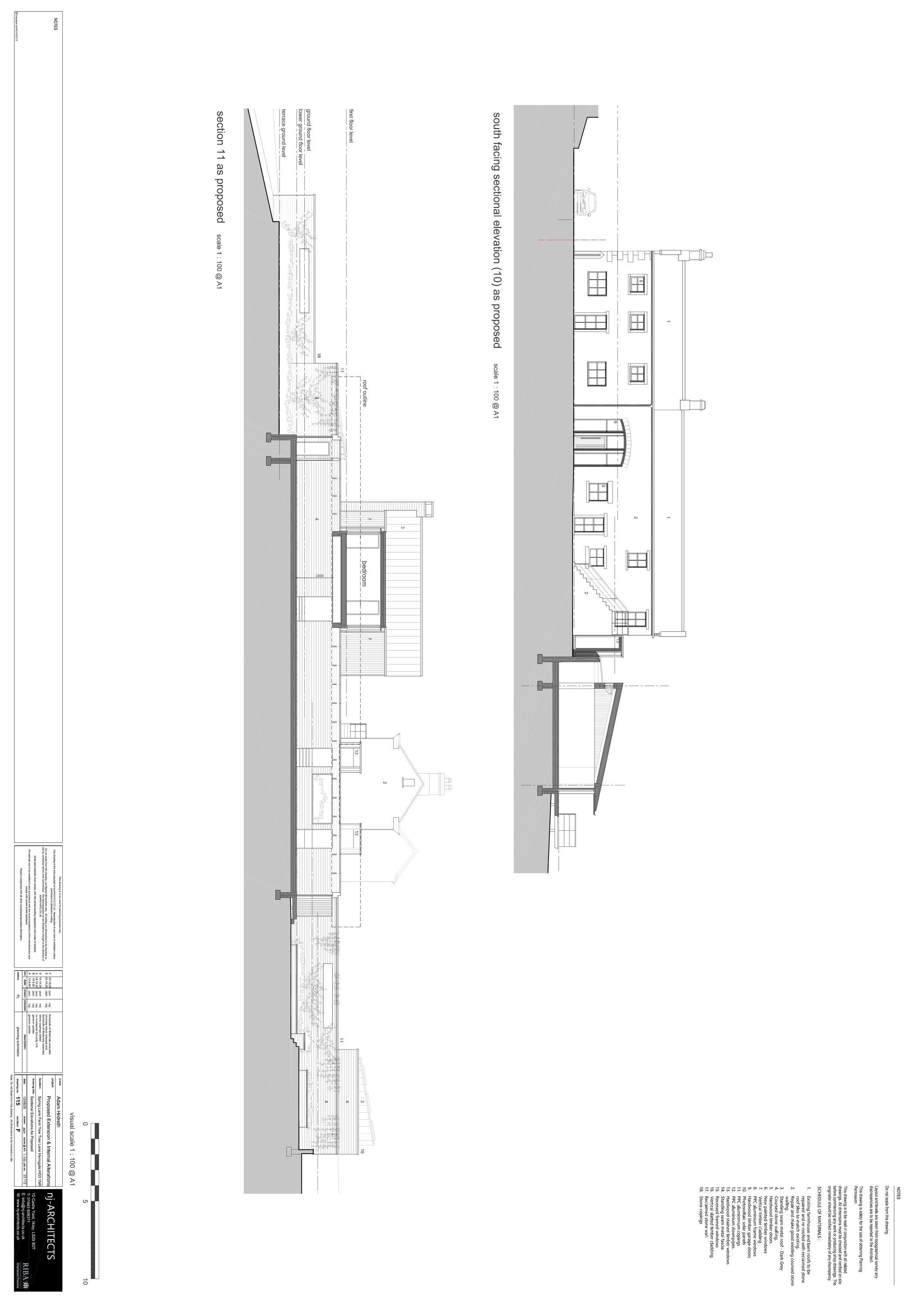
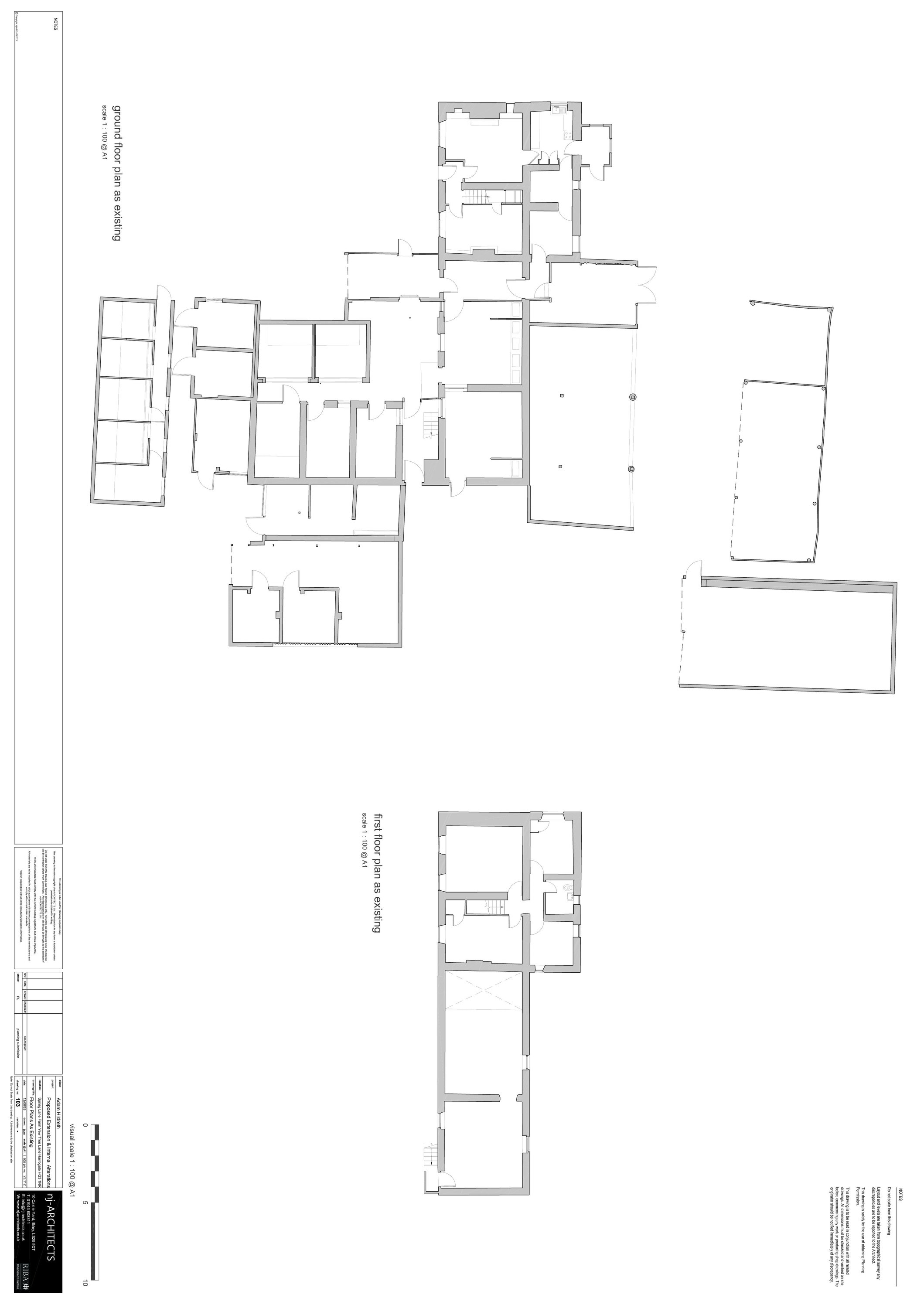
Demolition of existing agricultural buildings and equestrian buildings, conversion of existing barn which is attached to the existing farmhouse to form an extension to the farmhouse. Construction of ancillary living accomodation.

Documents

Application Form
Archived · Original link
Application Form
Archived · Original link
Supporting Information
Archived · Original link
Supporting Information
Archived · Original link
Supporting Information
Archived · Original link
Supporting Information
Archived · Original link
Supporting Information
Archived · Original link
Supporting Information
Archived · Original link
Supporting Information
Archived · Original link
Location Plan
Archived · Original link
Superseded
Archived · Original link
Supporting Information
Archived · Original link
Supporting Information
Archived · Original link

Have your say

Your comment matters. Councils must consider every representation that raises material planning considerations.

Write a comment