← North Yorkshire Council

Status

Registered House extension
Received
08 Jan 2026
New homes
0

Full proposal

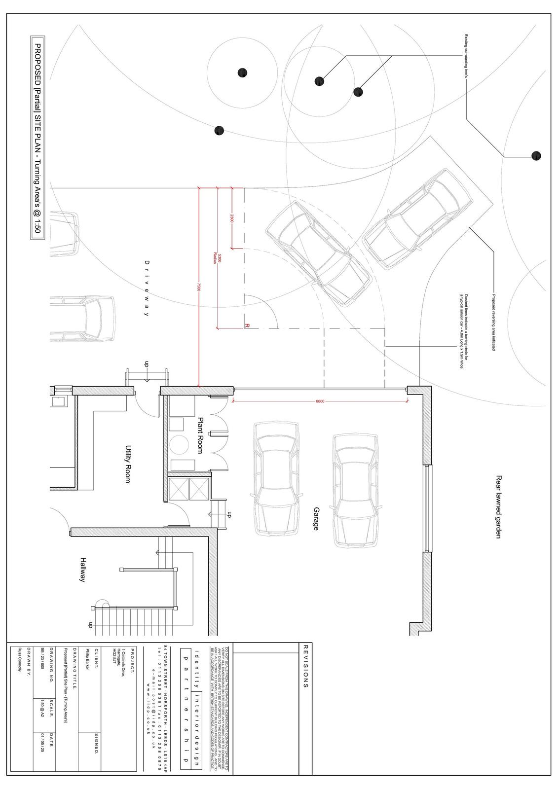
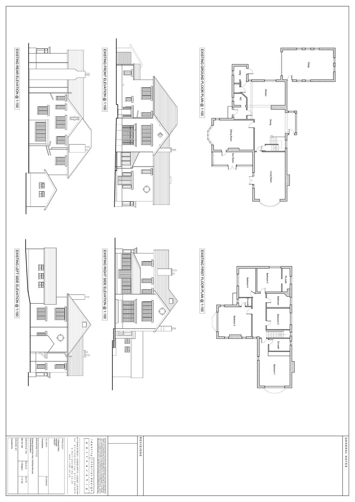
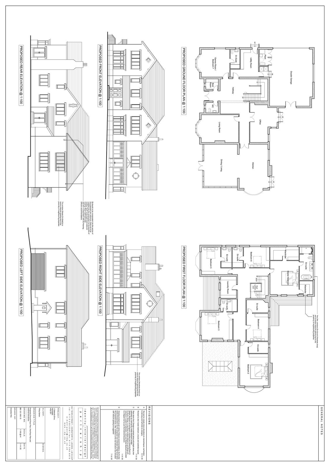
Demolition of existing garage and the erection of a two-storey side extension, a single storey rear extension and single storey front extension together with alterations to the existing fenestration of the property and reconfiguration of driveway to access new garage.

Have your say

Your comment matters. Councils must consider every representation that raises material planning considerations.

Write a comment