← North Yorkshire Council

Status

Registered Change of use
Received
13 Jan 2026
New homes
0

Full proposal

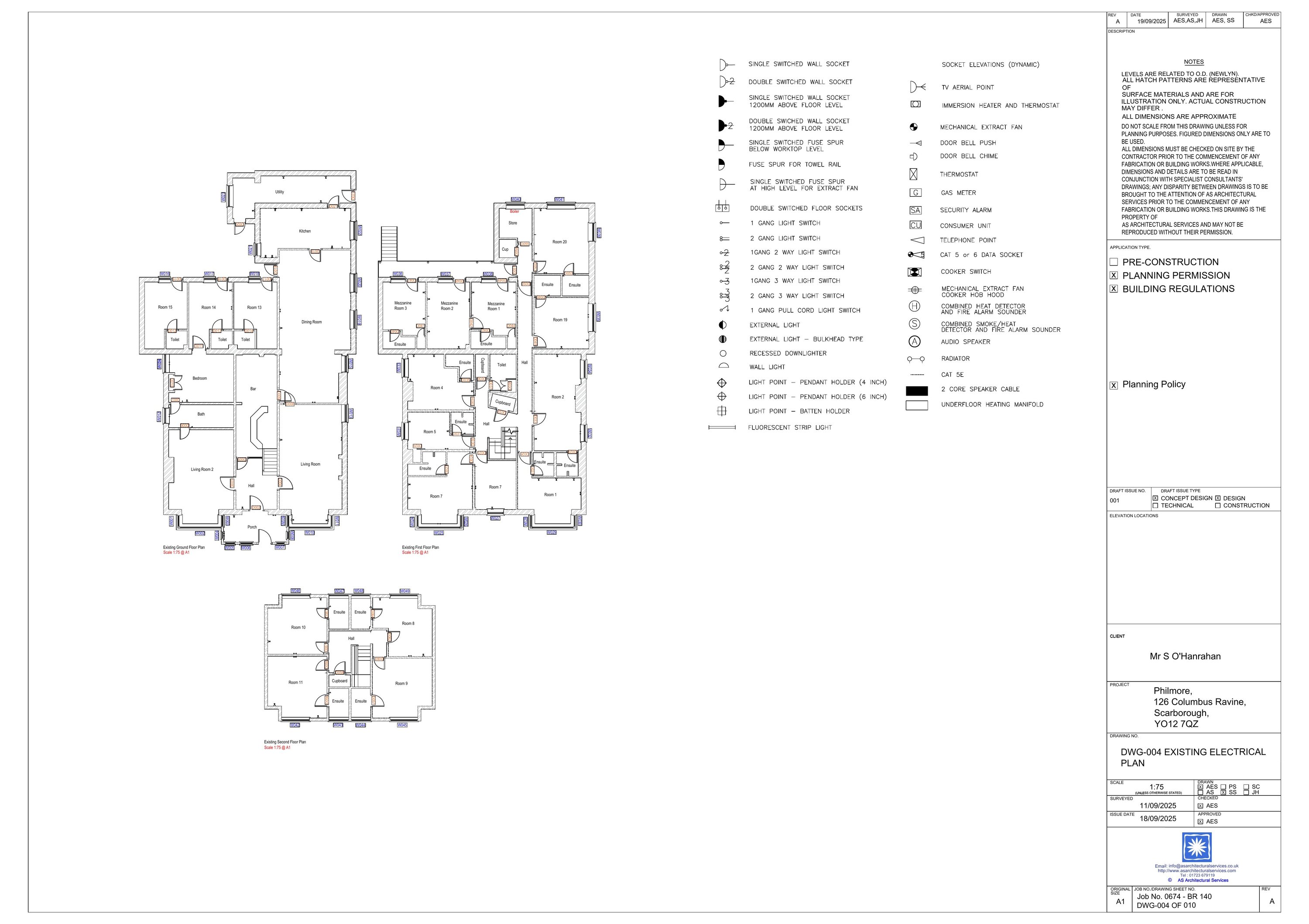
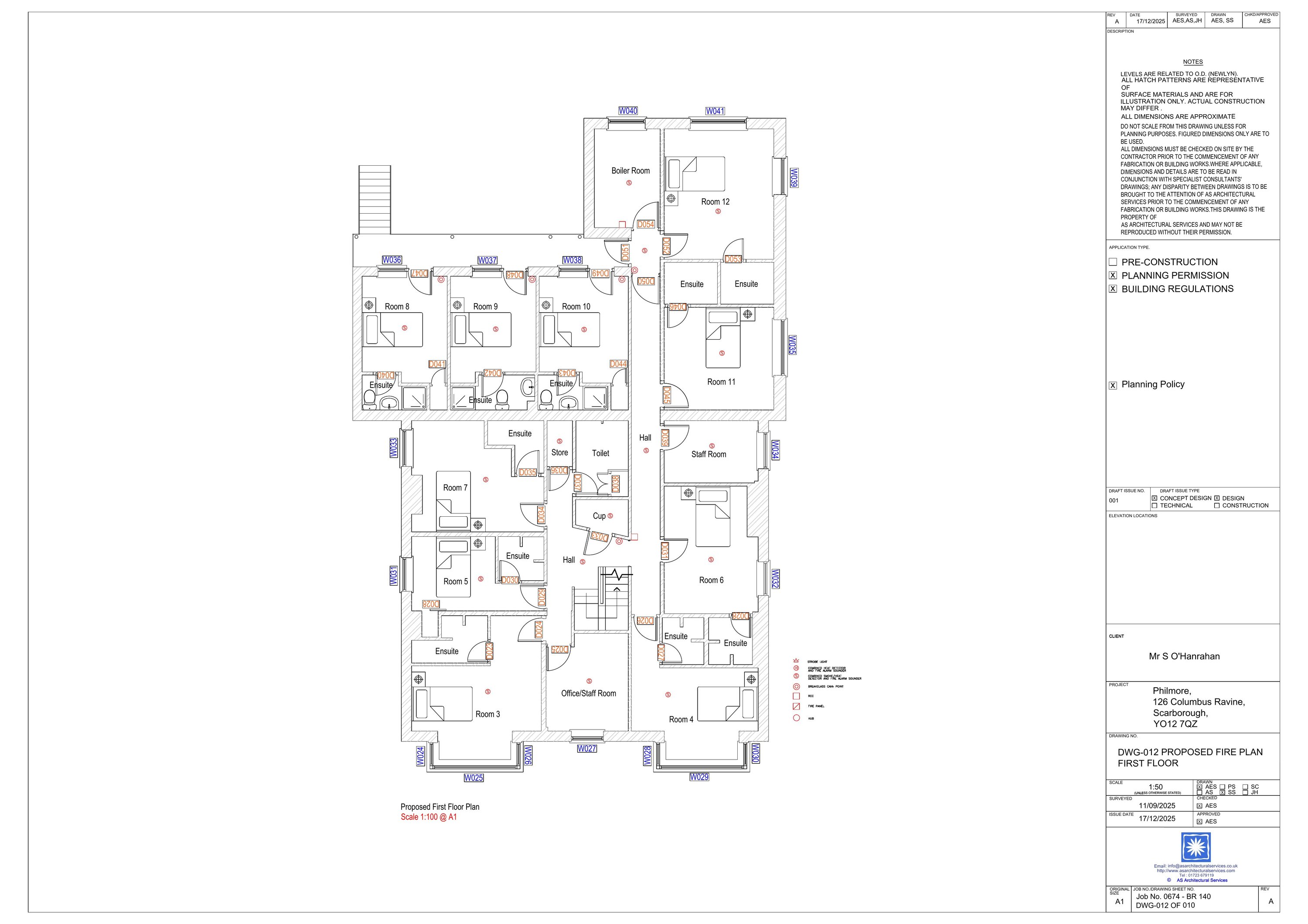
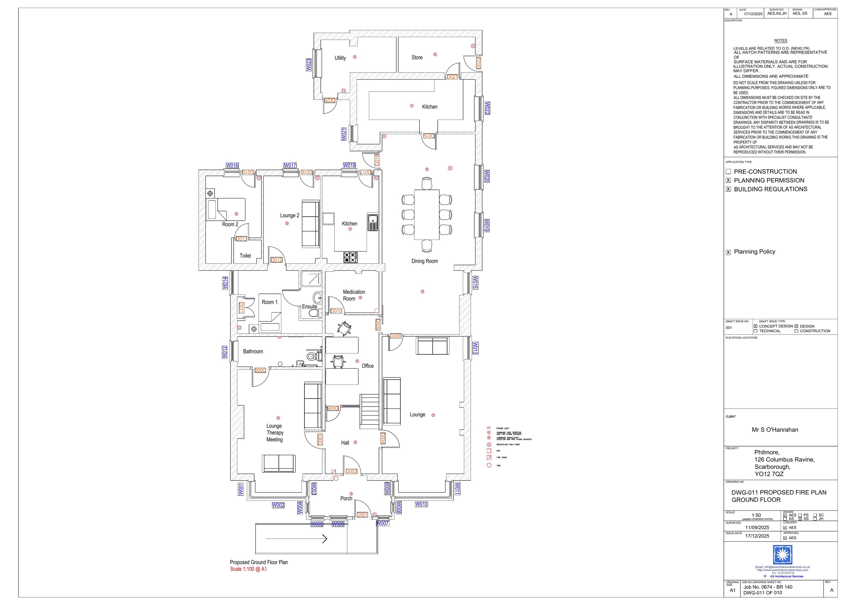
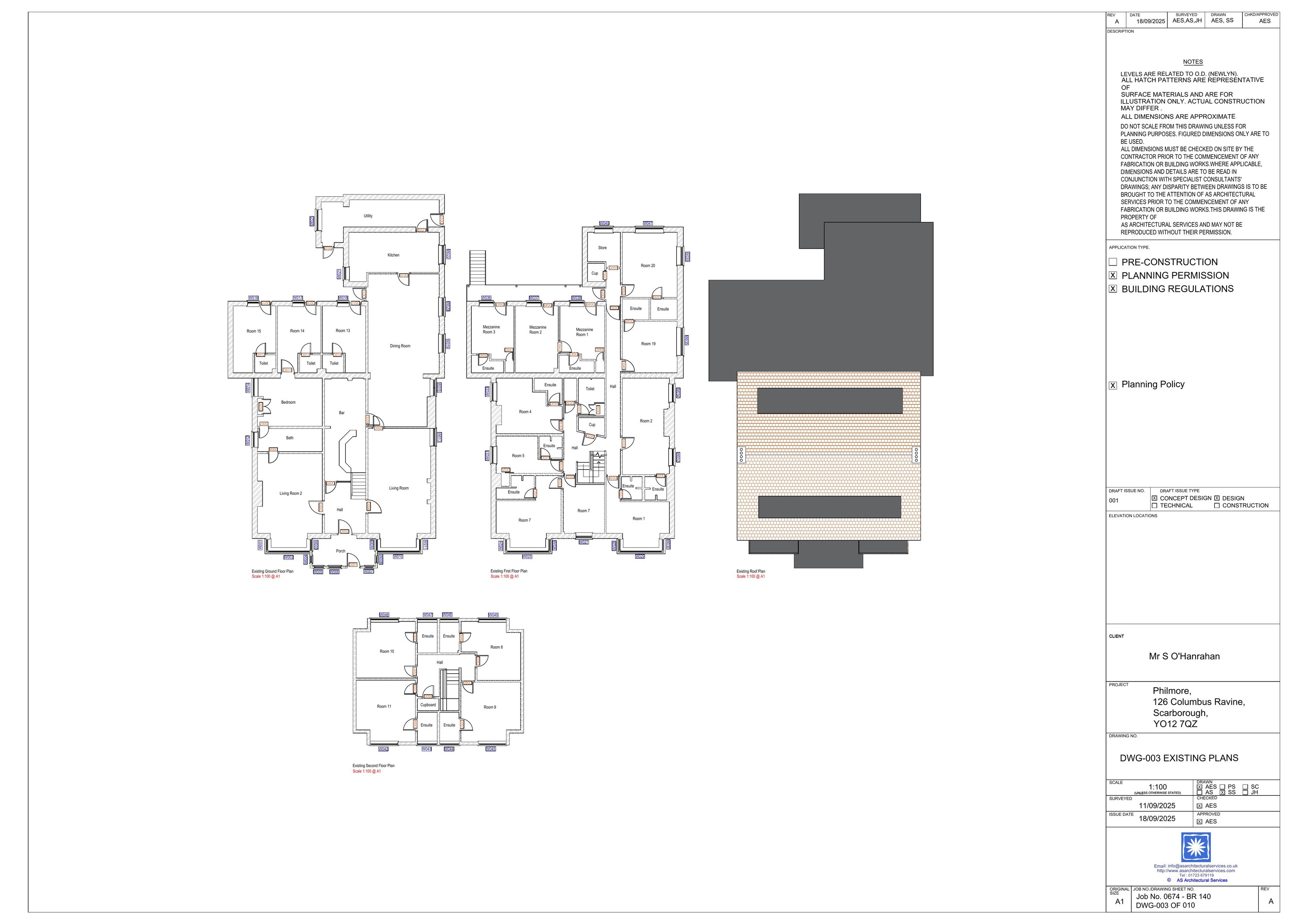
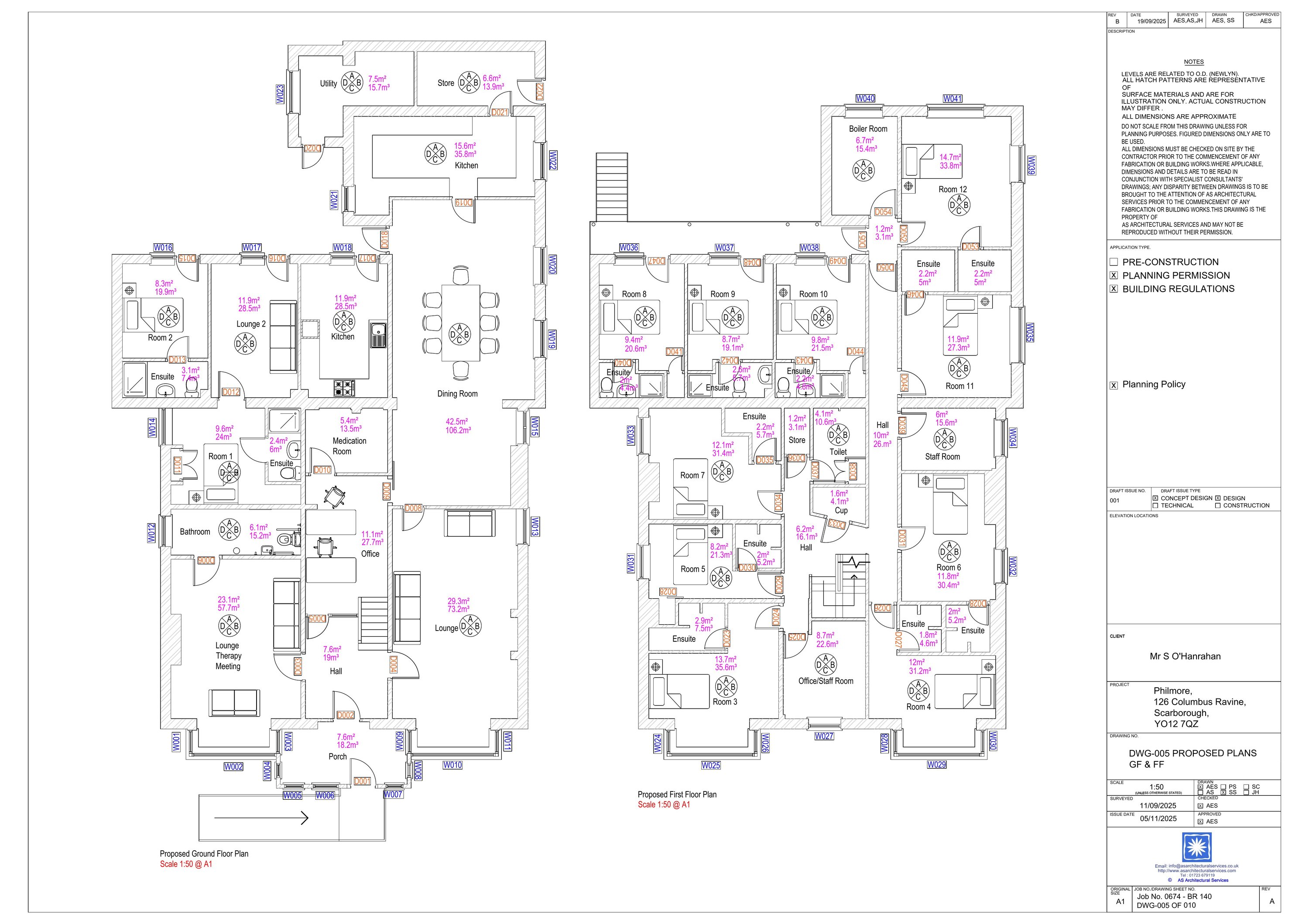
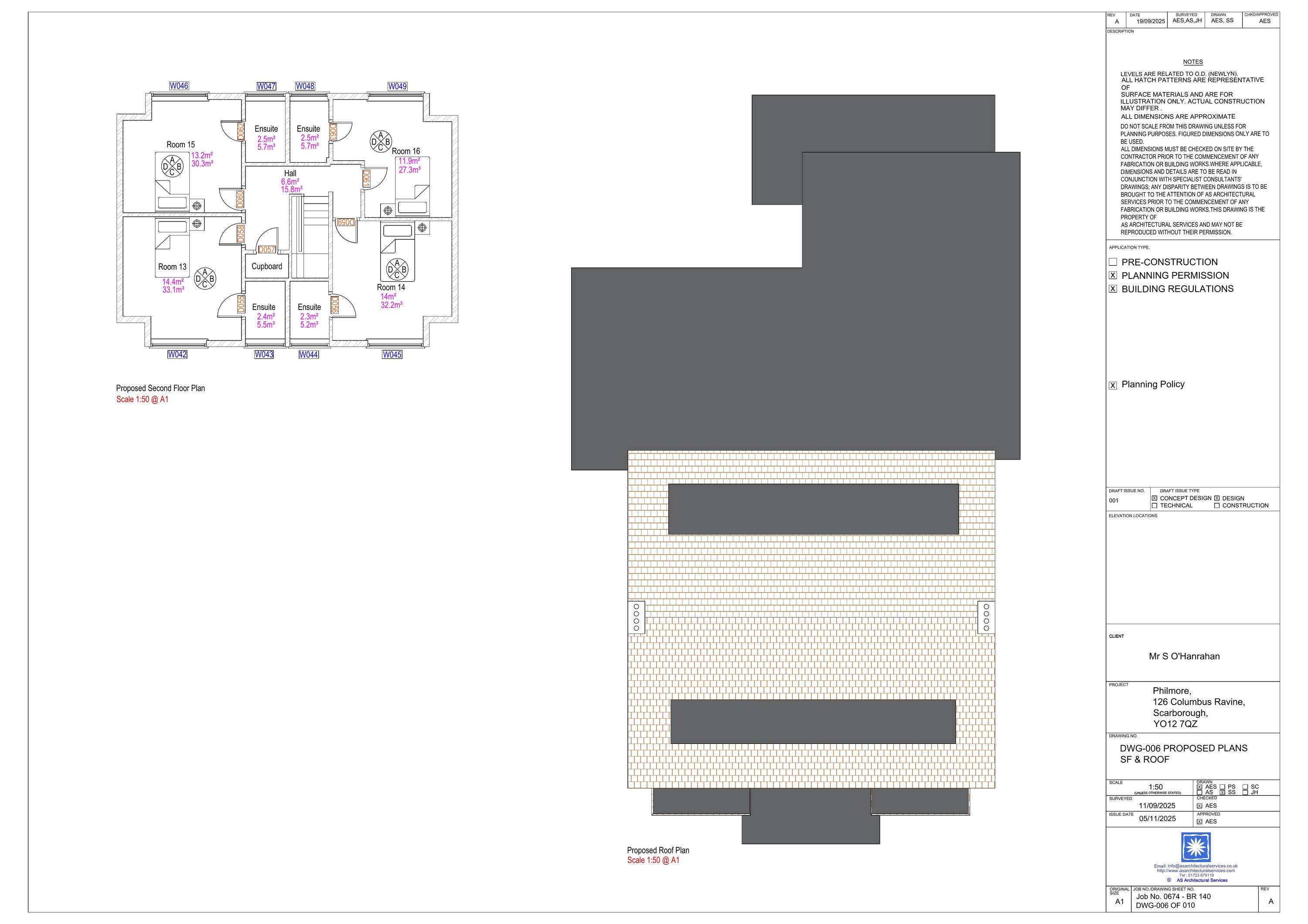
Change of use from Hotel (Use Class C1) to a Specialist Rehabilitation Residential Care facility (Use Class C2)

Have your say

Your comment matters. Councils must consider every representation that raises material planning considerations.

Write a comment