← North Yorkshire Council

Status

Registered House extension
Received
15 Jan 2026
New homes
0

Full proposal

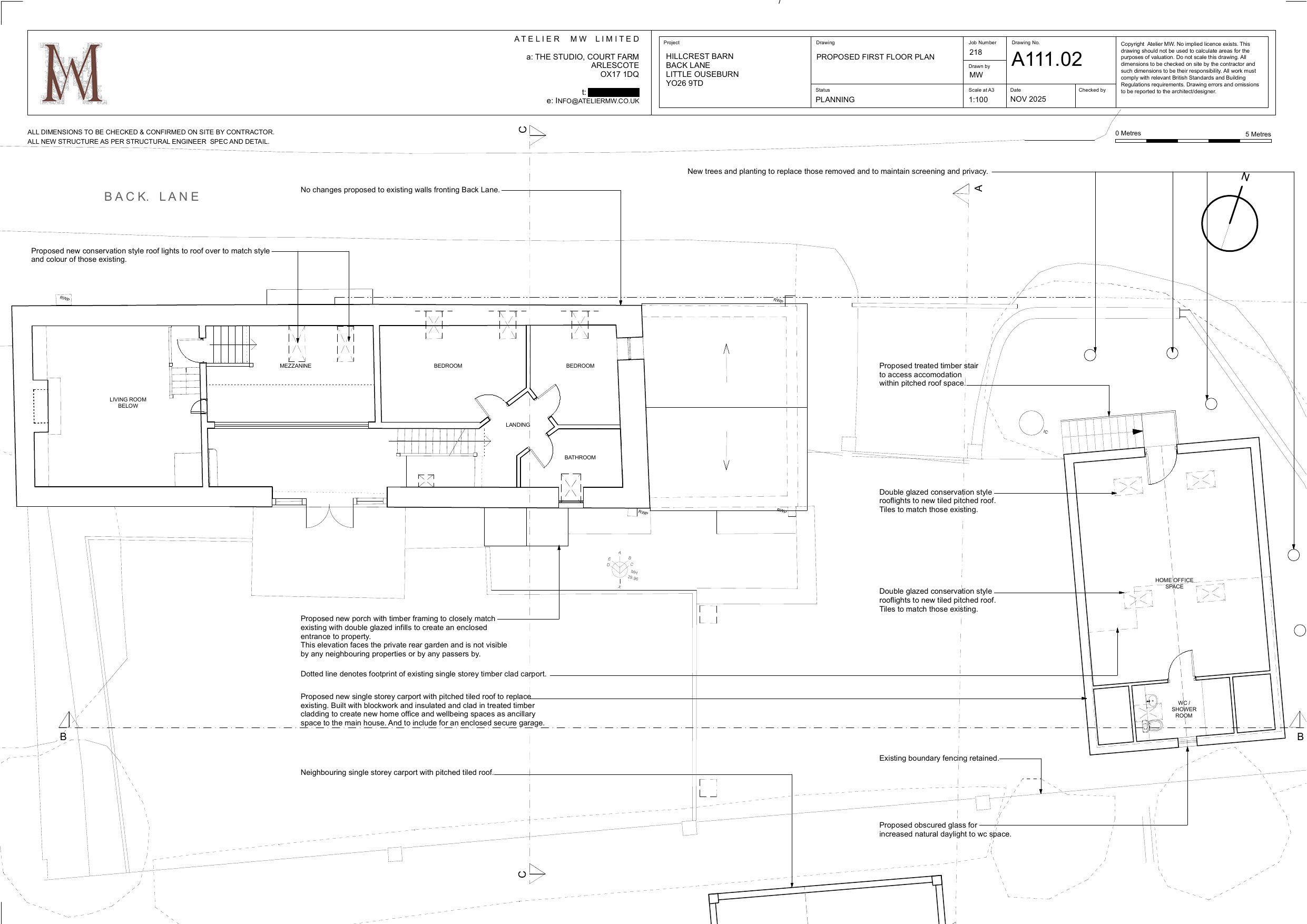
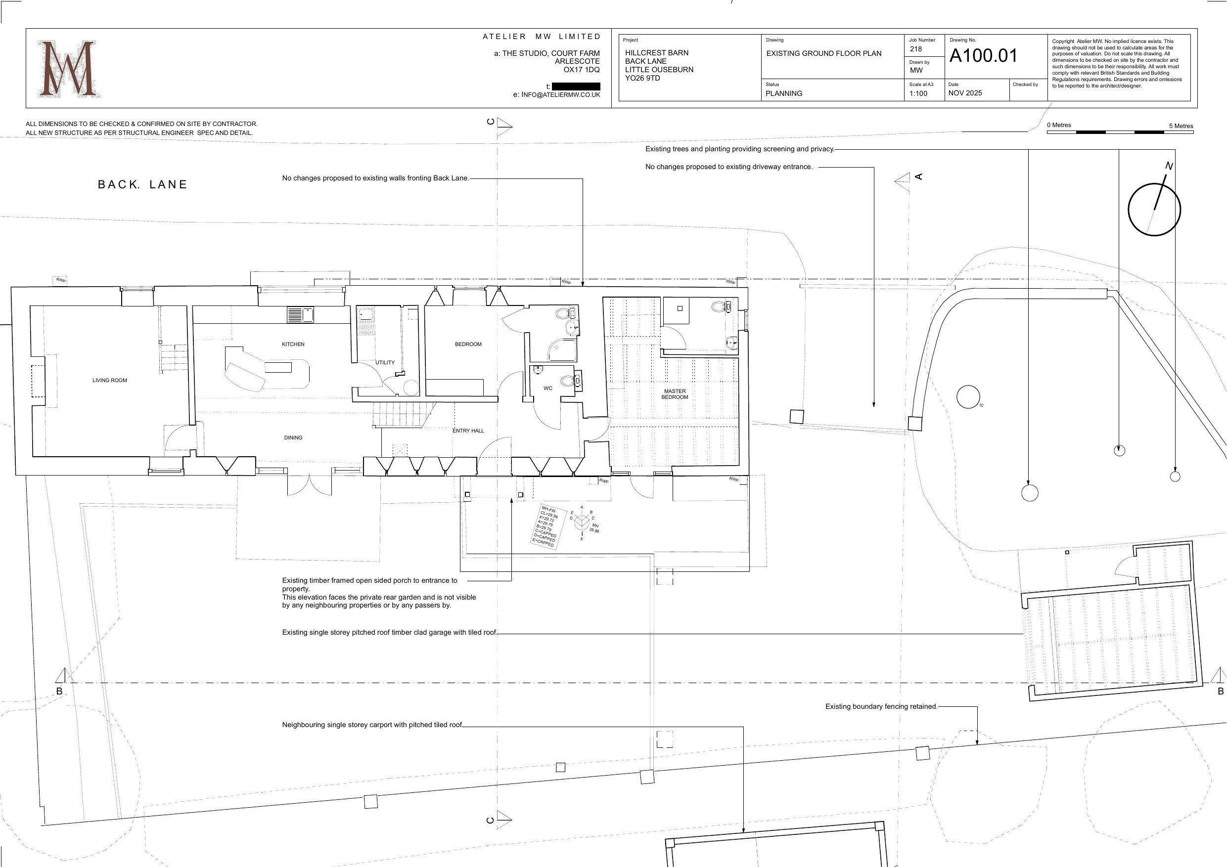
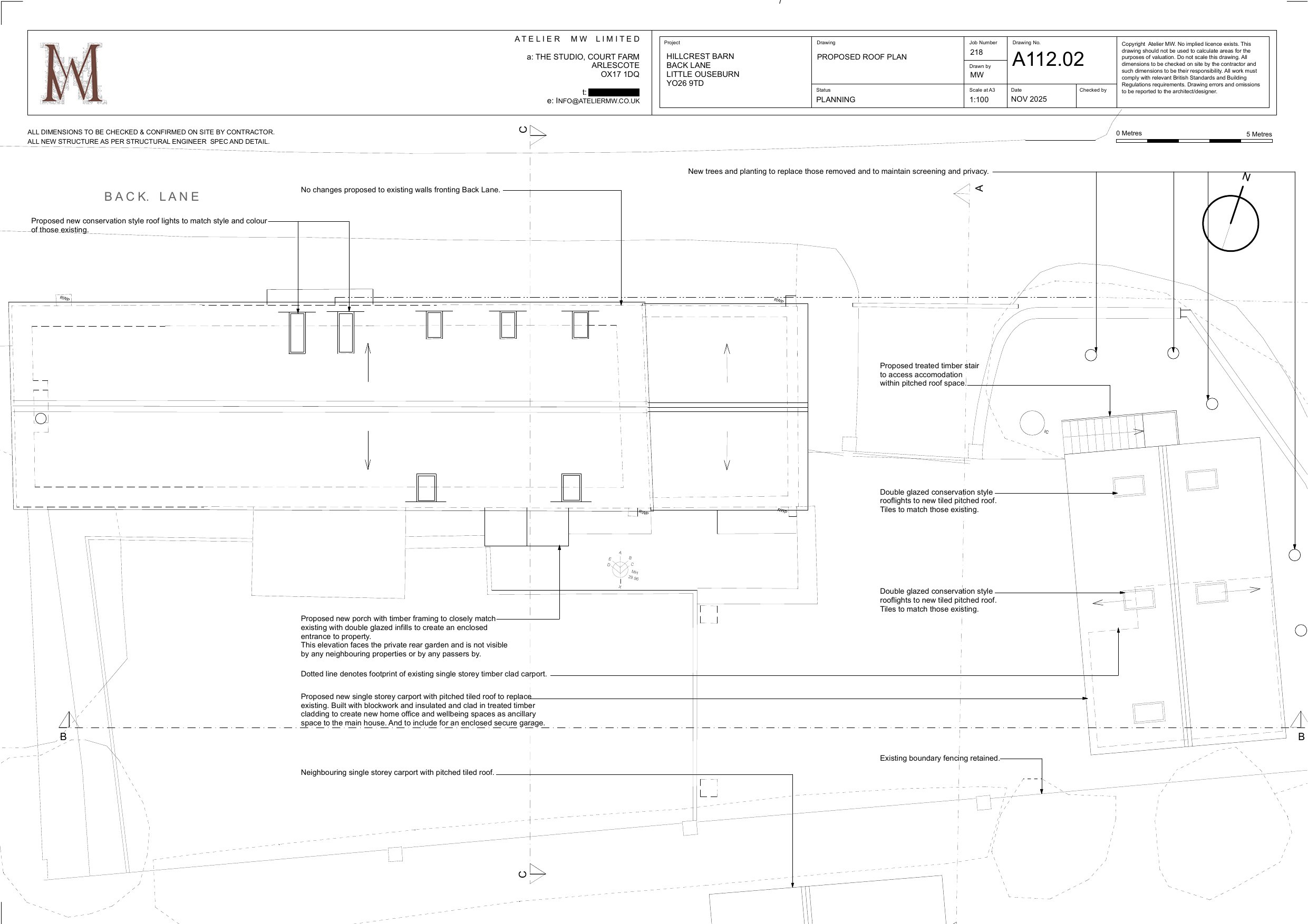
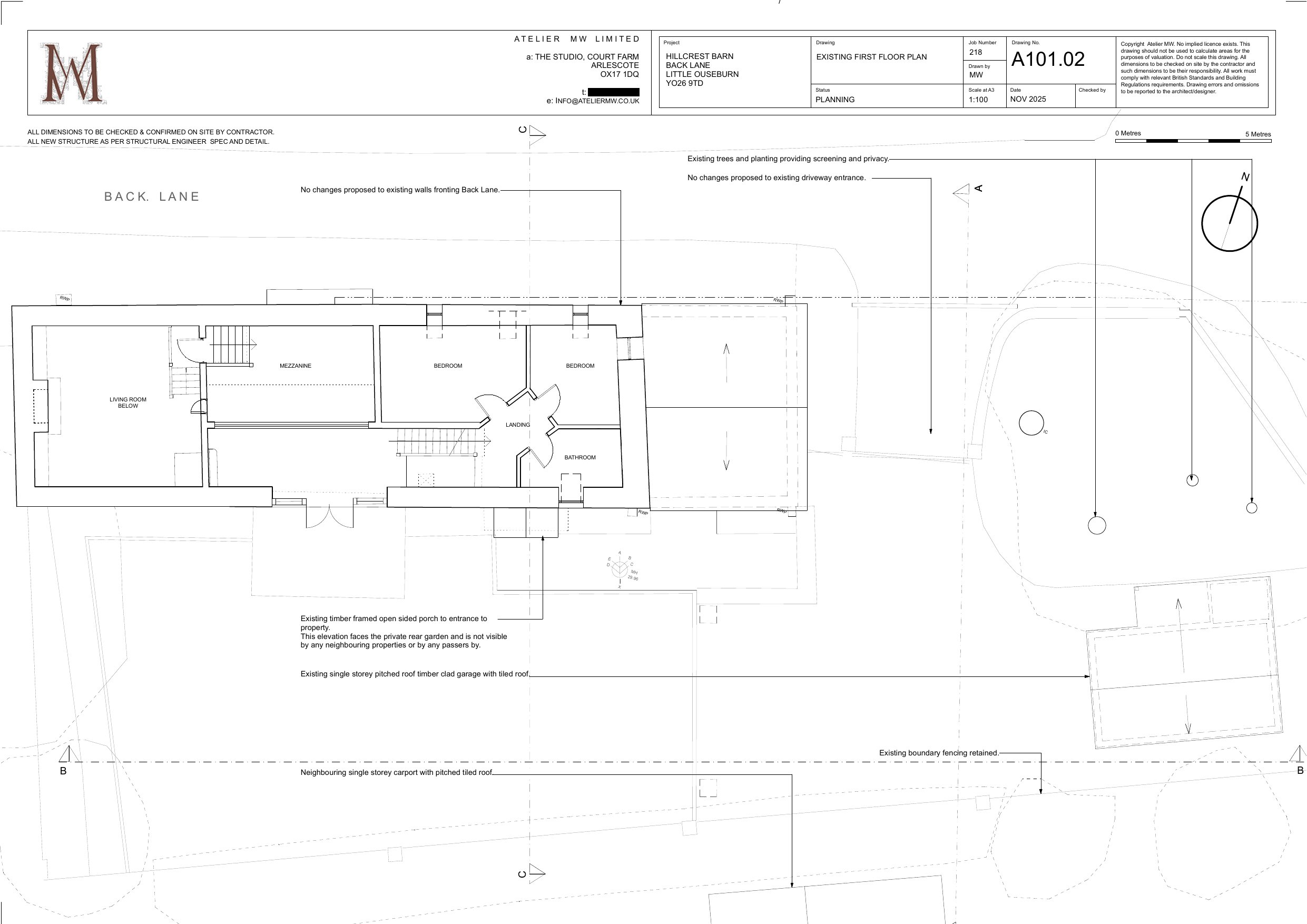
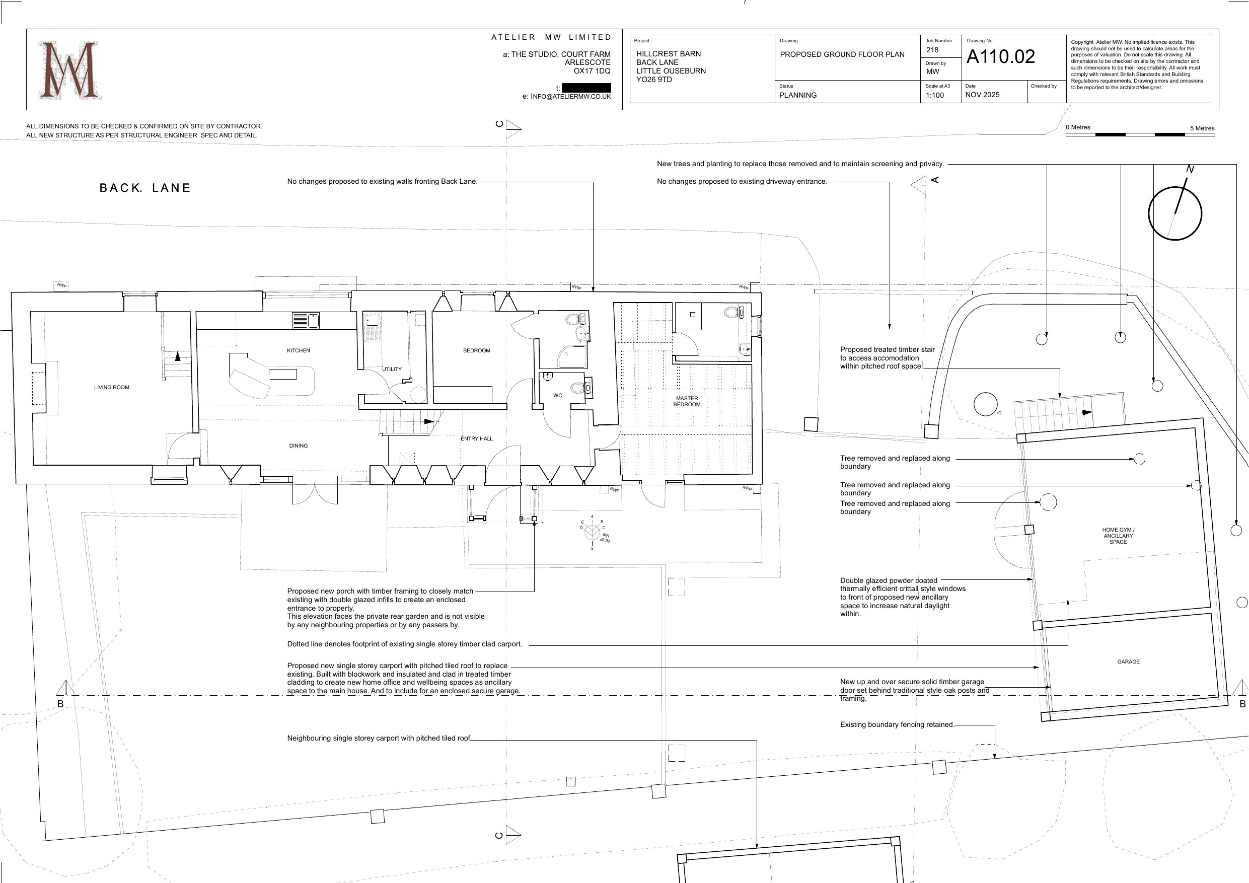
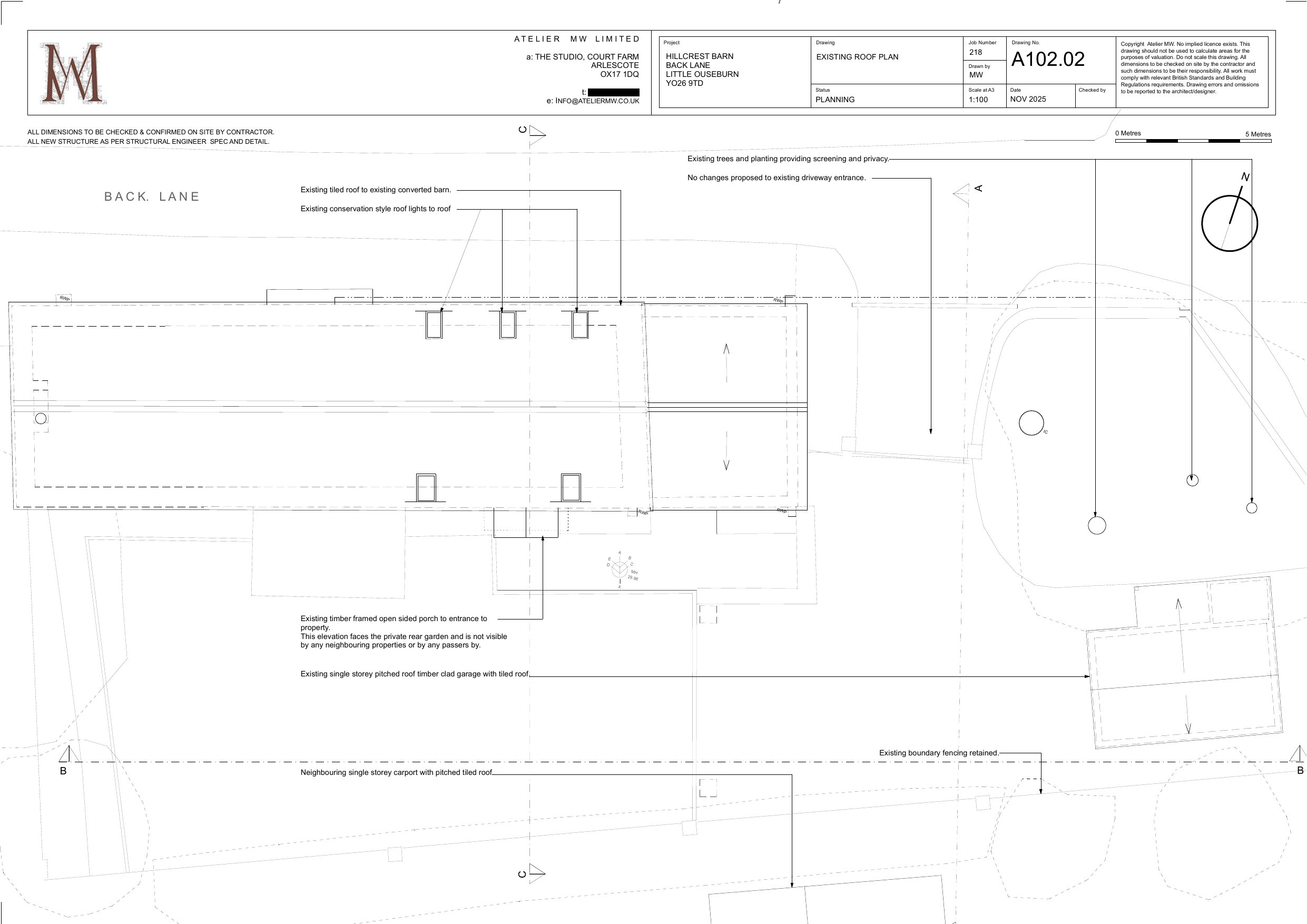
Erection of a replacement carport style garage structure, to form ground floor garage and ancillary accommodation with first floor office space within the roof pitch. Erection of a replacement enclosed porch to the main dwelling. Installation of two conservation style rooflights to the main dwelling.

Have your say

Your comment matters. Councils must consider every representation that raises material planning considerations.

Write a comment