← North Yorkshire Council

Status

Registered New housing
Received
19 Jan 2026
New homes
1

Full proposal

Demolition of existing dwelling and erection of 1 no. dwelling (self-build) with associated landscaping.

Documents

APPLICATIONFORMREDACTED
Application Form
Not yet archived · Original link
ARBOR RESPONSE
Consultee Comment
Not yet archived · Original link
BIODIVERSITY CHECK LIST
Supporting Information
Not yet archived · Original link
BNG EXEMPTION STATEMENT
Supporting Information
Not yet archived · Original link
CASE OFFICER SITE VISIT NOTES
Case Notes
Not yet archived · Original link
CIL FORM 1
Supporting Information
Not yet archived · Original link
CIL FORM 7
Supporting Information
Not yet archived · Original link
CONTAMINATED LAND
Consultee Comment
Not yet archived · Original link
COVERING LETTER
Supporting Information
Not yet archived · Original link
ECOLOGY
Consultee Comment
Not yet archived · Original link
ENVIRONMENTAL HEALTH
Consultee Comment
Not yet archived · Original link
EXISTING ELEVATIONS
Plan
Not yet archived · Original link
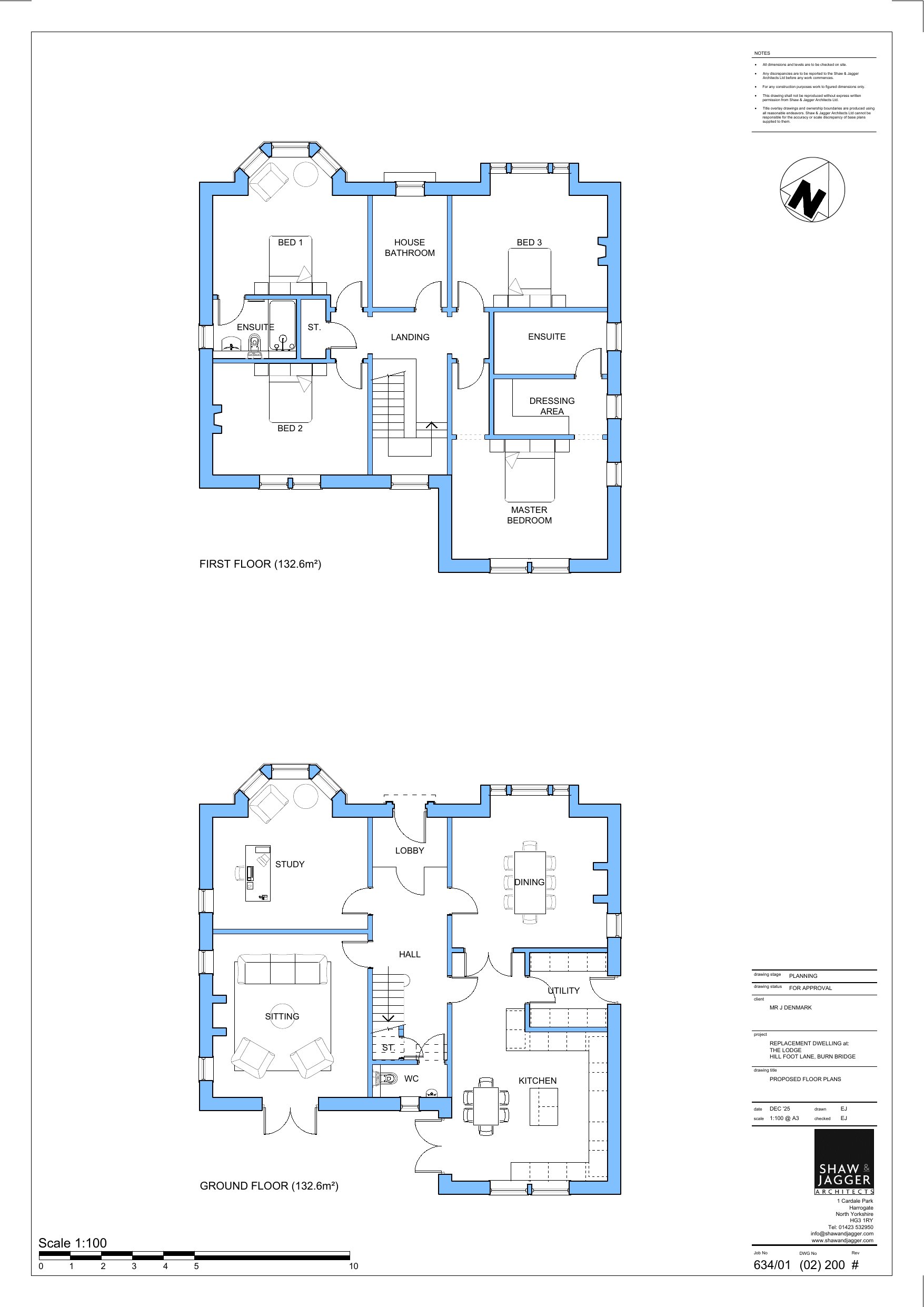
EXISTING FLOOR PLANS
Plan
Not yet archived · Original link
FLOOD RISK ASSESSMENT
Plan
Not yet archived · Original link
FOUL DRAINAGE ASSESSMENT FORM
Supporting Information
Not yet archived · Original link
HIGHWAYS
Consultee Comment
Not yet archived · Original link
PARISH COUNCIL
Consultee Comment
Not yet archived · Original link
PRELIMINARY ROOST ASSESSMENT
Supporting Information
Not yet archived · Original link
PRINCIPAL ECOLOGIST
Consultee Comment
Not yet archived · Original link
PROPOSED ELEVATIONS
Plan
Not yet archived · Original link
PROPOSED ROOF PLAN
Plan
Not yet archived · Original link
SEWAGE TREATMENT PLAN SPECS
Supporting Information
Not yet archived · Original link
Location Plan
Archived · Original link
SITE NOTICE
Site Notice
Not yet archived · Original link
SITE SECTIONS
Plan
Not yet archived · Original link

Have your say

Your comment matters. Councils must consider every representation that raises material planning considerations.

Write a comment