← North Yorkshire Council

Status

Registered House extension
Received
29 Jan 2026
New homes
0

Full proposal

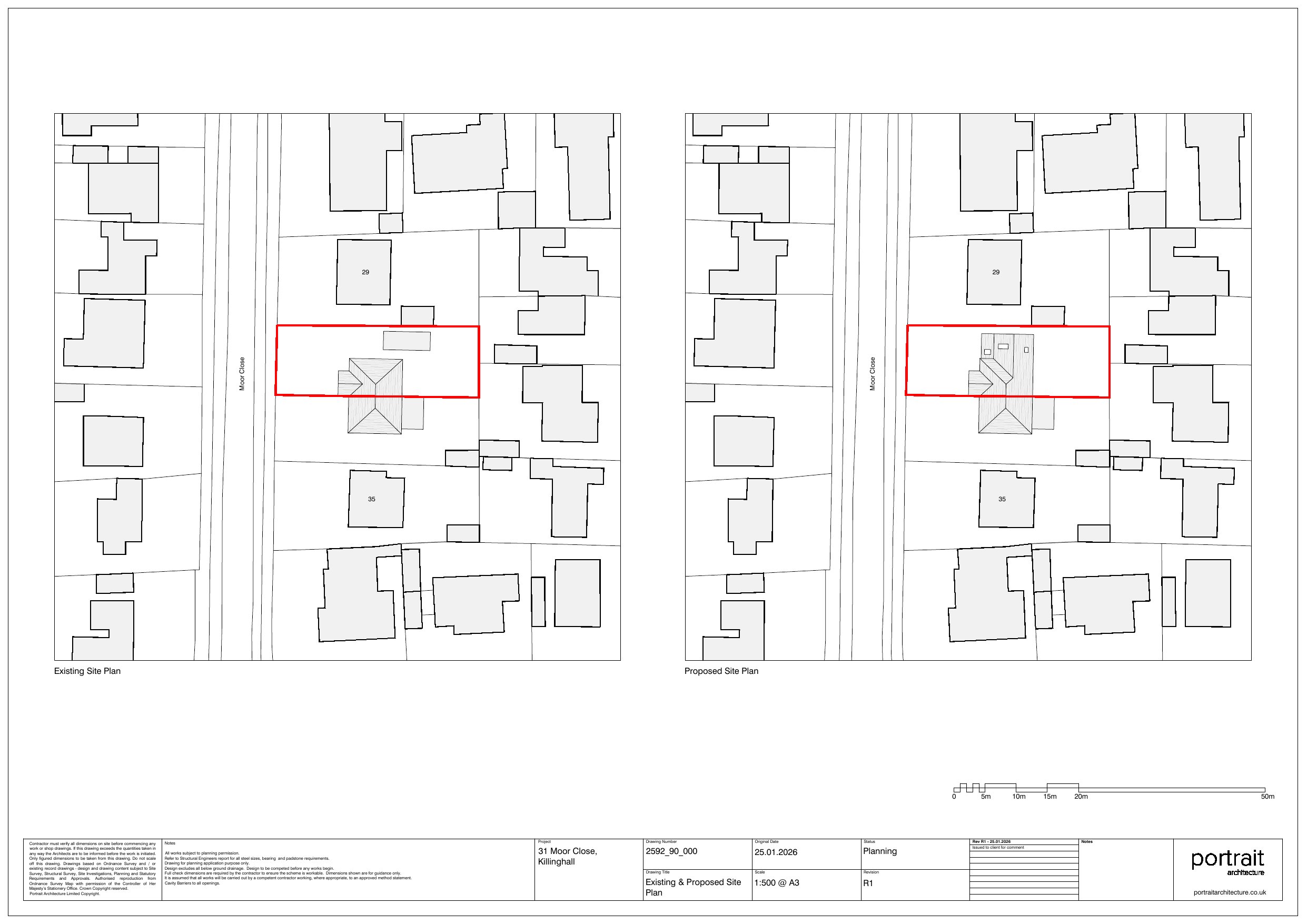
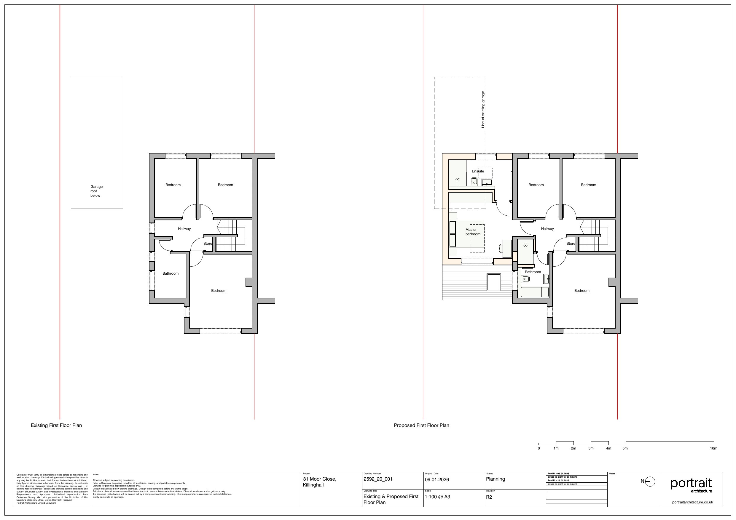
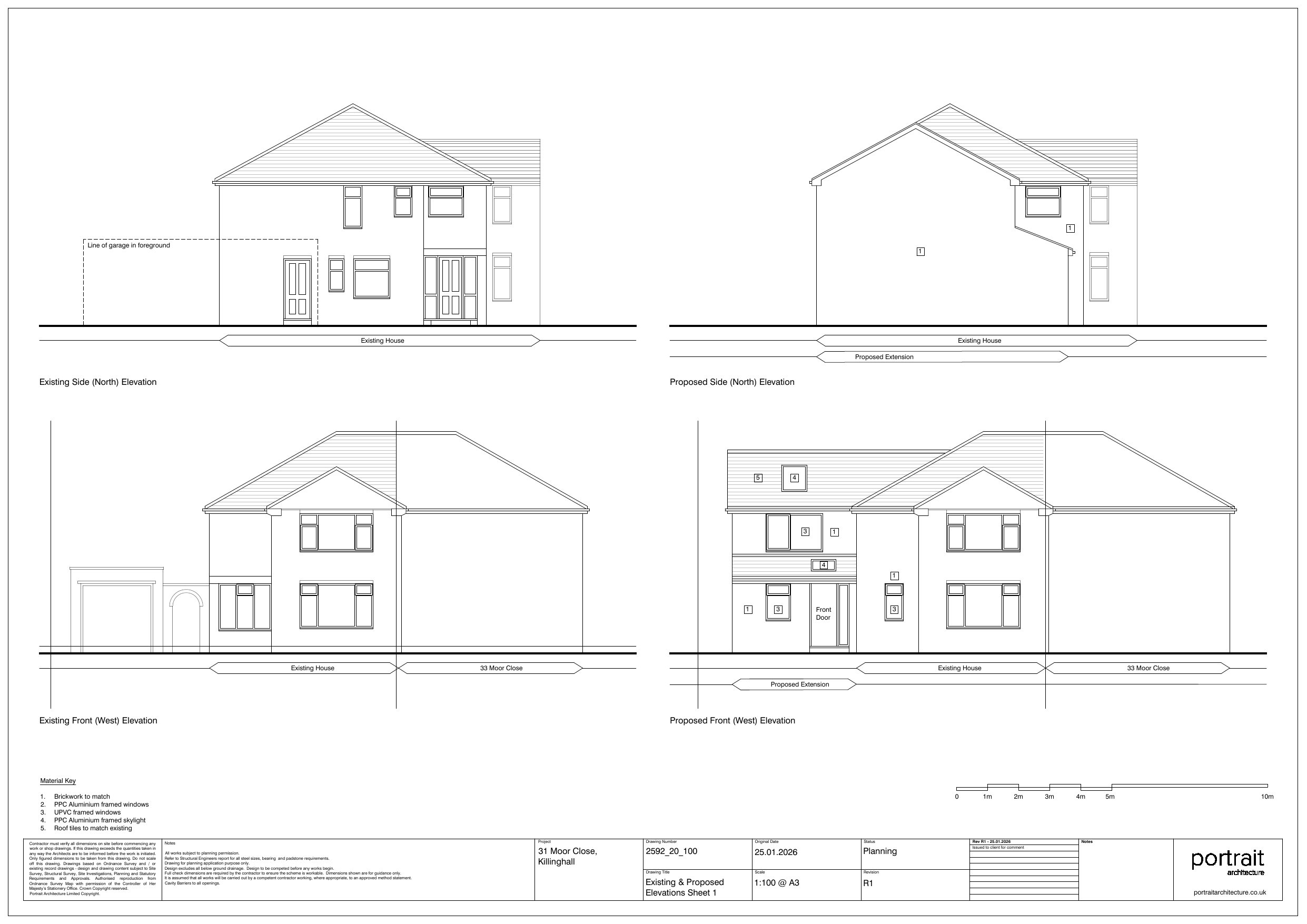
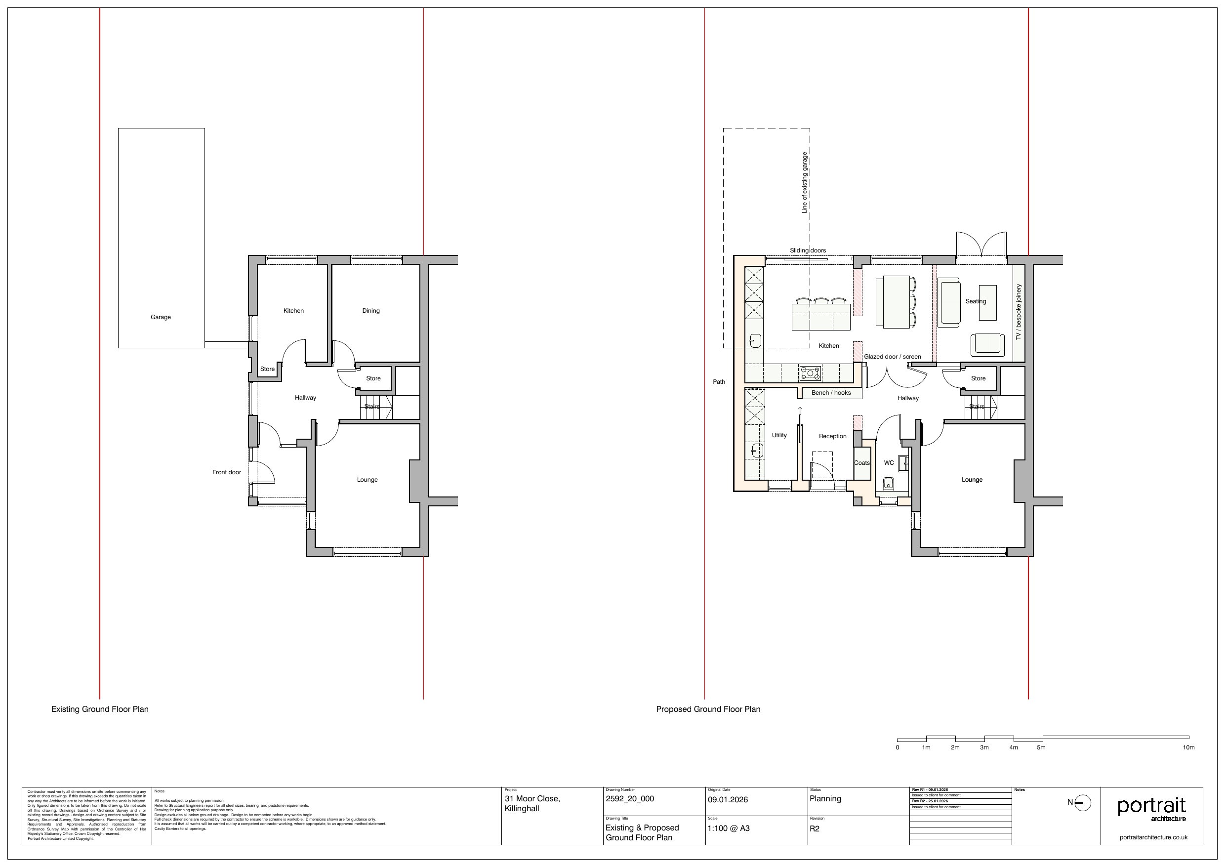
Demolition of garage. New two storey side extension to provide kitchen, utility and bedroom accommodation. Reformatting of front window.

Have your say

Your comment matters. Councils must consider every representation that raises material planning considerations.

Write a comment