← North Yorkshire Council

Status

Registered Change of use
Received
30 Jan 2026
New homes
1

Full proposal

Conversion and alteration of former agricultural building to a dwelling (retrospective)

Documents

Superseded
Archived · Original link
APPLICATIONFORMREDACTED
Application Form
Not yet archived · Original link
APPROVED LOCATION PLAN
Superseded
Not yet archived · Original link
APPROVED PLANS - HGTZC24-03661-FUL
Superseded
Not yet archived · Original link
BIODIVERSITY CHECKLIST
Supporting Information
Not yet archived · Original link
BIODIVERSITY CHECKLIST
Supporting Information
Not yet archived · Original link
BUILDING REG NOTICE
Supporting Information
Not yet archived · Original link
CASE OFFICER SITE VISIT NOTES
Case Notes
Not yet archived · Original link
CIL FORM 1
Superseded
Not yet archived · Original link
CIL FORM 1
Supporting Information
Not yet archived · Original link
CONTAMINATION SCREENING
Supporting Information
Not yet archived · Original link
CONTAMINATION SCREENING ASSESSMENT FORM
Supporting Information
Not yet archived · Original link
DECISION NOTICE
Superseded
Not yet archived · Original link
DECISION NOTICE
Superseded
Not yet archived · Original link
DECISION NOTICE - HGTZC24-03659-FUL
Superseded
Not yet archived · Original link
DECISION NOTICE - HGTZC24-03661-FUL
Superseded
Not yet archived · Original link
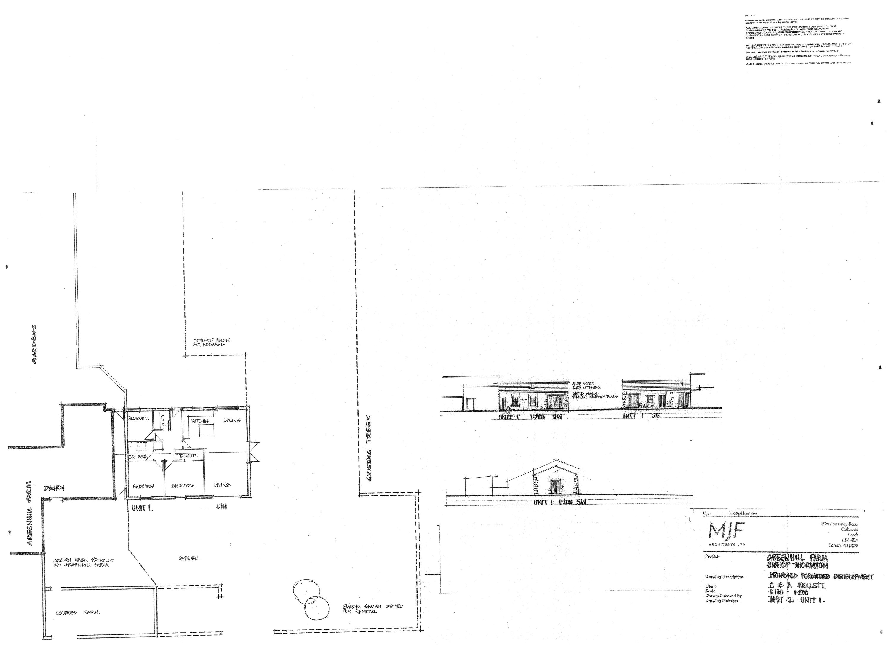
EXISTING PLANS AND ELEVATIONS
Supporting Information
Not yet archived · Original link
EXISTING PLANS AND ELEVATIONS
Plan
Not yet archived · Original link
HARROGATE AND DALES BRIDLEWAY GROUP
Consultee Comment
Not yet archived · Original link
Location Plan
Location Plan
Not yet archived · Original link
NYC HIGHWAYS CONSULTATION RESPONSE
Superseded
Not yet archived · Original link
OFFICER REPORT
Superseded
Not yet archived · Original link
OFFICER REPORT - DELEGATED DECISION
Superseded
Not yet archived · Original link
OFFICER REPORT - HGTZC24-03659-FUL
Superseded
Not yet archived · Original link
OFFICER REPORT - HGTZC24-03661-FUL
Superseded
Not yet archived · Original link
PLANNING APPEAL STATEMENT
Supporting Information
Not yet archived · Original link
PREVIOUS PLANNING APPLICATION FORM
Superseded
Not yet archived · Original link
SCHEDULE OF WORKS UNDERTAKEN
Supporting Information
Not yet archived · Original link
SITE LOCATION PLAN
Location Plan
Not yet archived · Original link
SITE NOTICE
Site Notice
Not yet archived · Original link
UNDERPINNING PLAN
Plan
Not yet archived · Original link
UNDERPINNING WORKS STATEMENT
Supporting Information
Not yet archived · Original link
YORKSHIRE WATER
Consultee Comment
Not yet archived · Original link

Have your say

Your comment matters. Councils must consider every representation that raises material planning considerations.

Write a comment