← North Yorkshire Council

Status

Registered House extension
Received
03 Feb 2026
New homes
0

Full proposal

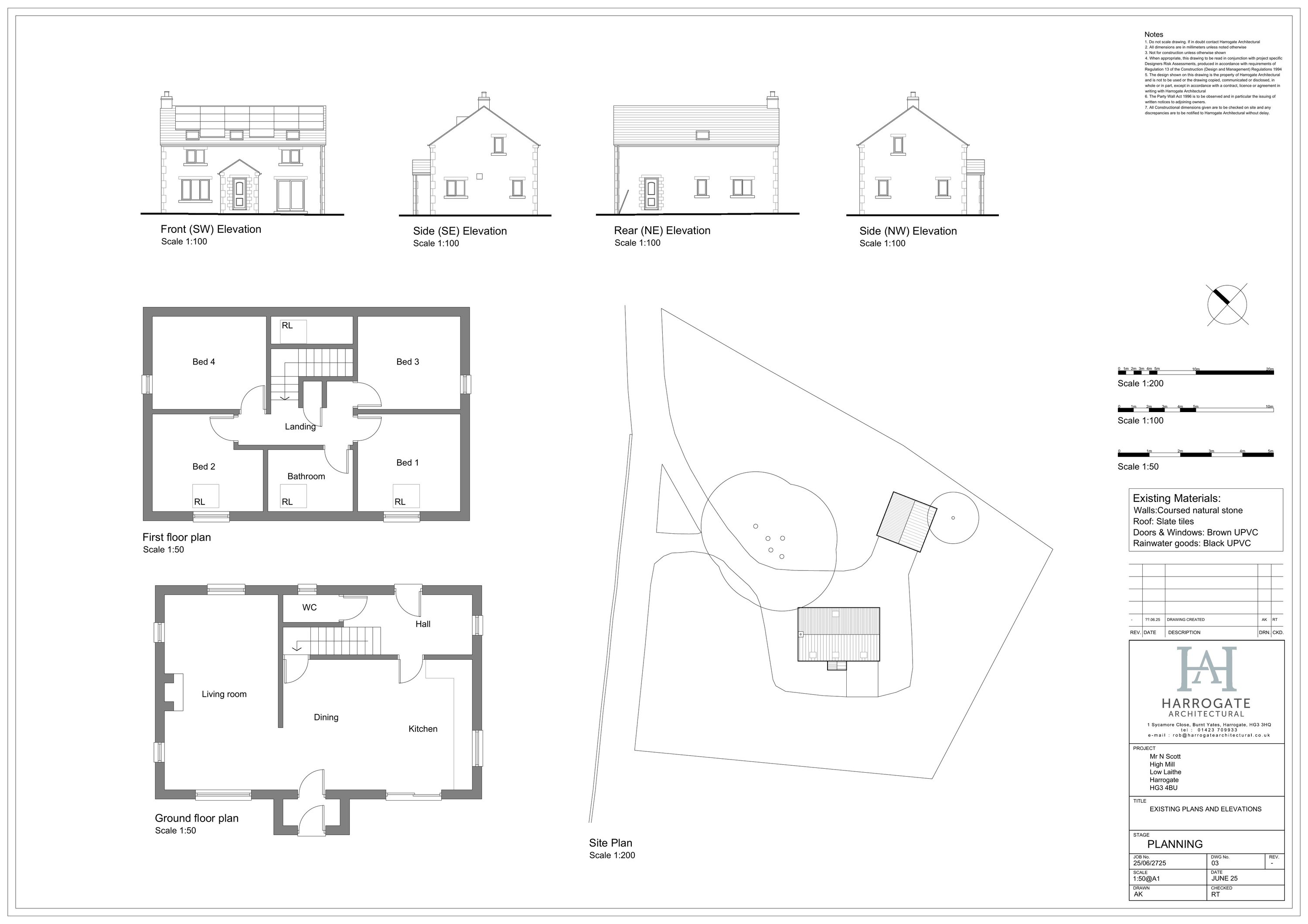
Erection of two storey extensions and porch. Alterations to fenestration and installation of solar panels. Demolition of garage and erection of replacement garage. Re-aligning access track

Documents

Application Form
Archived · Original link
Supporting Information
Archived · Original link
Supporting Information
Archived · Original link
Supporting Information
Archived · Original link
Plan
Archived · Original link
Supporting Information
Archived · Original link
Location Plan
Archived · Original link
Location Plan
Archived · Original link
Plan
Archived · Original link
Supporting Information
Archived · Original link
Site Notice
Archived · Original link

Have your say

Your comment matters. Councils must consider every representation that raises material planning considerations.

Write a comment