← North Yorkshire Council

Status

Registered Change of use
Received
03 Feb 2026
New homes
3

Full proposal

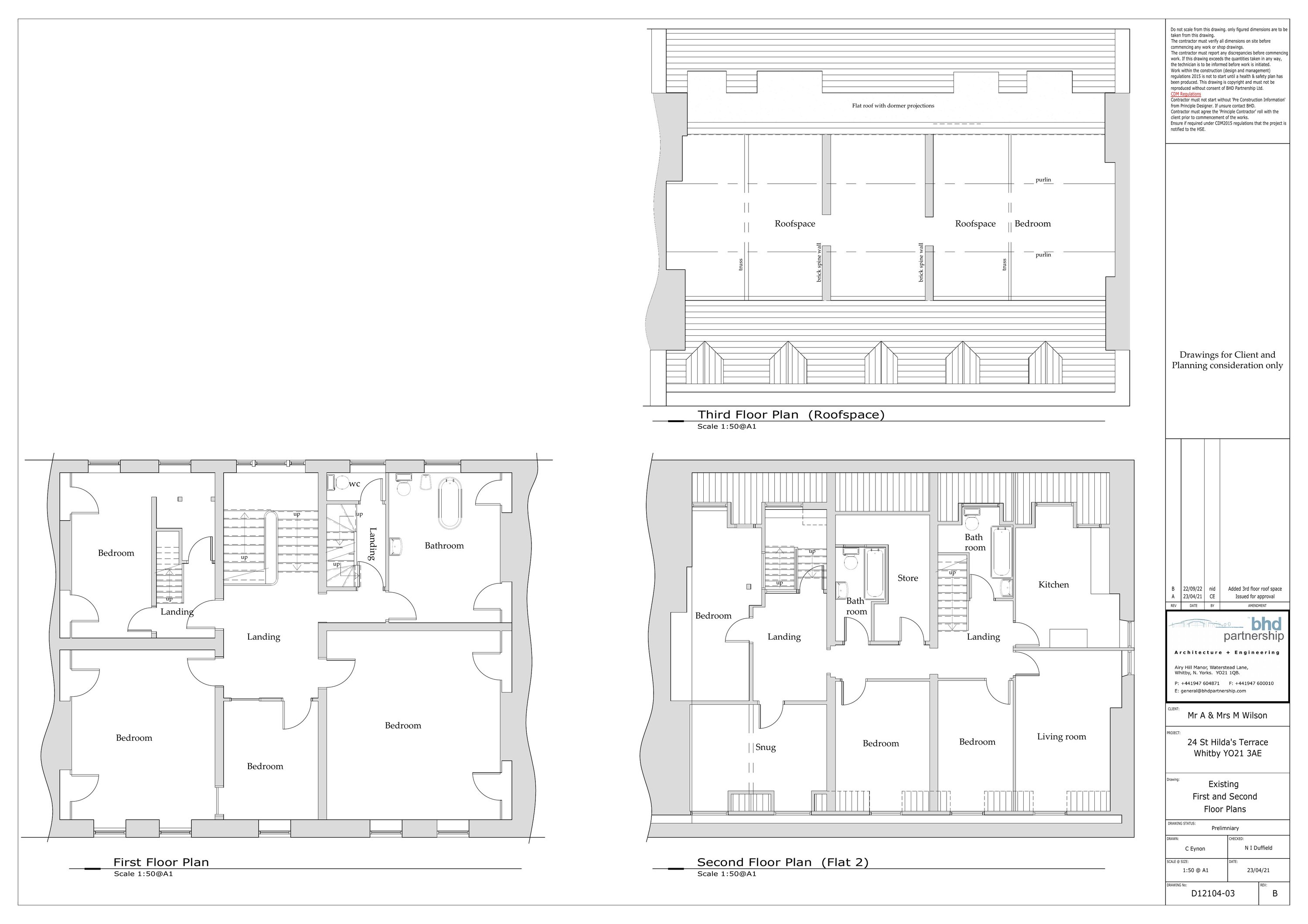
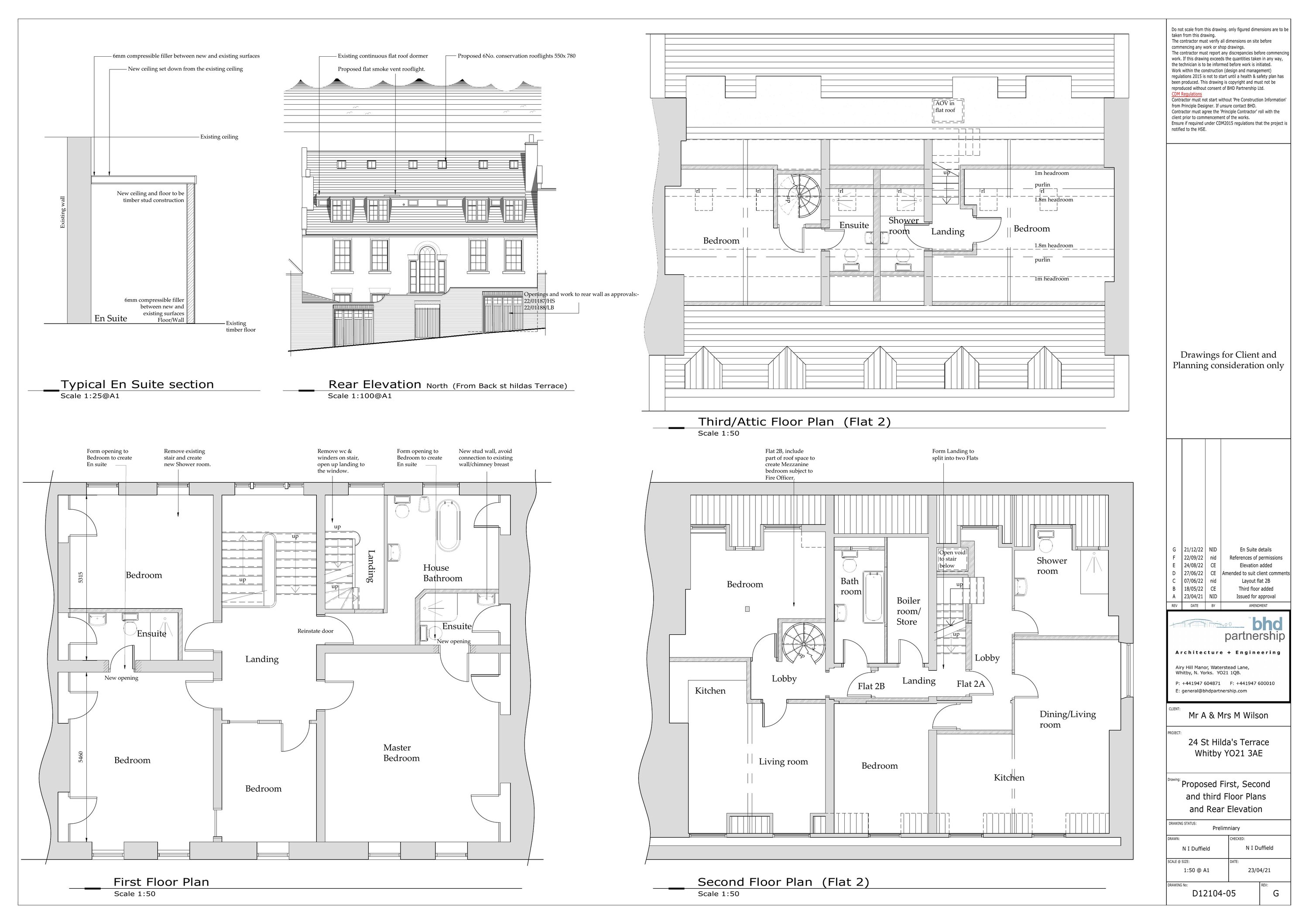
Retrospective works to change the layout to 2no flats on the 2nd Floor and a third self contained Flat on the 3rd Floor

Have your say

Your comment matters. Councils must consider every representation that raises material planning considerations.

Write a comment