← North Yorkshire Council

Status

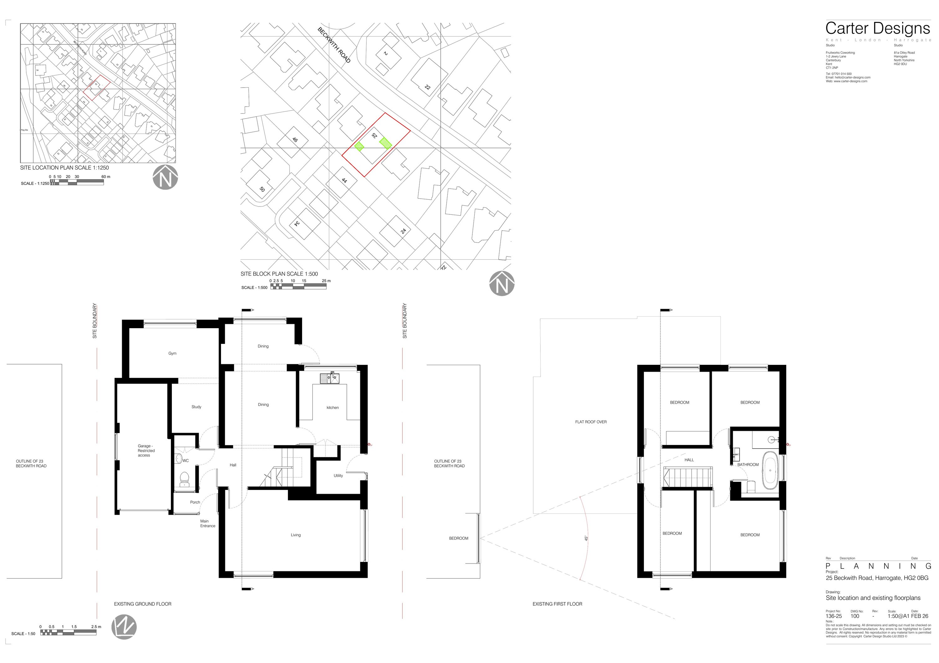
Registered House extension
Received
06 Feb 2026
New homes
0

Full proposal

Erection of a single-storey front and rear extensions, partial garage conversion, two-storey side extension, roof alterations including rooflights and green roof, and external cladding.

Documents

Application Form
Archived · Original link
Supporting Information
Archived · Original link
Supporting Information
Archived · Original link
Site Notice
Archived · Original link

Have your say

Your comment matters. Councils must consider every representation that raises material planning considerations.

Write a comment