← North Yorkshire Council

Status

Registered House extension
Received
Last month
New homes
0

Full proposal

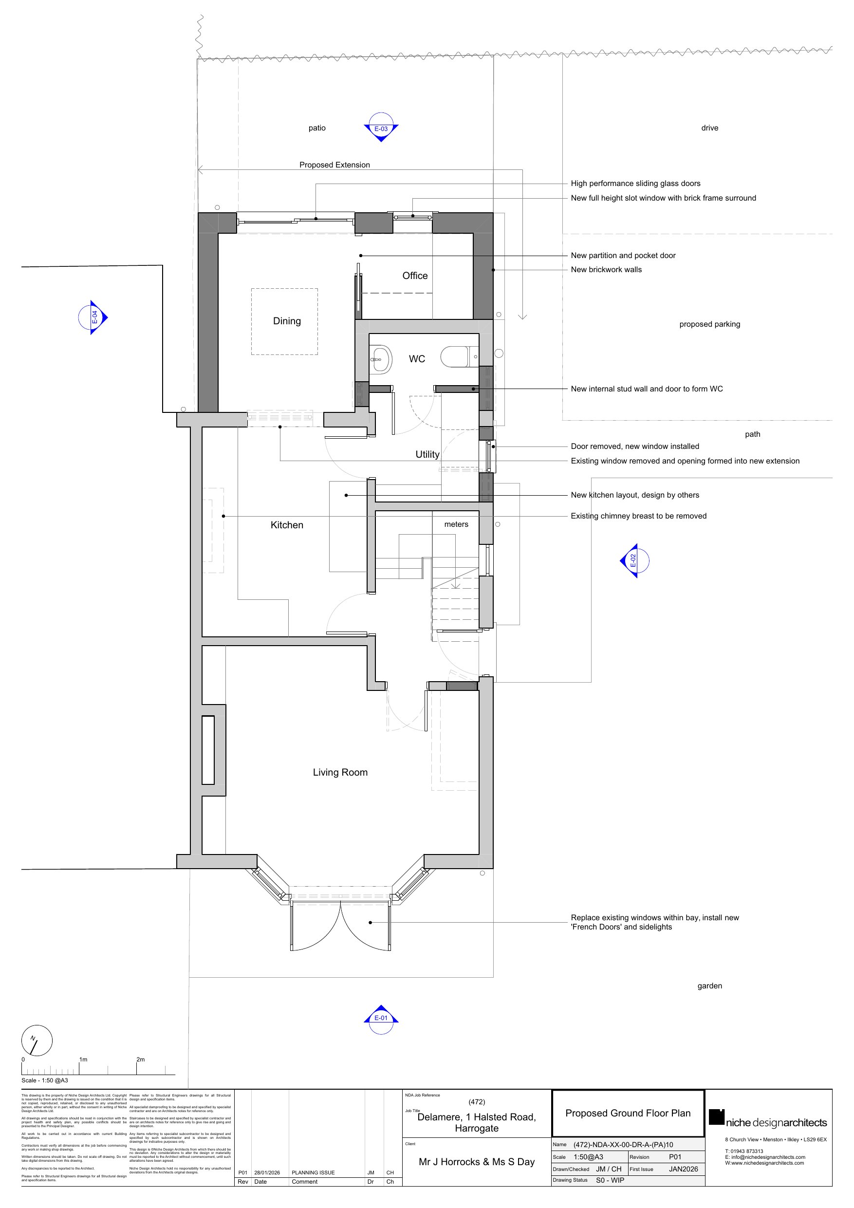
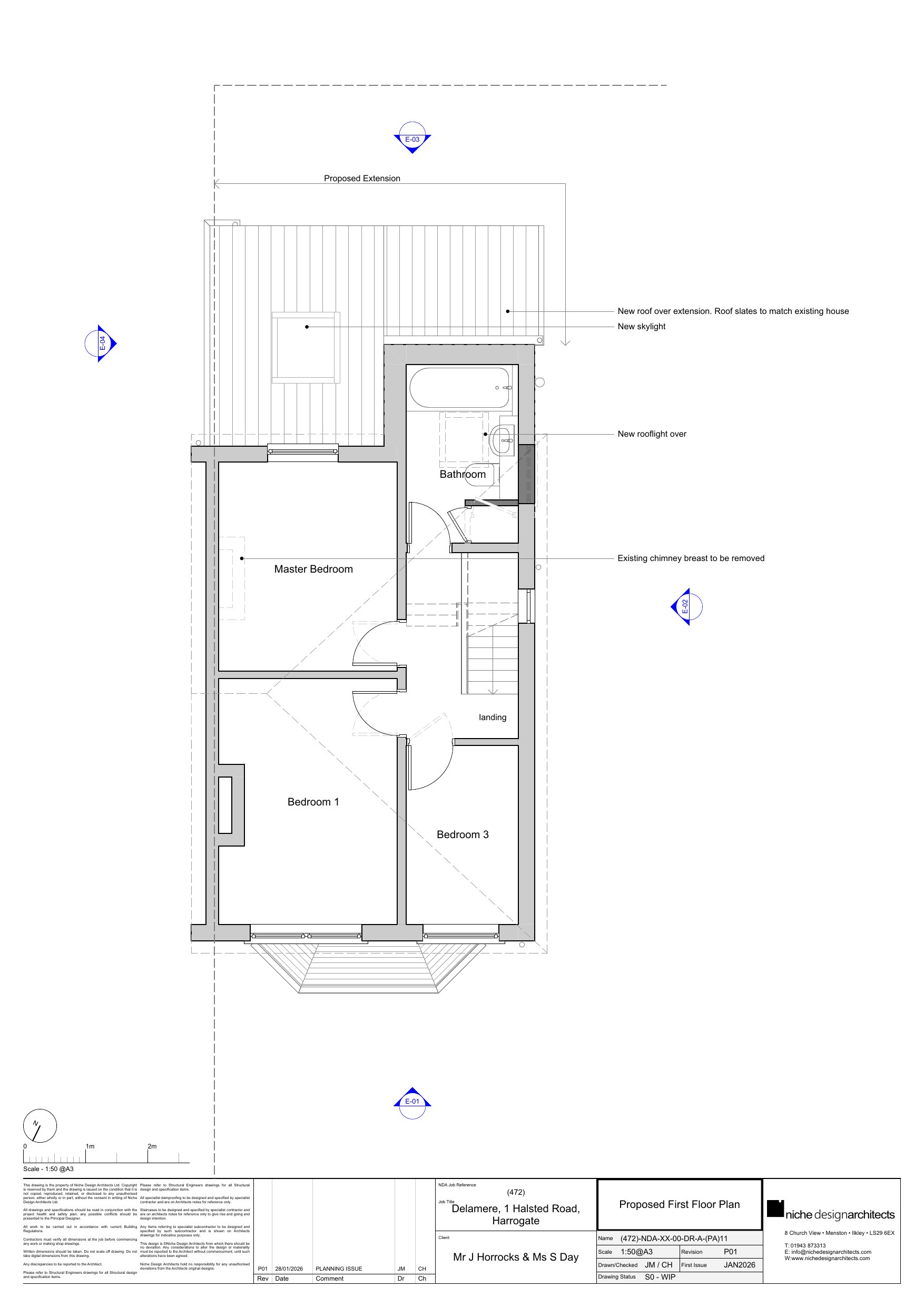
Construction of single storey rear extension and alteration of existing driveway. Alterations to external fenestration to suit internal remodelling and new rooflight on the rear elevation.

Documents

Application Form
Archived · Original link
Correspondence
Archived · Original link
Supporting Information
Archived · Original link
Supporting Information
Archived · Original link
Correspondence
Archived · Original link
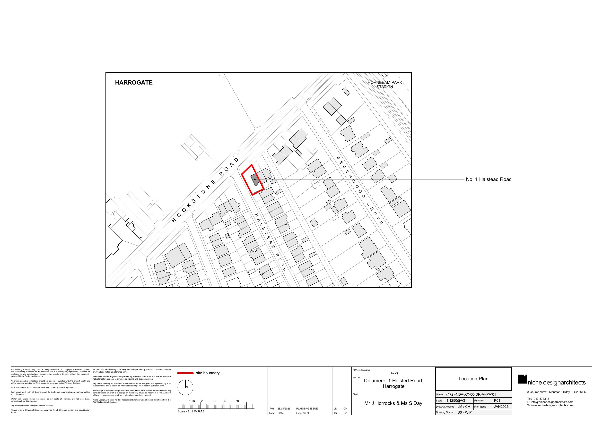
Location Plan
Archived · Original link
Consultee Comment
Archived · Original link
Site Notice
Archived · Original link

Have your say

Your comment matters. Councils must consider every representation that raises material planning considerations.

Write a comment