← North Yorkshire Council

Status

Registered House extension
Received
Last month
New homes
0

Full proposal

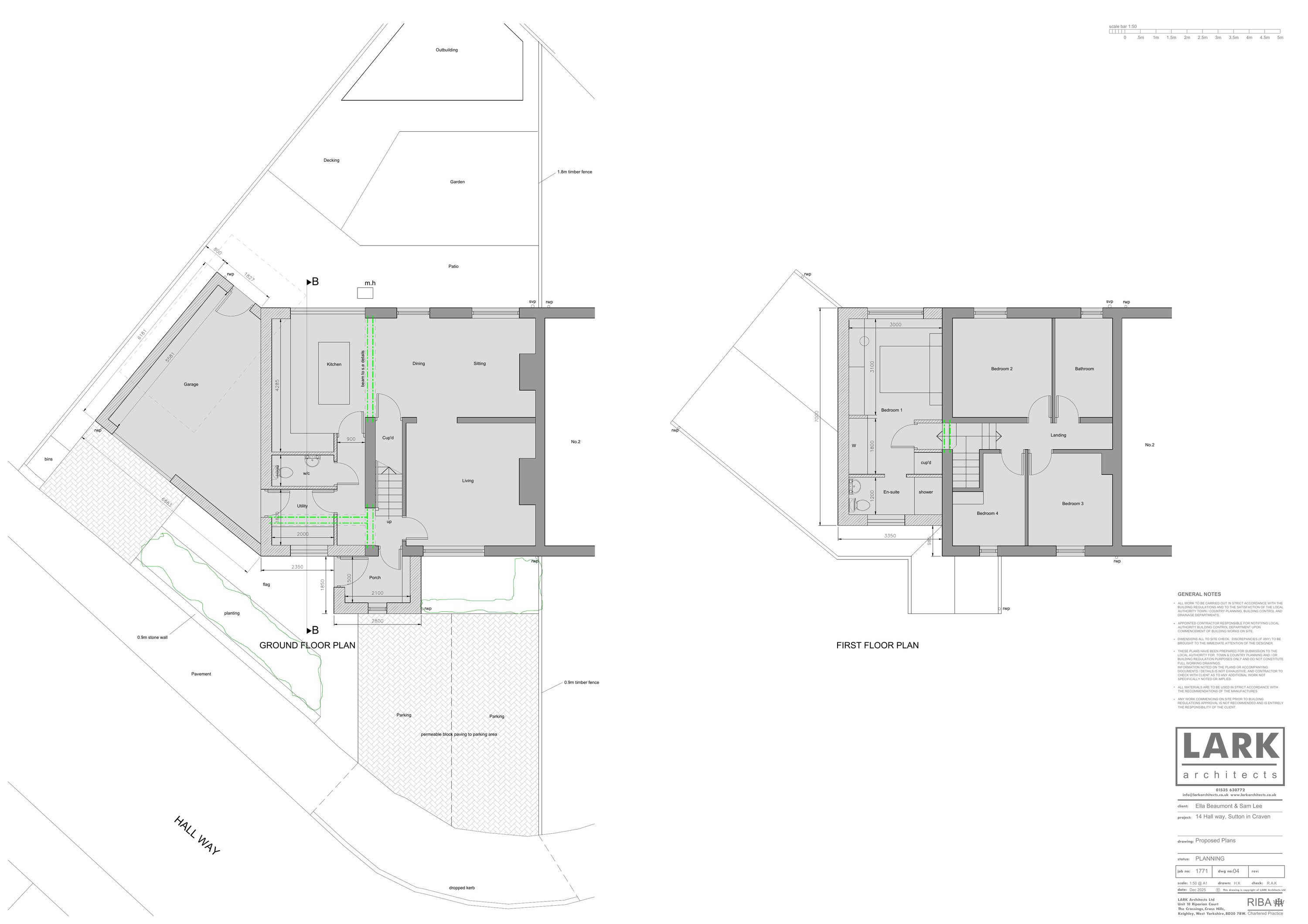
Householder consent for extensions to existing semi-detached dwelling

Documents

(AMENDED) 3D VISUAL A
Plan
Not yet archived · Original link
(AMENDED) PROPOSED SECTION AND ELEVATION
Plan
Not yet archived · Original link
(SUPERSEDED) 3D VISUAL
Plan
Not yet archived · Original link
(SUPERSEDED) PROPOSED SECTION AND ELEVATIONS
Plan
Not yet archived · Original link
(SUPERSEDED) PROPOSED SECTION AND ELEVATIONS
Plan
Not yet archived · Original link
APPLICATIONFORMREDACTED
Application Form
Not yet archived · Original link
DAYLIGHT SUNLIGHT ANALYSIS
Plan
Not yet archived · Original link
EXISTING PLANS
Plan
Not yet archived · Original link
EXISTING SECTION AND ELEVATIONS
Plan
Not yet archived · Original link
FLOOD RISK ASSESSMENT
Supporting Information
Not yet archived · Original link
LOCATION PLAN
Location Plan
Not yet archived · Original link
SITE NOTICE
Site Notice
Not yet archived · Original link
SUSTAINABLE DESIGN AND CONSTRUCTION STATEMENT
Supporting Information
Not yet archived · Original link

Have your say

Your comment matters. Councils must consider every representation that raises material planning considerations.

Write a comment