← North Yorkshire Council

Status

Registered House extension
Received
Last month
New homes
0

Full proposal

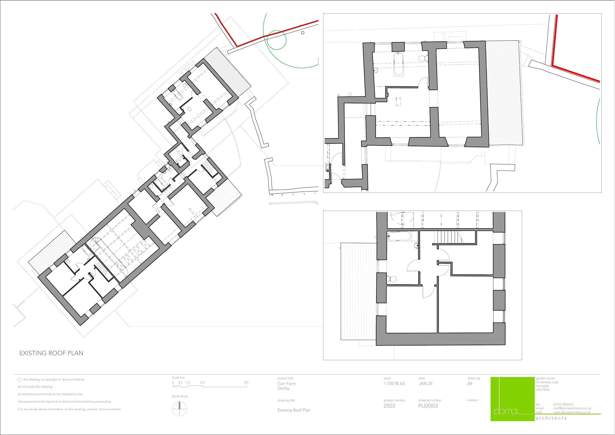
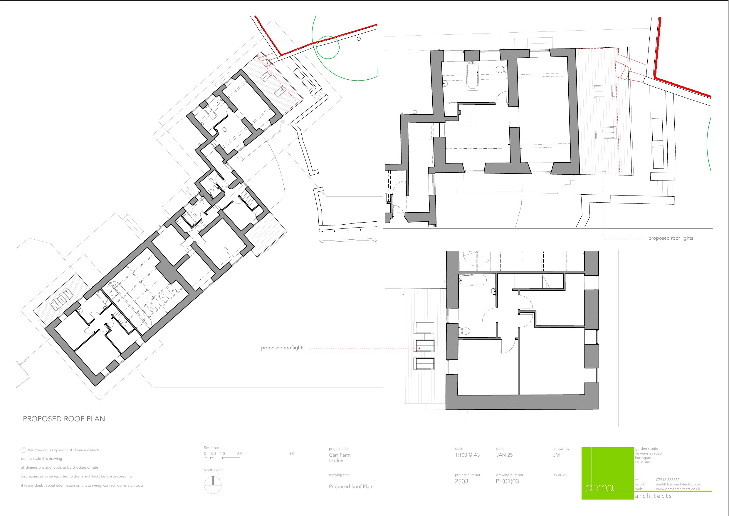
Demolition of existing boiler room to side of existing house, erection of new lean-to style extension to house plant room with new retaining structure to garden on site of existing boiler room, adjustment to fenestration to front and rear elevations, formation of new patio doors to side and rear elevations, addition of roof lights, and increasing of height and pitch of roof to existing rear kitchen extension. Installation of 2 no. air source heat pumps.

Have your say

Your comment matters. Councils must consider every representation that raises material planning considerations.

Write a comment