← North Yorkshire Council

Status

Registered House extension
Received
Last month
New homes
0

Full proposal

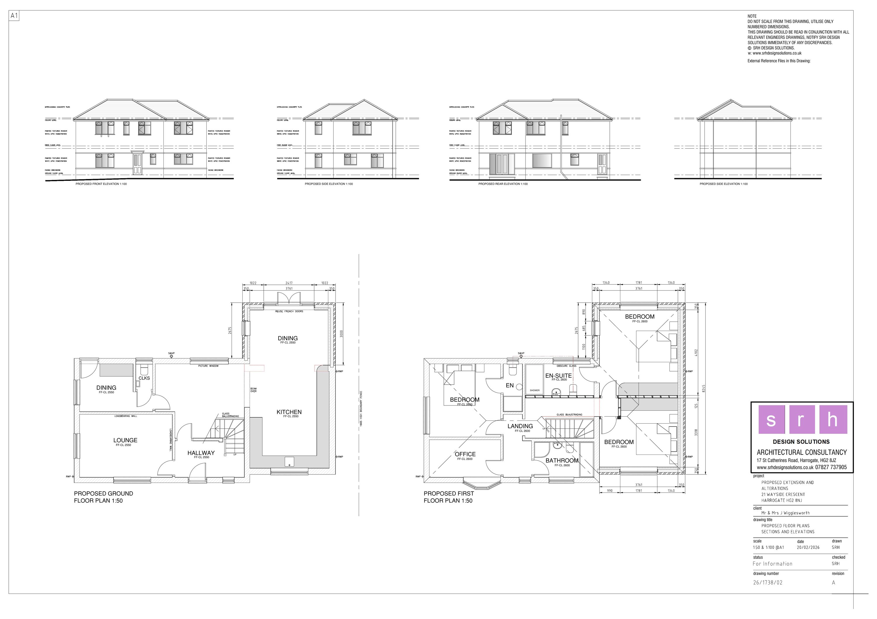
Erection of first floor side extension and two storey rear extension

Documents

Application Form
Archived · Original link
Consultee Comment
Archived · Original link
Supporting Information
Archived · Original link
Location Plan
Archived · Original link
Supporting Information
Archived · Original link
Supporting Information
Archived · Original link
Site Notice
Archived · Original link

Have your say

Your comment matters. Councils must consider every representation that raises material planning considerations.

Write a comment