← North Yorkshire Council

Status

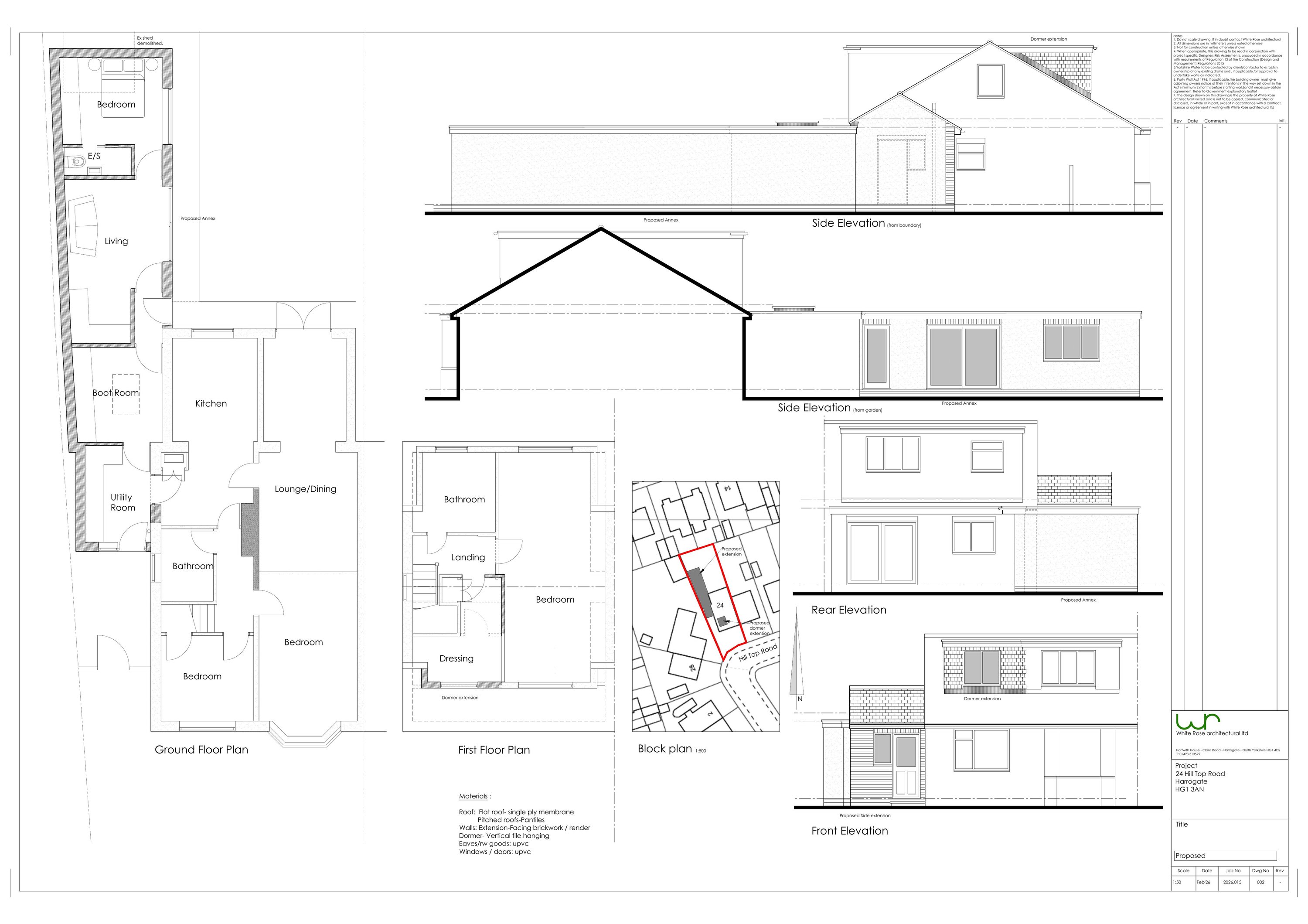
Registered House extension
Received
Last month
New homes
0

Full proposal

Erection of single storey Annex extension. Extension to existing front dormer.

Documents

Application Form
Archived · Original link
Supporting Information
Archived · Original link
Supporting Information
Archived · Original link
Correspondence
Archived · Original link
Location Plan
Archived · Original link

Have your say

Your comment matters. Councils must consider every representation that raises material planning considerations.

Write a comment