← North Yorkshire Council

Status

Registered House extension
Received
Last month
New homes
0

Full proposal

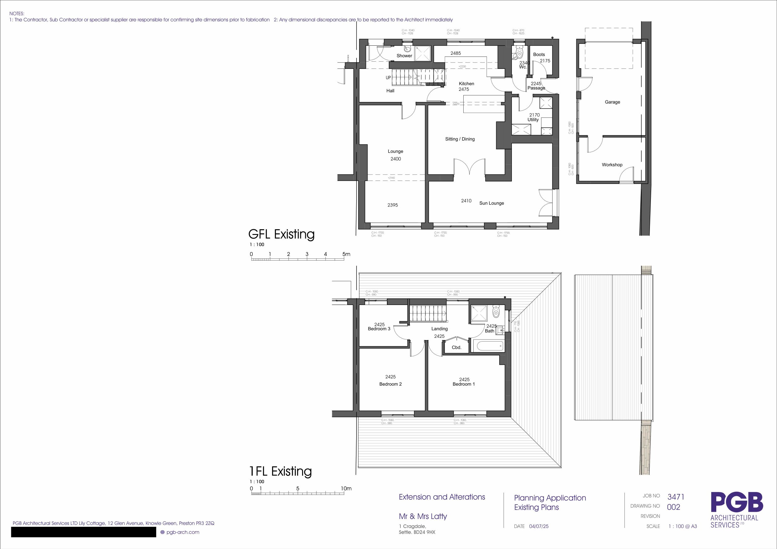
Householder permission for 2 storey front extension, first floor side extension, rear decking area, conversion of garage to annexe, garden store, permeable parking and fencing to front of property as well as solar panels to the rear.

Documents

Application Form
Archived · Original link
Supporting Information
Archived · Original link
Supporting Information
Archived · Original link
Location Plan
Archived · Original link
Supporting Information
Archived · Original link
Supporting Information
Archived · Original link

Have your say

Your comment matters. Councils must consider every representation that raises material planning considerations.

Write a comment