← North Yorkshire Council

Status

Registered House extension
Received
25 Nov 2024
New homes
0

Full proposal

Full planning permission for alterations and extension to existing dwelling house and conversion of 2 no. barns to form ancillary residential accommodation to the existing dwelling

Documents

(AMENDED) BARN 1 PROPOSED ELEVATIONS
Plan
Not yet archived · Original link
(AMENDED) BARN 2 PROPOSED ELEVATIONS
Plan
Not yet archived · Original link
(AMENDED) FLOOD RISK ASSESSMENT
Supporting Information
Not yet archived · Original link
(AMENDED) GROUP ELEVATIONS AS PROPOSED A AND B
Plan
Not yet archived · Original link
(AMENDED) GROUP ELEVATIONS AS PROPOSED C AND D
Plan
Not yet archived · Original link
(AMENDED) GROUP ELEVATIONS AS PROPOSED E AND F
Plan
Not yet archived · Original link
(AMENDED) GROUP PROPOSED ROOF PLAN
Plan
Not yet archived · Original link
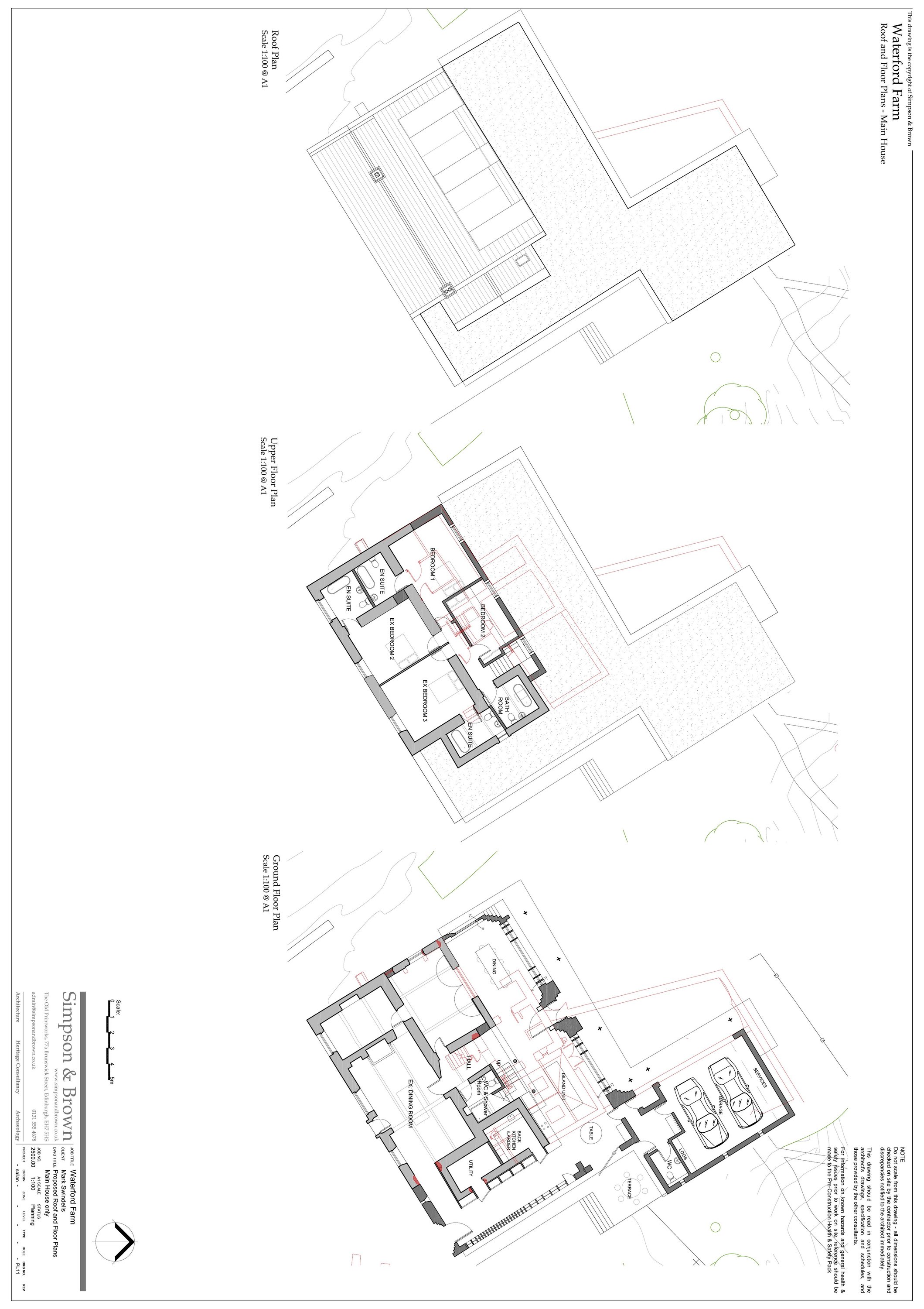
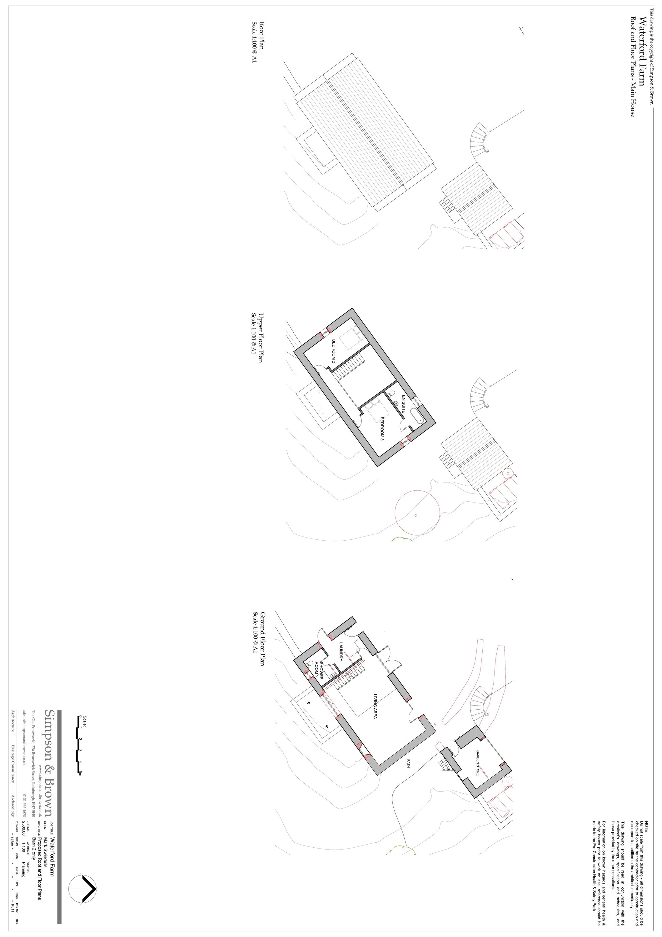
(AMENDED) GROUP PROPOSED UPPER FLOOR PLANS
Plan
Not yet archived · Original link
(AMENDED) LOCATION PLAN & SITE/BLOCK PLAN PROPOSED
Plan
Not yet archived · Original link
(AMENDED) MAIN HOUSE PROPOSED ELEVATIONS
Plan
Not yet archived · Original link
(SUPERCEDED) BARN 1 PROPOSED ELEVATIONS
Plan
Not yet archived · Original link
(SUPERCEDED) BARN 2 PROPOSED ELEVATIONS
Plan
Not yet archived · Original link
(SUPERCEDED) FLOOD RISK ASSESSMENT
Supporting Information
Not yet archived · Original link
(SUPERCEDED) GROUP ELEVATIONS AS PROPOSED A AND B
Plan
Not yet archived · Original link
(SUPERCEDED) GROUP ELEVATIONS AS PROPOSED C AND D
Plan
Not yet archived · Original link
(SUPERCEDED) GROUP ELEVATIONS AS PROPOSED E AND F
Plan
Not yet archived · Original link
(SUPERCEDED) GROUP PROPOSED GROUND FLOOR PLAN
Plan
Not yet archived · Original link
(SUPERCEDED) GROUP PROPOSED ROOF PLAN
Plan
Not yet archived · Original link
(SUPERCEDED) GROUP PROPOSED UPPER FLOOR PLANS
Plan
Not yet archived · Original link
(SUPERCEDED) LOCATION PLAN & SITE/BLOCK PLAN PROPOSED
Plan
Not yet archived · Original link
(SUPERCEDED) MAIN HOUSE PROPOSED ELEVATIONS
Plan
Not yet archived · Original link
APPLICATION FORM
Application Form
Not yet archived · Original link
BARN 1 ELEVATIONS AS EXISTING
Plan
Not yet archived · Original link
BARN 1 PLANS AS EXISTING
Plan
Not yet archived · Original link
BARN 2 ELEVATIONS AS EXISTING
Plan
Not yet archived · Original link
BARN 2 PLANS AS EXISTING
Plan
Not yet archived · Original link
BAT MITIGATION BARN 1
Supporting Information
Not yet archived · Original link
BNG METRIC
Supporting Information
Not yet archived · Original link
DESIGN STATEMENT
Supporting Information
Not yet archived · Original link
ECOLOGICAL & BIODIVERSITY APPRAISAL
Supporting Information
Not yet archived · Original link
ENVIRONMENTAL HEALTH
Consultee Comment
Not yet archived · Original link
MAIN HOUSE ELEVATIONS AS EXISTING
Plan
Not yet archived · Original link
MAIN HOUSE PLANS AS EXISTING
Plan
Not yet archived · Original link
NYC CONSERVATION
Consultee Comment
Not yet archived · Original link
NYC ECOLOGY
Consultee Comment
Not yet archived · Original link
NYC ECOLOGY
Consultee Comment
Not yet archived · Original link
NYC PROW OFFICER
Consultee Comment
Not yet archived · Original link
PARISH COUNCIL
Consultee Comment
Not yet archived · Original link
PARISH COUNCIL (FULL)
Consultee Comment
Not yet archived · Original link
PUBLIC RIGHT OF WAY STATEMENT
Supporting Information
Not yet archived · Original link
SUSTAINABILITY STATEMENT
Supporting Information
Not yet archived · Original link

Have your say

Your comment matters. Councils must consider every representation that raises material planning considerations.

Write a comment