← North Yorkshire Council

Status

Registered Change of use
Received
14 Oct 2024
New homes
2

Full proposal

Change of use of redundant school (Use Class F1) to provide 2no. dwellings (Use Class C3).

Documents

APPLICATIONFORMREDACTED
Application Form
Not yet archived · Original link
CASE OFFICER SITE VISIT NOTES
Case Notes
Not yet archived · Original link
CASE OFFICER SITE VISIT NOTES
Case Notes
Not yet archived · Original link
CIL FORM
Supporting Information
Not yet archived · Original link
DESIGN, ACCESS AND HERITAGE STATEMENT
Supporting Information
Not yet archived · Original link
DRAINAGE STRATEGY
Plan
Not yet archived · Original link
ENVIRONMENTAL HEALTH
Consultee Comment
Not yet archived · Original link
EXISTING FLOOR PLANS AND ELEVATIONS
Plan
Not yet archived · Original link
Amended Details
Archived · Original link
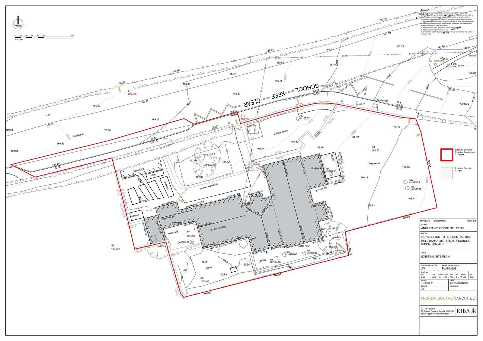
EXISTING SITE SECTIONS
Plan
Not yet archived · Original link
HIGHWAYS
Consultee Comment
Not yet archived · Original link
HIGHWAYS AUTHORITY
Consultee Comment
Not yet archived · Original link
HOUSING DEPARTMENT
Consultee Comment
Not yet archived · Original link
JAC
Consultee Comment
Not yet archived · Original link
LOCATION PLAN
Amended Details
Not yet archived · Original link
LOCATIONPLAN
Location Plan
Not yet archived · Original link
MARKETING REPORT
Amended Details
Not yet archived · Original link
MARKETING REPORT
Amended Details
Not yet archived · Original link
MOD
Consultee Comment
Not yet archived · Original link
PARISH COUNCIL
Consultee Comment
Not yet archived · Original link
PLANNING STATEMENT
Supporting Information
Not yet archived · Original link
PRELIMINARY ECOLOGICAL APPRAISAL AND BAT SURVEYS - SE
Supporting Information
Not yet archived · Original link
PRIVATE HOUSING STANDARDS
Consultee Comment
Not yet archived · Original link
PRIVATE HOUSING STANDARDS
Consultee Comment
Not yet archived · Original link
PROPOSED ELEVATIONS
Plan
Not yet archived · Original link
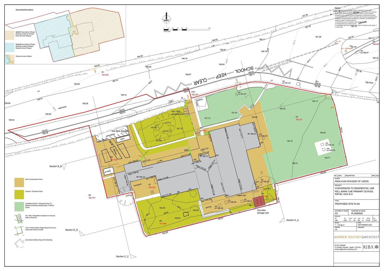
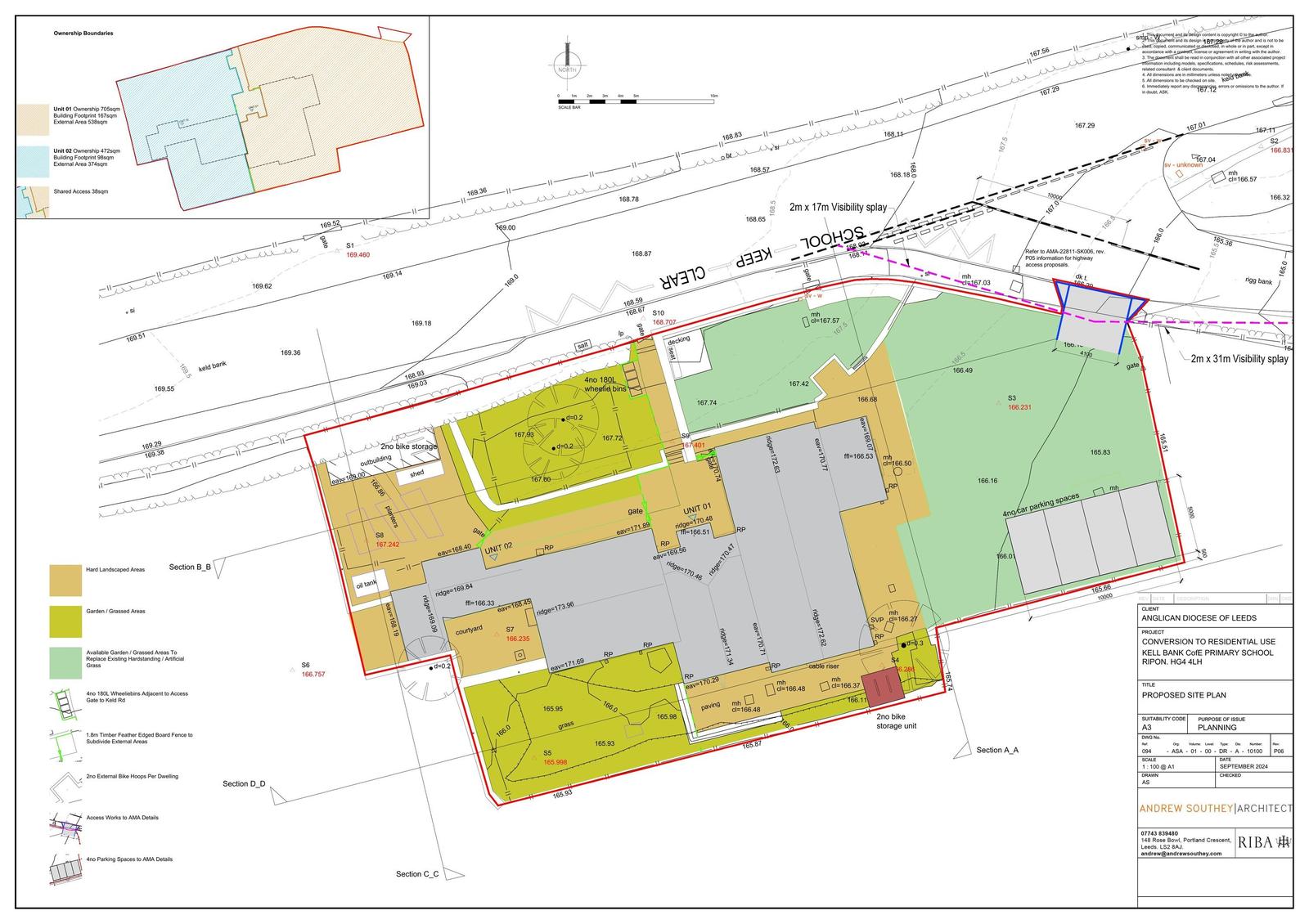
PROPOSED GROUND FLOOR PLANS
Plan
Not yet archived · Original link
Amended Details
Archived · Original link
SITE NOTICE
Site Notice
Not yet archived · Original link
SITE NOTICE
Site Notice
Not yet archived · Original link
STORAGE CHECK
Supporting Information
Not yet archived · Original link
UPDAGT - 3 UPDATE AGT/APP
Case Notes
Not yet archived · Original link

Have your say

Your comment matters. Councils must consider every representation that raises material planning considerations.

Write a comment