← North Yorkshire Council

Status

Registered House extension
Received
16 Dec 2024
New homes
0

Full proposal

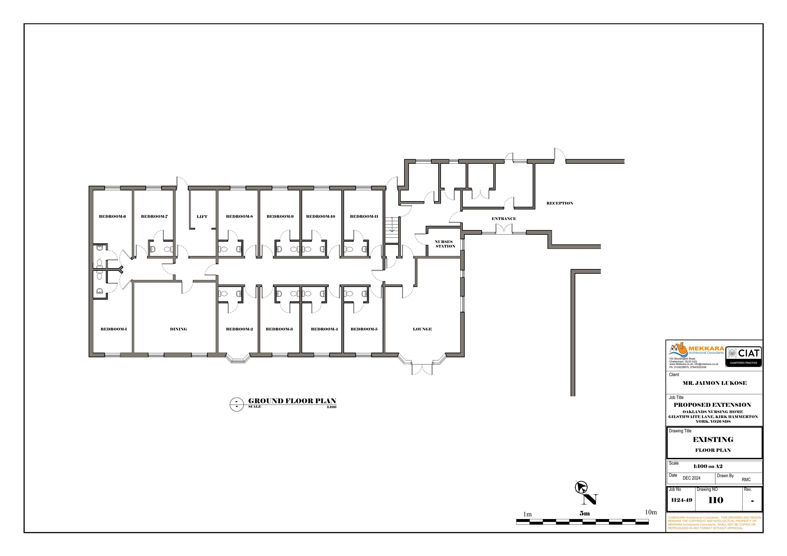
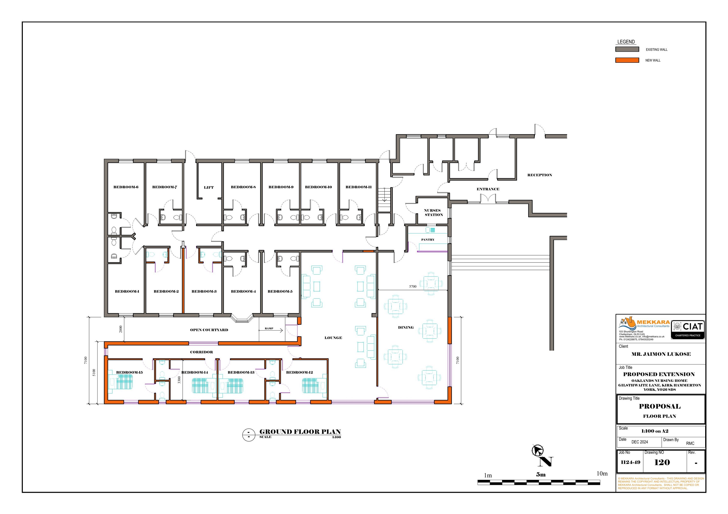
Erection of a single storey front extension to add extra bedrooms and to enhance the dining and lounge facilities.

Documents

Application Form
Archived · Original link
Consultee Comment
Archived · Original link
Supporting Information
Archived · Original link
Supporting Information
Archived · Original link
Supporting Information
Archived · Original link
Location Plan
Archived · Original link
Consultee Comment
Archived · Original link
Site Notice
Archived · Original link

Have your say

Your comment matters. Councils must consider every representation that raises material planning considerations.

Write a comment