← Northumberland County Council

Status

Permitted House extension
Received
07 Jan 2025
New homes
0

Full proposal

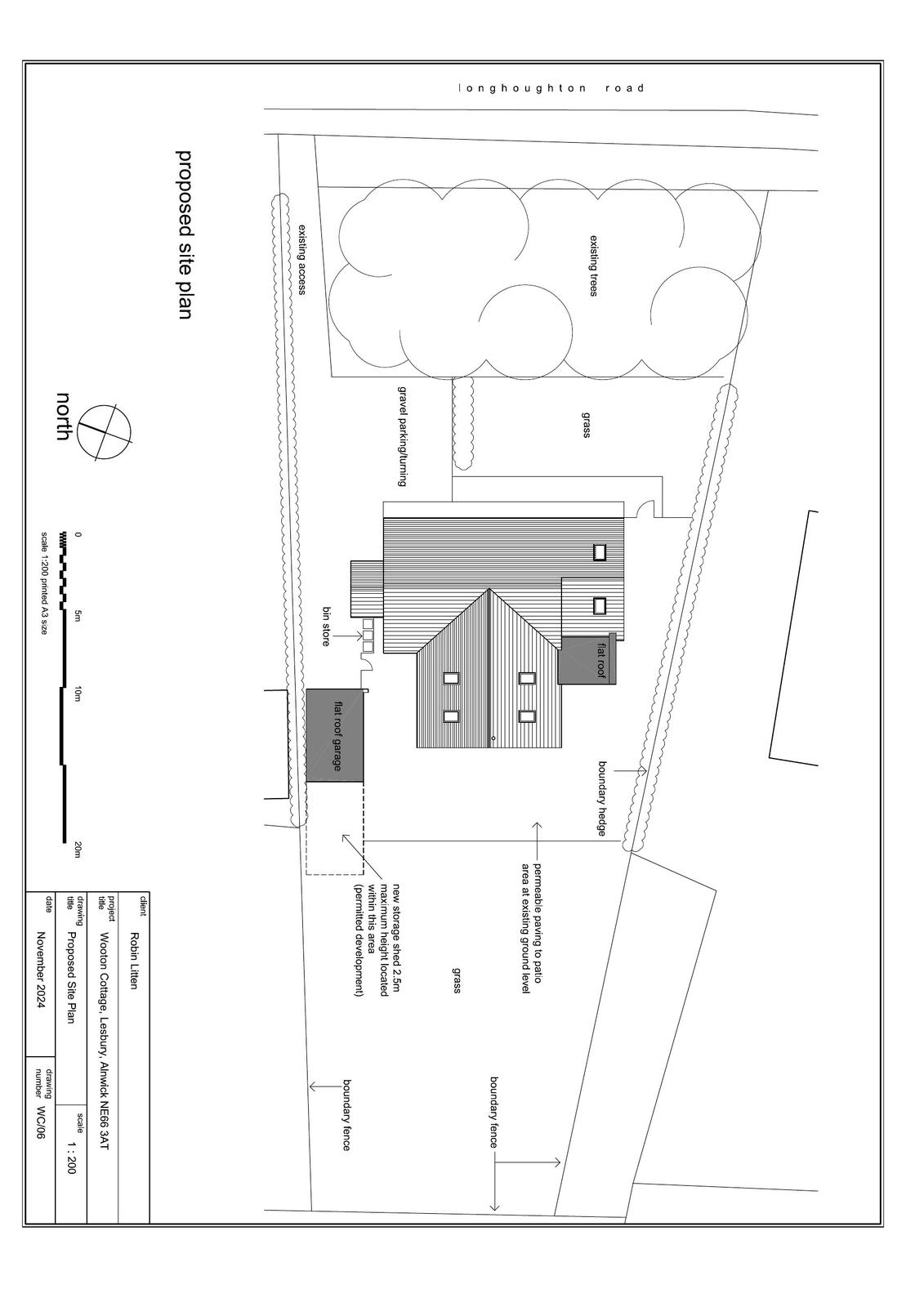
Internal remodeling of existing dwelling and single storey rear extension

Documents

Application Form
Application Form
Not yet archived · Original link
Decision Notice
Decision Notice
Not yet archived · Original link
Ecology Checklist
Ecology Checklist
Not yet archived · Original link
EXISTING ELEVATIONS
Plan
Not yet archived · Original link
EXISTING GROUND AND FIRST FLOOR PLANS
Plan
Not yet archived · Original link
LESBURY PARISH COUNCIL
Consultee Response
Not yet archived · Original link
LETTER
Correspondence
Not yet archived · Original link
Location Plan
Location Plan
Not yet archived · Original link
Officer Report
Officer Report
Not yet archived · Original link
PROPOSED ELEVATIONS
Plan
Not yet archived · Original link
PROPOSED GROUND AND FIRST FLOOR PLANS
Plan
Not yet archived · Original link
WOOTTON COTTAGE FLOOD RISK FOR HOUSEHOLDERS FORM
Report/ Statement
Not yet archived · Original link

Have your say

Your comment matters. Councils must consider every representation that raises material planning considerations.

Write a comment