← Northumberland County Council

Status

Withdrawn House extension
Received
21 Oct 2025
New homes
0

Full proposal

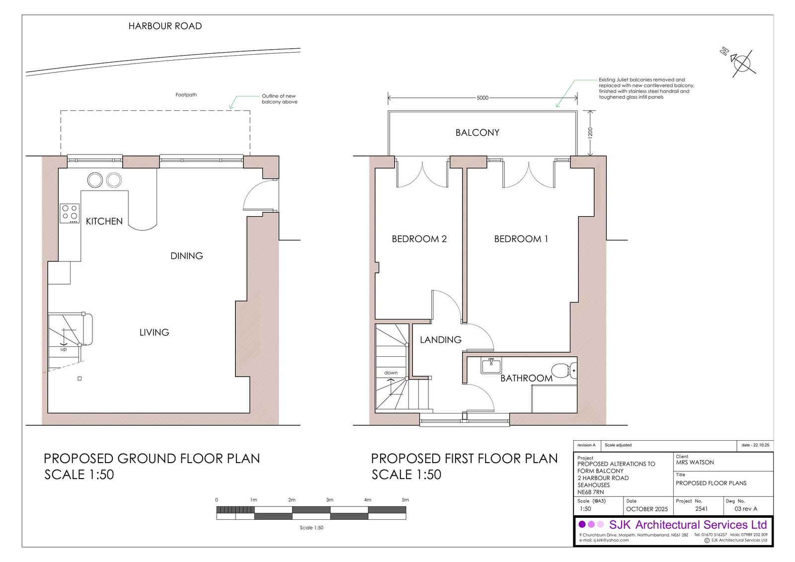
Construction of first floor balcony to dwelling

Documents

1 HARBOUR ROAD
Objection Comment
Not yet archived · Original link
1 HARBOUR ROAD PHOTOS
Objection
Not yet archived · Original link
45 NORTH STREET
Objection Comment
Not yet archived · Original link
5 LISTER AVENUE
Objection Comment
Not yet archived · Original link
APPLICATION FORM REDACTED
Application Form
Not yet archived · Original link
APPLICATIONFORMREDACTED
Superseded
Not yet archived · Original link
DESIGN & ACCESS AND HERITAGE STATEMENT
Report/ Statement
Not yet archived · Original link
EXISTING ELEVATIONS AND SECTION
Plan
Not yet archived · Original link
EXISTING FLOOR PLANS
Plan
Not yet archived · Original link
HIGHWAYS
Consultee Comment
Not yet archived · Original link
Location Plan
Location Plan
Not yet archived · Original link
NORTH SUNDERLAND AND SEAHOUSES PC
Consultee Comment
Not yet archived · Original link
NORTHUMBERLAND COAST NATIONAL LANDSCAPE
Consultee Comment
Not yet archived · Original link
PROPOSED ELEVATIONS AND SECTION
Plan
Not yet archived · Original link
Withdrawn
Withdrawn
Not yet archived · Original link

Have your say

Your comment matters. Councils must consider every representation that raises material planning considerations.

Write a comment